Дніпропетровська обл., м. Дніпро, вул. Січових Стрільців, 10. Оренда – приміщення 2-го поверху площею 44,10 кв.м. (В)

6 615.00 грн
150.00 грн / м2
Україна, Дніпропетровська обл., м. Дніпро, вул. Січових Стрільців, 10
Перейти до аукціону на сайті
  • Інформація
  • Опис
  • Документи
Дата оголошення пропозиції:
24 травня 2024
Площа:
44.10 м2
Тип об’єкта:
Приміщення
Тип аукціону:
Англійський аукціон
Статус аукціону:
Аукціон не відбувся
Тип угоди:
Оренда
Розмір мінімального кроку:
500.00 ₴
Розмір гарантійного внеску:
3 969.00 ₴
Початок прийому пропозицій:
24.05.2024 10:13:44
Завершення прийому пропозицій:
24.06.2024 20:00:00
Проведення аукціону:
25.06.2024 11:10:00
Лот:
CLE001-UA-20240524-48027
№ лоту (УТК):
UTK260623_06P
Лот виставляється на торги (раз):
10
Стислий опис майна:
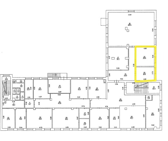
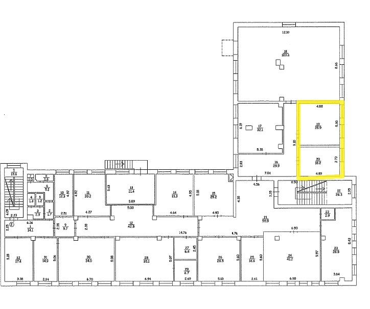
Пропонується до оренди приміщення 2-го поверху площею 44,10 кв.м. Розташування – будівля (літ. «А-3») знаходиться в центральному районі міста. Поруч знаходяться відділення банку, високий автомобільний і пішохідний потоки. Стан приміщення задовільний, підходить для офісу, для дитячої студії, школи розвитку. Ідеальне місце під розвиток будь-якого бізнесу. Можливість передачі приміщень в суборенду. Характеристики: Кількість поверхів – 4 (враховуючи цокольний поверх) Загальна площа будівель на ЗД – 2876,70 кв.м. Площа запропонована до оренди – 44,10 кв.м. Електропостачання, водопостачання, теплопостачання, охорона та обслуговування пожежної сигналізації, вивіз сміття, прибирання території; Земельна ділянка – 0, 1636 га (договір оренди) Ресурсні податки – 5,55 грн за 1 кв.м
Адреса місцезнаходження майна:
Україна, Дніпропетровська обл., м. Дніпро, вул. Січових Стрільців, 10
Схожі пропозиції
15.06.2023
Дніпропетровська обл., смт Софіївка, бул. Шевченка, 17А. Оренда – приміщення гаражу (Г-2) площею 33,00 кв.м.(В)
841.50 грн
25.50 грн / м2
Приміщення
Дніпропетровська обл., смт Софіївка, бул. Шевченка, 17А. Оренда – приміщення гаражу (Г-2) площею 33,00 кв.м.(В)
Україна, Дніпропетровська обл., смт Софіївка, ул. Шевченка, 17А
14.08.2025
Дніпропетровська обл., м. Кривий Ріг, вул. Покровська, 29а. Оренда – приміщення 1-го поверху площею 74,1 кв. м. (В)
1 482.00 грн
20.00 грн / м2
Приміщення
Дніпропетровська обл., м. Кривий Ріг, вул. Покровська, 29а. Оренда – приміщення 1-го поверху площею 74,1 кв. м. (В)
Україна, Дніпропетровська обл., Кривий Ріг, Кривий Ріг, вул. Покровська, 29а
18.07.2025
Дніпропетровська обл., м. Дніпро, вул. Князя Ярослава Мудрого, 3. Оренда – приміщення 5-го поверху площею 12,10 кв.м. (В)
605.00 грн
50.00 грн / м2
Приміщення
Дніпропетровська обл., м. Дніпро, вул. Князя Ярослава Мудрого, 3. Оренда – приміщення 5-го поверху площею 12,10 кв.м. (В)
Україна, Дніпропетровська обл., м. Дніпро, вул. Князя Ярослава Мудрого, 3
26.06.2024
ДОВГОСТРОКОВА ОРЕНДА! Дніпропетровська обл., м. Кам’янське, вул. Стовби, 3а. Оренда – триповерхова будівля, загальною площею 1811,00 (літ. А-3) (В)
Переглянуті пропозиції
04.04.2023
Рівненська обл., Рівненський р-н, с. Пустомити, вул. Радянська, 41. Оренда – виробничі приміщення площею 21,80 кв.м. (В)
500.09 грн
22.94 грн / м2
Приміщення
Рівненська обл., Рівненський р-н, с. Пустомити, вул. Радянська, 41. Оренда – виробничі приміщення площею 21,80 кв.м. (В)
Україна, Рівненська обл., Рівненський р-н, с. Пустомити, вул. Радянська, 41
ДОВГОСТРОКОВА ОРЕНДА! м. Київ, вул. Антоновича, 40, оренда – приміщення 2-го поверху, площею 757,90 кв.м. (В)
333 400.21 грн
439.90 грн / м2
Приміщення
ДОВГОСТРОКОВА ОРЕНДА! м. Київ, вул. Антоновича, 40, оренда – приміщення 2-го поверху, площею 757,90 кв.м. (В)
Україна, м.Київ, Київ, вул. Антоновича, 40
28.09.2023
Львівська область, с. Батьків, вул. Центральна, 28. Оренда – приміщення 1-го поверху площею 21,20 кв.м. (В)
318.00 грн
3.71 грн / м2
Приміщення
Львівська область, с. Батьків, вул. Центральна, 28. Оренда – приміщення 1-го поверху площею 21,20 кв.м. (В)
Україна, Львівська обл., с. Батьків, вул. Центральна, 28
09.09.2025
м. Київ, вул. Дегтярівська, 28А, літ. «А» (Шевченківський р-н). Оренда – приміщення на 1-му поверсі, площею – 35,20 кв.м (В)
4 536.58 грн
128.88 грн / м2
Приміщення
м. Київ, вул. Дегтярівська, 28А, літ. «А» (Шевченківський р-н). Оренда – приміщення на 1-му поверсі, площею – 35,20 кв.м (В)
Україна, м.Київ, Київ, 04119, м. Київ, вул. Дегтярівська, 28А, літ. «А» (Шевченківський р-н