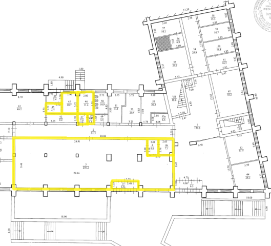
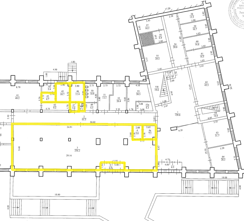
Дніпропетровська обл., м. Кривий Ріг, вул. Героїв АТО, 30. Оренда – приміщення 1-го поверху площею 307,30 кв.м (П)

9 219.00 грн
30.00 грн / м2
Україна, Дніпропетровська обл., м. Кривий Ріг, вул. Героїв АТО, 30
Перейти до аукціону на сайті
  • Інформація
  • Опис
  • Документи
Дата оголошення пропозиції:
31 травня 2024
Площа:
307.30 м2
Тип об’єкта:
Приміщення
Тип аукціону:
Англійський аукціон
Статус аукціону:
Аукціон відмінено
Тип угоди:
Оренда
Розмір мінімального кроку:
200.00 ₴
Розмір гарантійного внеску:
5 531.40 ₴
Початок прийому пропозицій:
31.05.2024 13:01:17
Завершення прийому пропозицій:
01.07.2024 20:00:00
Проведення аукціону:
02.07.2024 11:55:00
Лот:
CLE001-UA-20240531-49129
№ лоту (УТК):
UTK260424_06P
Лот виставляється на торги (раз):
2
Стислий опис майна:
Пропонується до оренди приміщення 1-поверху площею 307,30 кв.м. Будівля в діловому центрі міста Кривий Ріг. Вхід в приміщення окремий. Поруч знаходиться магазини, навчальні заклади, лікарня, зона відпочинку (парк) та ін. Зручна транспортна розв’язка та інфраструктура. Характеристики: Кількість поверхів – 5; Загальна площа – 13040,10 кв.м Площа запропонована до оренди – 307,30 кв.м Теплопостачання-централізоване Земельна ділянка – 0,4712 га (договір оренди) Ресурсні податки 8,77 грн.
Адреса місцезнаходження майна:
Україна, Дніпропетровська обл., м. Кривий Ріг, вул. Героїв АТО, 30
Схожі пропозиції
27.09.2022
Дніпропетровська обл., м. Дніпро, пр. Пушкіна, 75а. Оренда – приміщення 1-го поверху площею 11,50 кв.м. (В)
760.73 грн
66.15 грн / м2
Приміщення
Дніпропетровська обл., м. Дніпро, пр. Пушкіна, 75а. Оренда – приміщення 1-го поверху площею 11,50 кв.м. (В)
Україна, Дніпропетровська обл., Дніпро, вулиця Пушкіна, 75
28.10.2022
Дніпропетровська обл., м. Синельникове, вул. Богми, 4. Оренда – приміщення 2-го поверху, площею 213,50 кв.м. (В)
3 702.09 грн
17.34 грн / м2
Приміщення
Дніпропетровська обл., м. Синельникове, вул. Богми, 4. Оренда – приміщення 2-го поверху, площею 213,50 кв.м. (В)
Україна, Дніпропетровська обл., м. Синельникове, вулиця Богми, 4
14.12.2023
Дніпропетровська обл., м. Дніпро, вул. Князя Ярослава Мудрого, 3. Оренда – приміщення 4-го поверху площею 21,60 кв.м. (В)
2 584.43 грн
119.65 грн / м2
Приміщення
Дніпропетровська обл., м. Дніпро, вул. Князя Ярослава Мудрого, 3. Оренда – приміщення 4-го поверху площею 21,60 кв.м. (В)
Україна, Дніпропетровська обл., м. Дніпро, вул. Князя Ярослава Мудрого, 3
25.06.2024
Дніпропетровська обл., м. Дніпро, вул. Січових Стрільців, 10. Оренда – приміщення 2-го поверху площею 44,10 кв.м. (В)
6 615.00 грн
150.00 грн / м2
Приміщення
Дніпропетровська обл., м. Дніпро, вул. Січових Стрільців, 10. Оренда – приміщення 2-го поверху площею 44,10 кв.м. (В)
Україна, Дніпропетровська обл., м. Дніпро, вул. Січових Стрільців, 10
Переглянуті пропозиції
26.04.2023
м. Київ, вул. Ісаакяна, 3 Оренда – Приміщення 2-го поверху площею 149,81 кв.м. (В)
22 690.22 грн
151.46 грн / м2
Приміщення
м. Київ, вул. Ісаакяна, 3 Оренда – Приміщення 2-го поверху площею 149,81 кв.м. (В)
Україна, м.Київ, Київ, вулиця Ісаакяна, 3