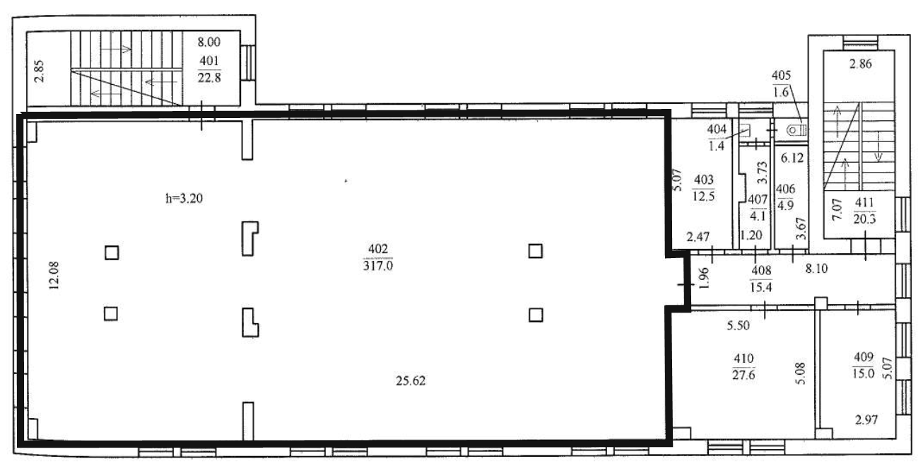
Дніпропетровська обл., м. Кам’янське, просп. Свободи, 44. Оренда – приміщення 4-го поверху загальною площею 317,00 кв.м (В)

10 080.60 грн
31.80 грн / м2
Україна, Дніпропетровська обл., м. Кам’янське, просп. Свободи, 44
Перейти до аукціону на сайті
  • Інформація
  • Опис
  • Документи
Дата оголошення пропозиції:
07 червня 2024
Площа:
317.00 м2
Тип об’єкта:
Приміщення
Тип аукціону:
Англійський аукціон
Статус аукціону:
Аукціон не відбувся
Тип угоди:
Оренда
Розмір мінімального кроку:
1 000.00 ₴
Розмір гарантійного внеску:
6 048.36 ₴
Початок прийому пропозицій:
07.06.2024 16:06:47
Завершення прийому пропозицій:
08.07.2024 20:00:00
Проведення аукціону:
09.07.2024 11:00:00
Лот:
CLE001-UA-20240607-48949
№ лоту (УТК):
UTK230224_17P
Лот виставляється на торги (раз):
4
Стислий опис майна:
Пропонується до оренди приміщення 4-го поверху площею 317,00 кв.м (прим.№ 402). Будівля в центрі міста. Поруч знаходяться об’єкти соціальної інфраструктури: відділення пошти та банку, клініка, магазини, ринок тощо. Стан приміщення відмінний, підходить для офісу, ідеальне місце під розвиток будь-якого бізнесу. Зручна транспортна розв’язка та інфраструктура. Характеристики: Кількість поверхів – 5 Загальна площа – 2506,00 кв.м Площа запропонована до оренди – 317,00 кв.м Електропостачання, водопостачання, теплопостачання Земельна ділянка – 0,2324 га (договір оренди) Ресурсні податки – 2,68 грн за 1 кв.м
Адреса місцезнаходження майна:
Україна, Дніпропетровська обл., м. Кам’янське, просп. Свободи, 44
Схожі пропозиції
07.07.2023
Дніпропетровська обл., м. Кам’янське, пр. Героїв АТО, 1. Оренда – приміщення 3-го поверху площею 22,80 кв.м. (В)
514.37 грн
22.56 грн / м2
Приміщення
Дніпропетровська обл., м. Кам’янське, пр. Героїв АТО, 1. Оренда – приміщення 3-го поверху площею 22,80 кв.м. (В)
Україна, Дніпропетровська обл., м. Кам’янське, пр. Героїв АТО, 1
10.10.2025
Дніпропетровська обл., м. Покров, вул. Центральна, 50. Оренда – приміщення будівлі гаражів загальною площею 26,90 кв.м (В)
538.00 грн
20.00 грн / м2
Приміщення
Дніпропетровська обл., м. Покров, вул. Центральна, 50. Оренда – приміщення будівлі гаражів загальною площею 26,90 кв.м (В)
Україна, Дніпропетровська обл., м. Покров, вул. Центральна, 50
09.04.2024
ДОВГОСТРОКОВА ОРЕНДА! Дніпропетровська обл., м. Кам’янське, вул. Стовби, 3а. Оренда – триповерхова будівля, загальною площею 1811,00 (літ. А-3) (В)
26.03.2024
Дніпропетровська обл., м. Кам’янське, просп. Свободи, 44. Оренда – приміщення 5-го поверху загальною площею 53,60 кв.м (В)
3 408.96 грн
63.60 грн / м2
Приміщення
Дніпропетровська обл., м. Кам’янське, просп. Свободи, 44. Оренда – приміщення 5-го поверху загальною площею 53,60 кв.м (В)
Україна, Дніпропетровська обл., м. Кам’янське, просп. Свободи, 44
Переглянуті пропозиції
Дніпропетровська обл., м. Дніпро, вул. Князя Ярослава Мудрого, 3. Оренда – приміщення  5-го  поверху площею 23,10 кв.м. (В)
2 494.80 грн
108.00 грн / м2
Приміщення
Дніпропетровська обл., м. Дніпро, вул. Князя Ярослава Мудрого, 3. Оренда – приміщення 5-го поверху площею 23,10 кв.м. (В)
Україна, Дніпропетровська обл., м. Дніпро, вул. Князя Ярослава Мудрого, 3
Дніпропетровська обл., м. Кам`янське, пр. Героїв АТО, 1. Оренда – приміщення 4-го поверху площею 293,05 кв.м. (В)
14 048.82 грн
47.95 грн / м2
Приміщення
Дніпропетровська обл., м. Кам`янське, пр. Героїв АТО, 1. Оренда – приміщення 4-го поверху площею 293,05 кв.м. (В)
Україна, Дніпропетровська обл., м. Кам`янське, пр. Героїв АТО, 1