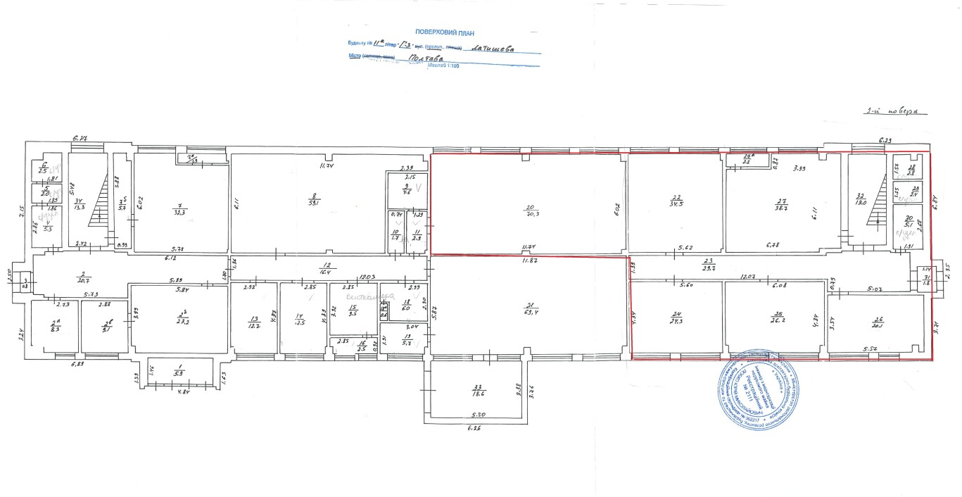
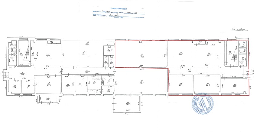
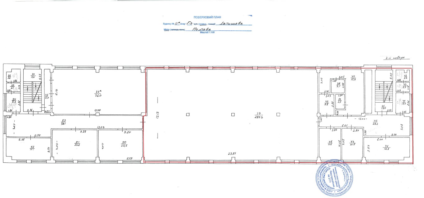
Полтавська обл., м. Полтава, провулок Латишева, буд. 11-А. Оренда – Частина будівлі площею 1287,60 кв.м. (В)

42 722.57 грн
33.18 грн / м2
Україна, Полтавська обл., м. Полтава, провулок Латишева, буд. 11-А
Перейти до аукціону на сайті
  • Інформація
  • Опис
  • Документи
Дата оголошення пропозиції:
19 січня 2022
Площа:
1287.60 м2
Тип об’єкта:
Будівля
Тип аукціону:
Англійський аукціон
Статус аукціону:
Аукціон не відбувся
Тип угоди:
Оренда
Розмір мінімального кроку:
800.00 ₴
Розмір гарантійного внеску:
25 633.54 ₴
Початок прийому пропозицій:
19.01.2022 15:40:47
Завершення прийому пропозицій:
17.02.2022 20:00:00
Лот:
UA-PS-2022-01-19-000018-3
№ лоту (УТК):
UTK020821_21P
Лот виставляється на торги (раз):
6
Стислий опис майна:
Пропонується до оренди частина будівлі площею 1287,60 кв.м. Приміщення знаходяться на 1,2 та 3 поверсі 3-поверхової будівлі, яка розташована в районі наближеному до центру м. Полтава. Вхід з вулиці. Доступ 24/7 Характеристики: Кількість поверхів – 3; Загальна площа – 1911,90 кв.м.; Площа запропонована до оренди 1287,60 кв.м.; Опалення – наявне; Дозволена потужність – до 5 кВт; Земельна ділянка – 0,1739 га (договір оренди).
Адреса місцезнаходження майна:
Україна, Полтавська обл., м. Полтава, провулок Латишева, буд. 11-А
Схожі пропозиції
02.09.2025
Полтавська обл., Лубенський р-н, с. Новоаврамівка, вул. Центральна, буд. 14. Оренда – Будівля площею 62,10 кв.м. (В)
745.20 грн
12.00 грн / м2
Будівля
Полтавська обл., Лубенський р-н, с. Новоаврамівка, вул. Центральна, буд. 14. Оренда – Будівля площею 62,10 кв.м. (В)
Україна, Полтавська обл., Новоаврамівка, Новоаврамівка, вул. Центральна, буд. 14
18.10.2022
Полтавська обл., Кременчуцький р-н., с. Вишняки, вул. Шкільна,14. Оренда – Частина будівлі площею 41,20 кв.м. (В)
279.34 грн
6.78 грн / м2
Будівля
Полтавська обл., Кременчуцький р-н., с. Вишняки, вул. Шкільна,14. Оренда – Частина будівлі площею 41,20 кв.м. (В)
Україна, Полтавська обл., Вишняки, вул. Шкільна,14
19.05.2023
Полтавська обл., Полтавський р-н., смт. Диканька, вул. Полтавська, 29. Оренда – комплекс будівель площею 192,70 кв.м. (В)
3 722.96 грн
19.32 грн / м2
Будівля
Полтавська обл., Полтавський р-н., смт. Диканька, вул. Полтавська, 29. Оренда – комплекс будівель площею 192,70 кв.м. (В)
Україна, Полтавська обл., Полтавський р-н., смт. Диканька, вул. Полтавська, 29
14.03.2023
Полтавська обл., Лубенський р-н, с. Засулля, вул. Молодіжна, буд.20. Оренда – одноповерхова будівля площею 189,80 кв.м. (В)
789.57 грн
4.16 грн / м2
Будівля
Полтавська обл., Лубенський р-н, с. Засулля, вул. Молодіжна, буд.20. Оренда – одноповерхова будівля площею 189,80 кв.м. (В)
Україна, Полтавська обл., Лубенський р-н, с. Засулля, вул. Молодіжна, буд.20
Переглянуті пропозиції
Харківська обл., м. Харків, вул. Ак. Вальтера, 3. Оренда – приміщення цокольного поверху площею 105,7 кв.м.
3 488.10 грн
33.00 грн / м2
Приміщення
Харківська обл., м. Харків, вул. Ак. Вальтера, 3. Оренда – приміщення цокольного поверху площею 105,7 кв.м.
Україна, Харківська обл., м. Харків, вул. Ак. Вальтера, 3
ДОВГОСТРОКОВА ОРЕНДА! м. Київ, вул. Ісаакяна, 3 , Оренда – приміщення будівлі літ. «А», площею 1570,90 кв.м. (В)
309 734.35 грн
197.17 грн / м2
Приміщення
ДОВГОСТРОКОВА ОРЕНДА! м. Київ, вул. Ісаакяна, 3 , Оренда – приміщення будівлі літ. «А», площею 1570,90 кв.м. (В)
Україна, м.Київ, Київ, вул. Ісаакяна, 3
10.10.2023
Сумська обл., Сумський р-н, смт. Краснопілля, вул. Сумська, 5. Оренда – офісне приміщення 1-го поверху площею 20,10 кв.м. (В)
530.64 грн
26.40 грн / м2
Офіс
Сумська обл., Сумський р-н, смт. Краснопілля, вул. Сумська, 5. Оренда – офісне приміщення 1-го поверху площею 20,10 кв.м. (В)
Україна, Сумська обл., Сумський р-н, смт. Краснопілля, вул. Сумська, 5
26.11.2025
м.Харків, вул. Конторська,14. Оренда – приміщення 1-го поверху, площею 15,2 кв.м  (В)
532.00 грн
35.00 грн / м2
Приміщення
м.Харків, вул. Конторська,14. Оренда – приміщення 1-го поверху, площею 15,2 кв.м (В)
Україна, Харківська обл., м. Харків, вул. Конторська,14