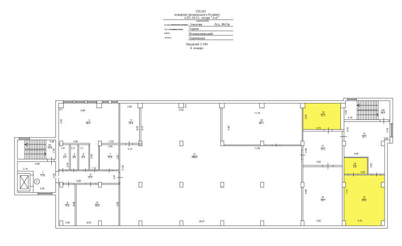
м.Харків, вул. Амосова,13 в. Оренда – приміщення четвертого поверху площею 77,6 кв.м (П)

6 733.35 грн
86.77 грн / м2
Україна, Харківська обл., м. Харків, вул. Амосова,13 в
Перейти до аукціону на сайті
  • Інформація
  • Опис
  • Документи
Дата оголошення пропозиції:
05 липня 2024
Площа:
77.60 м2
Тип об’єкта:
Приміщення
Тип аукціону:
Англійський аукціон
Статус аукціону:
Аукціон не відбувся
Тип угоди:
Оренда
Розмір мінімального кроку:
150.00 ₴
Розмір гарантійного внеску:
4 040.01 ₴
Початок прийому пропозицій:
05.07.2024 15:25:22
Завершення прийому пропозицій:
06.08.2024 20:00:00
Проведення аукціону:
07.08.2024 11:50:00
Лот:
CLE001-UA-20240705-77547
№ лоту (УТК):
UTK050724_05P
Лот виставляється на торги (раз):
1
Стислий опис майна:
Пропонується до оренди приміщення четветого поверху площею 77,6 кв.м. Будівля в спальному районі міста Харкова. 10 хв до зупинки транспорту. Характеристики: Кількість поверхів – 5; Загальна площа – 4838,00 кв.м_ Площа запропонована до оренди – 77,6 кв.м. Дозволена потужність – 5 кВт Теплопостачання-централізоване Земельна ділянка – 0,4825 га
Адреса місцезнаходження майна:
Україна, Харківська обл., м. Харків, вул. Амосова,13 в
Схожі пропозиції
05.09.2023
Харківська обл., Чугуївський р-н, м. Зміїв, вул. Адміністративна, 5. Оренда – приміщення на ІІІ поверсі площею 16,1 кв.м. (В)
273.70 грн
17.00 грн / м2
Приміщення
Харківська обл., Чугуївський р-н, м. Зміїв, вул. Адміністративна, 5. Оренда – приміщення на ІІІ поверсі площею 16,1 кв.м. (В)
Україна, Харківська обл., Чугуївський р-н, м. Зміїв, вул. Адміністративна, 5
30.04.2024
м. Харків, вул. Старошишківська, 5а. Оренда – приміщення 3-го поверху площею 160,4 кв.м. (В)
8 735.38 грн
54.46 грн / м2
Приміщення
м. Харків, вул. Старошишківська, 5а. Оренда – приміщення 3-го поверху площею 160,4 кв.м. (В)
Україна, Харківська обл., м. Харків, вул. Старошишківська, 5а
02.09.2025
м. Харків, просп. Олександрівський, 83. Оренда – приміщення 4 поверху адмінбудівлі площею 118,1 кв.м. (В)
3 543.00 грн
30.00 грн / м2
Приміщення
м. Харків, просп. Олександрівський, 83. Оренда – приміщення 4 поверху адмінбудівлі площею 118,1 кв.м. (В)
Україна, Харківська обл., м. Харків, просп. Олександрівський, 83
05.06.2024
м.Харків, вул.Конторська,14;    Оренда- приміщення 2-го поверху площею 12,1 кв.м (В)
838.53 грн
69.30 грн / м2
Приміщення
м.Харків, вул.Конторська,14; Оренда- приміщення 2-го поверху площею 12,1 кв.м (В)
Україна, Харківська обл., Харків, вулиця Конторська, 14
Переглянуті пропозиції
15.02.2023
ДОВГОСТРОКОВА ОРЕНДА! Дніпропетровська обл., м. Дніпро, вул. Кармалюка, 6а. Оренда – одноповерхова будівля площею 219,7 кв.м. (В)
10 150.14 грн
46.20 грн / м2
Будівля
ДОВГОСТРОКОВА ОРЕНДА! Дніпропетровська обл., м. Дніпро, вул. Кармалюка, 6а. Оренда – одноповерхова будівля площею 219,7 кв.м. (В)
Україна, Дніпропетровська обл., м. Дніпро, вул. Кармалюка, 6а
12.07.2023
Львівська обл., м. Броди, пл. Ринок, 15. Оренда – приміщення 2-го поверху площею 13,90 кв.м. (В)
500.12 грн
35.98 грн / м2
Приміщення
Львівська обл., м. Броди, пл. Ринок, 15. Оренда – приміщення 2-го поверху площею 13,90 кв.м. (В)
Україна, Львівська обл., м. Броди, пл. Ринок, 15
05.12.2023
м.Київ, вул. Миколи Голего,8;   Оренда–приміщення 3-го поверху площею 79,7кв.м.(В)
11 301.46 грн
141.80 грн / м2
Приміщення
м.Київ, вул. Миколи Голего,8; Оренда–приміщення 3-го поверху площею 79,7кв.м.(В)
Україна, м.Київ, Київ, вулиця Миколи Голего, 8
26.11.2025
м. Харків, вул. Конторська,14. Оренда – приміщення 2-го поверху площею 12,1 кв. м (В)
508.20 грн
42.00 грн / м2
Приміщення
м. Харків, вул. Конторська,14. Оренда – приміщення 2-го поверху площею 12,1 кв. м (В)
Україна, Харківська обл., Харків, вулиця Конторська, 14