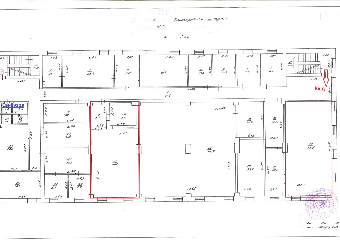
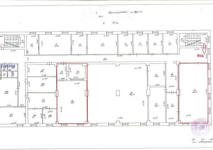
Сумська обл., м. Буринь, вул. Першотравнева, 5; Оренда – офісні приміщення 2-го поверху площею 129,9 кв.м. (В)

1 279.52 грн
9.85 грн / м2
Україна, Сумська обл., Буринь, вул. Першотравнева, 5
Перейти до аукціону на сайті
  • Інформація
  • Опис
  • Документи
Дата оголошення пропозиції:
18 липня 2024
Площа:
129.90 м2
Тип об’єкта:
Офіс
Тип аукціону:
Англійський аукціон
Статус аукціону:
Аукціон не відбувся
Тип угоди:
Оренда
Розмір мінімального кроку:
50.00 ₴
Розмір гарантійного внеску:
767.71 ₴
Початок прийому пропозицій:
18.07.2024 19:55:31
Завершення прийому пропозицій:
20.08.2024 20:00:00
Проведення аукціону:
21.08.2024 12:35:00
Лот:
CLE001-UA-20240718-07183
№ лоту (УТК):
UTK230922_01T
Лот виставляється на торги (раз):
10
Стислий опис майна:
Пропонується до оренди офісні приміщення 2-го поверху площею 129,9 кв.м. Будівля триповерхова знаходиться в центральній частині міста. Добра візуалізація з дороги. Вхід в приміщення з тильної сторони будівлі. Можливість передачі приміщення в суборенду. Доступ 24/7. Характеристики: • Кількість поверхів – 3; • Загальна площа – 2212,0; • Площа запропонована до оренди – 129,9 кв.м.; • Водопостачання – відсутнє (наявний санвузол загального користування); • Опалення та електропостачання – наявне; • Земельна ділянка – 0,7542 га (договір оренди).
Адреса місцезнаходження майна:
Україна, Сумська обл., Буринь, вул. Першотравнева, 5
Схожі пропозиції
Сумська обл., м. Охтирка, вул. Чкалова, буд. 2. Оренда – офісне приміщення 1-го поверху площею 31,3 кв.м. (В)
2 504.00 грн
80.00 грн / м2
Офіс
Сумська обл., м. Охтирка, вул. Чкалова, буд. 2. Оренда – офісне приміщення 1-го поверху площею 31,3 кв.м. (В)
Україна, Сумська обл., м. Охтирка, вул. Чкалова, буд. 2
07.10.2022
Сумська обл., смт. Недригайлів, вул. Незалежності, буд. 8. Оренда – офісне приміщення 3-го поверху, площею 28,6 кв.м. (В)
453.02 грн
15.84 грн / м2
Офіс
Сумська обл., смт. Недригайлів, вул. Незалежності, буд. 8. Оренда – офісне приміщення 3-го поверху, площею 28,6 кв.м. (В)
Україна, Сумська обл., Недригайлів, вул. Незалежності, 8
14.02.2024
Сумська обл., м. Путивль, вул. Першотравнева, буд. 86. Оренда – офісні приміщення 1-го поверху площею 14,80 кв.м. (В)
500.98 грн
33.85 грн / м2
Офіс
Сумська обл., м. Путивль, вул. Першотравнева, буд. 86. Оренда – офісні приміщення 1-го поверху площею 14,80 кв.м. (В)
Україна, Сумська обл., м. Путивль, вул. Першотравнева, буд. 86
06.06.2023
Сумська обл., м. Білопілля, вул. Старопутивльська, буд. 47. Оренда – офісні приміщення 2-го поверху, площею 85,6 кв.м. (В)
626.59 грн
7.32 грн / м2
Офіс
Сумська обл., м. Білопілля, вул. Старопутивльська, буд. 47. Оренда – офісні приміщення 2-го поверху, площею 85,6 кв.м. (В)
Україна, Сумська обл., м. Білопілля, вул. Старопутивльська, буд. 47