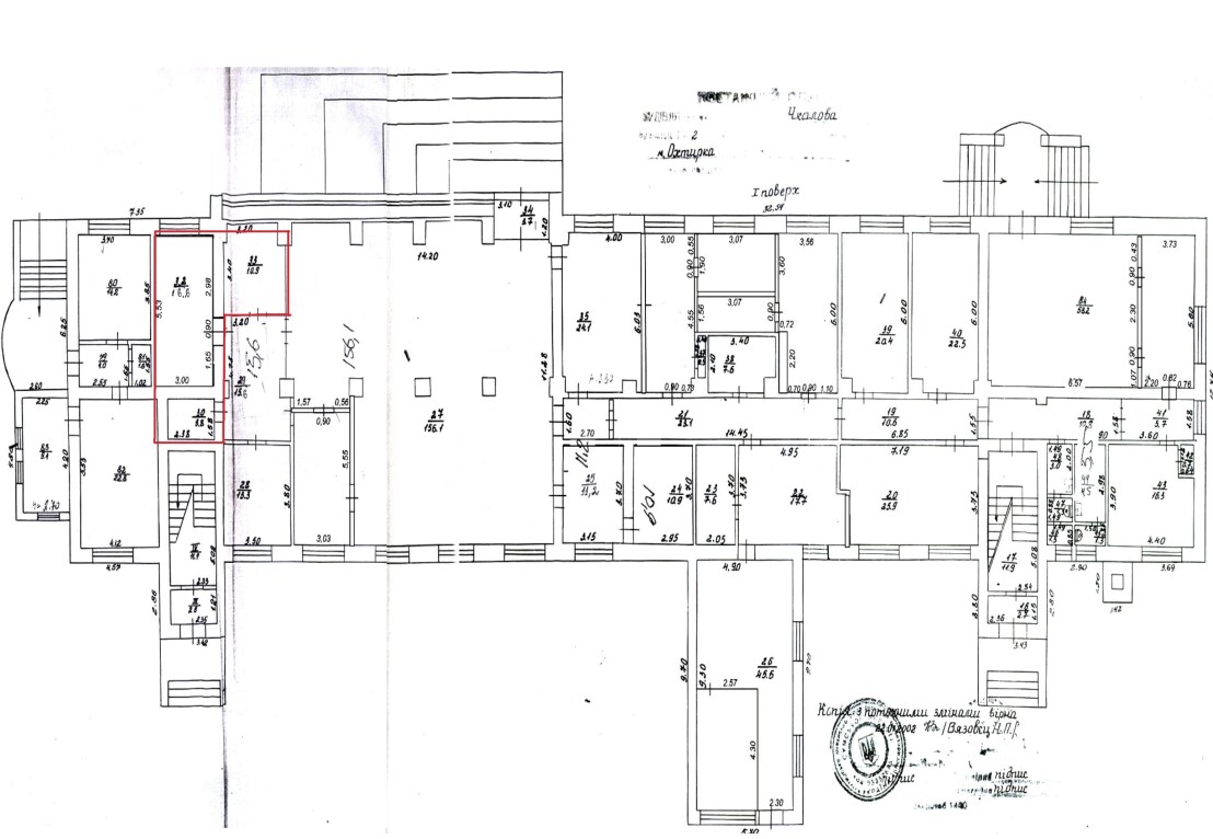
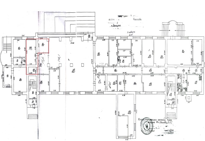
Сумська обл., м. Охтирка, вул. Чкалова, буд. 2. Оренда – офісне приміщення 1-го поверху площею 31,3 кв.м. (В)

2 504.00 грн
80.00 грн / м2
Україна, Сумська обл., м. Охтирка, вул. Чкалова, буд. 2
Перейти до аукціону на сайті
  • Інформація
  • Опис
  • Документи
Дата оголошення пропозиції:
27 січня 2021
Площа:
31.30 м2
Тип об’єкта:
Офіс
Тип аукціону:
Англійський аукціон
Статус аукціону:
Аукціон не відбувся
Тип угоди:
Оренда
Розмір мінімального кроку:
100.00 ₴
Розмір гарантійного внеску:
1 502.40 ₴
Початок прийому пропозицій:
27.01.2021 14:17:29
Завершення прийому пропозицій:
10.02.2021 20:00:00
Лот:
UA-PS-2021-01-27-000082-3
№ лоту (УТК):
UTK110121_05P
Лот виставляється на торги (раз):
2
Стислий опис майна:
Пропонується до оренди офісне приміщення площею 31,3 кв.м. (1 поверх). Будівля знаходиться в центрі міста. Можливість передачі приміщень в суборенду. Наявний окремий вхід. Доступ вільний 24/7. Характеристики: Кількість поверхів – 3; Загальна площа – 2476,0 кв.м. Площа запропонована до оренди (офісне 31,3 кв.м); Водопостачання, санвузол, електропостачання – наявні; Опалення – відсутнє; Земельна ділянка – 0,6992 га (договір оренди)
Адреса місцезнаходження майна:
Україна, Сумська обл., м. Охтирка, вул. Чкалова, буд. 2
Схожі пропозиції
10.01.2023
Сумська обл., м. Охтирка, вул. Чкалова, буд. 2. Оренда – офісна будівля площею 183,90 кв.м. (В)
1 701.08 грн
9.25 грн / м2
Офіс
Сумська обл., м. Охтирка, вул. Чкалова, буд. 2. Оренда – офісна будівля площею 183,90 кв.м. (В)
Україна, Сумська обл., м. Охтирка, вул. Чкалова, буд. 2
11.12.2024
Сумська обл., м. Суми, вул. Іллінська, буд. 2. Оренда – офісні приміщення 3-го поверху площею 411,00 кв. м. (В)
24 138.03 грн
58.73 грн / м2
Офіс
Сумська обл., м. Суми, вул. Іллінська, буд. 2. Оренда – офісні приміщення 3-го поверху площею 411,00 кв. м. (В)
Україна, Сумська обл., м. Суми, вул. Іллінська, буд. 2
Сумська обл., смт. Липова Долина, вул. Загорянка, буд. 2. Оренда – офісні приміщення 1-го та 2-го поверху площею 55,40 кв.м. (В)
504.14 грн
9.10 грн / м2
Офіс
Сумська обл., смт. Липова Долина, вул. Загорянка, буд. 2. Оренда – офісні приміщення 1-го та 2-го поверху площею 55,40 кв.м. (В)
Україна, Сумська обл., смт. Липова Долина, вул. Загорянка, буд. 2
05.06.2024
Сумська обл., м. Суми, вул. Петропавлівська, буд. 65. Оренда – офісні приміщення 2-го поверху площею 40,10 кв.м. (В)
2 296.53 грн
57.27 грн / м2
Офіс
Сумська обл., м. Суми, вул. Петропавлівська, буд. 65. Оренда – офісні приміщення 2-го поверху площею 40,10 кв.м. (В)
Україна, Сумська обл., м. Суми, вул. Петропавлівська, буд. 65
Переглянуті пропозиції
15.10.2025
Сумська обл., м. Суми, вул. Іллінська, буд. 2. Оренда – офісні приміщення 8-го поверху площею 81,30 кв.м. (В)
2 439.00 грн
30.00 грн / м2
Офіс
Сумська обл., м. Суми, вул. Іллінська, буд. 2. Оренда – офісні приміщення 8-го поверху площею 81,30 кв.м. (В)
Україна, Сумська обл., м. Суми, вул. Іллінська, буд. 2
09.08.2022
Полтавська обл., Кременчуцький р-н., смт. Градизьк, вул. Героїв Дніпра, буд. 15. Оренда – частина будівлі площею 33,60 кв.м. (В)
499.63 грн
14.87 грн / м2
Будівля
Полтавська обл., Кременчуцький р-н., смт. Градизьк, вул. Героїв Дніпра, буд. 15. Оренда – частина будівлі площею 33,60 кв.м. (В)
Україна, Полтавська обл., Градизьк, вул. Героїв Дніпра, буд. 15
14.06.2024
м. Київ, вул. Архітектора Вербицького, 3;   Оренда – приміщення 1-го та 3-го поверху площею 263,7 кв.м. (В)
25 251.91 грн
95.76 грн / м2
Приміщення
м. Київ, вул. Архітектора Вербицького, 3; Оренда – приміщення 1-го та 3-го поверху площею 263,7 кв.м. (В)
Україна, м.Київ, Київ, вул. Архітектора Вербицького, 3
26.11.2025
Харківська обл., м. Харків, вул. Старошишківська, 5-А. Оренда – приміщення на 1-му поверсі площею 35,90 кв.м. (В)
1 077.00 грн
30.00 грн / м2
Приміщення
Харківська обл., м. Харків, вул. Старошишківська, 5-А. Оренда – приміщення на 1-му поверсі площею 35,90 кв.м. (В)
Україна, Харківська обл., м. Харків, вул. Старошишківська, 5-А