Івано-Франківська обл., Івано-Франківський р-н, смт. Солотвин, вул. Чорновола, 9; Оренда – приміщення гаражів-складів, площею 27,2 м.кв (В)

342.72 грн
12.60 грн / м2
Україна, Івано-Франківська обл., Солотвин, вулиця Чорновола, 9
Перейти до аукціону на сайті
  • Інформація
  • Опис
  • Документи
Дата оголошення пропозиції:
04 серпня 2024
Площа:
27.20 м2
Тип об’єкта:
Приміщення
Тип аукціону:
Англійський аукціон
Статус аукціону:
Аукціон не відбувся
Тип угоди:
Оренда
Розмір мінімального кроку:
30.00 ₴
Розмір гарантійного внеску:
205.63 ₴
Початок прийому пропозицій:
04.08.2024 12:39:44
Завершення прийому пропозицій:
04.09.2024 20:00:00
Проведення аукціону:
05.09.2024 12:55:00
Лот:
CLE001-UA-20240804-46125
№ лоту (УТК):
UTK260124_13T
Лот виставляється на торги (раз):
6
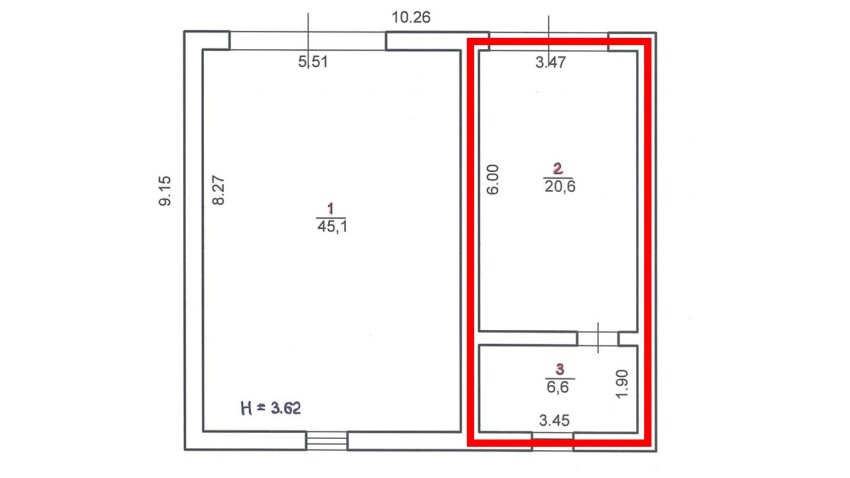
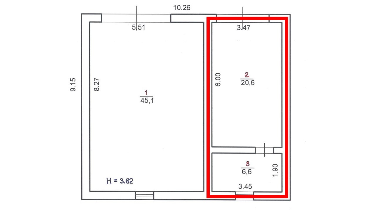
Стислий опис майна:
Пропонуються до оренди приміщення гаражів-складів, площею 27,2 кв. м. Будівля знаходиться в центральній частині селища, можливе використання під склад, майстерню, виробництво, тощо. Високий транспортний та пішохідний потік. Характеристики • кількість поверхів –1; • опалення відсутнє; • земельна ділянка – 0,0409 га (договір оренди)
Адреса місцезнаходження майна:
Україна, Івано-Франківська обл., Солотвин, вулиця Чорновола, 9
Схожі пропозиції
11.08.2022
Івано-Франківська обл., Коломийський р-н, с. Потічок, вул. Незалежності, 46. Оренда – нежитлові приміщення І-го поверху площею 27,7 м.кв. (В)
500.26 грн
18.06 грн / м2
Приміщення
Івано-Франківська обл., Коломийський р-н, с. Потічок, вул. Незалежності, 46. Оренда – нежитлові приміщення І-го поверху площею 27,7 м.кв. (В)
Україна, Івано-Франківська обл., Потічок, вул. Незалежності, 46
07.09.2022
м. Івано-Франківськ, вул. Ребета, 2. Оренда – приміщення складу площею 118,0 кв.м. (В)
10 933.88 грн
92.66 грн / м2
Приміщення
м. Івано-Франківськ, вул. Ребета, 2. Оренда – приміщення складу площею 118,0 кв.м. (В)
Україна, Івано-Франківська обл., м. Івано-Франківськ, вул. Ребета, 2
11.05.2023
м. Івано-Франківськ, вул. Ребета, 2. Оренда – приміщення складу площею 118,0 кв.м. (В)
5 466.94 грн
46.33 грн / м2
Приміщення
м. Івано-Франківськ, вул. Ребета, 2. Оренда – приміщення складу площею 118,0 кв.м. (В)
Україна, Івано-Франківська обл., м. Івано-Франківськ, вул. Ребета, 2
14.02.2023
Івано-Франківська обл., Калуський район, смт. Рожнятів, площа Єдності, 9, оренда – Приміщення 3-го поверху площею 100,8 м.кв. (В)
1 257.98 грн
12.48 грн / м2
Приміщення
Івано-Франківська обл., Калуський район, смт. Рожнятів, площа Єдності, 9, оренда – Приміщення 3-го поверху площею 100,8 м.кв. (В)
Україна, Івано-Франківська обл., смт. Рожнятів, площа Єдності, 9
Переглянуті пропозиції
18.07.2023
Полтавська обл., Полтавський р-н, с. Велика Рублівка, вул. Центральна, буд.24. Оренда – Гаражі площею 48,00 кв.м. (В)
893.28 грн
18.61 грн / м2
Гараж
Полтавська обл., Полтавський р-н, с. Велика Рублівка, вул. Центральна, буд.24. Оренда – Гаражі площею 48,00 кв.м. (В)
Україна, Полтавська обл., Полтавський р-н, с. Велика Рублівка, вул. Центральна, буд.24
30.07.2024
Закарпатська обл., Мукачівського р-н., с. Дусино, вул. Миру, 156-А;   Оренда – приміщення 1-го поверху площею 12,4 кв. м. (В)
272.80 грн
22.00 грн / м2
Приміщення
Закарпатська обл., Мукачівського р-н., с. Дусино, вул. Миру, 156-А; Оренда – приміщення 1-го поверху площею 12,4 кв. м. (В)
Україна, Закарпатська обл., Дусино, вул. Миру, 156-А
15.10.2025
Полтавська обл., Полтавський р-н, смт. Диканька, вулиця Незалежності, 93. Оренда – приміщення загальною площею 59,10 кв.м. (В)
917.82 грн
15.53 грн / м2
Приміщення
Полтавська обл., Полтавський р-н, смт. Диканька, вулиця Незалежності, 93. Оренда – приміщення загальною площею 59,10 кв.м. (В)
Україна, Полтавська обл., Диканька, вулиця Незалежності, 93
02.09.2025
Сумська область, Конотопський р-н, м. Буринь, вул. Першотравнева, буд. 2. Оренда – нежитлові будівлі площею 356,20 кв. м. (В)
4 274.40 грн
12.00 грн / м2
Будівля
Сумська область, Конотопський р-н, м. Буринь, вул. Першотравнева, буд. 2. Оренда – нежитлові будівлі площею 356,20 кв. м. (В)
Україна, Сумська обл., Конотопський р-н, м. Буринь, вул. Першотравнева, буд. 2