Івано-Франківська обл., Калуський район, смт. Рожнятів, площа Єдності, 9, оренда – Приміщення 3-го поверху площею 100,8 м.кв. (В)

1 257.98 грн
12.48 грн / м2
Україна, Івано-Франківська обл., смт. Рожнятів, площа Єдності, 9
Перейти до аукціону на сайті
  • Інформація
  • Опис
  • Документи
Дата оголошення пропозиції:
12 січня 2023
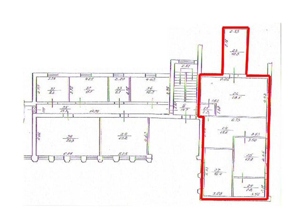
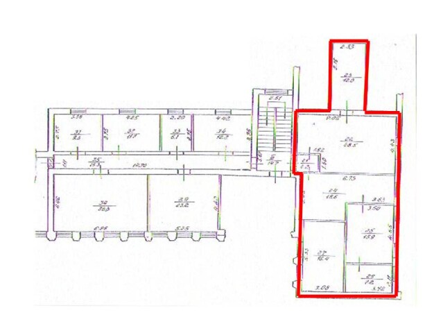
Площа:
100.80 м2
Тип об’єкта:
Приміщення
Тип аукціону:
Англійський аукціон
Статус аукціону:
Аукціон не відбувся
Тип угоди:
Оренда
Розмір мінімального кроку:
100.00 ₴
Розмір гарантійного внеску:
754.79 ₴
Початок прийому пропозицій:
12.01.2023 19:08:46
Завершення прийому пропозицій:
13.02.2023 20:00:00
Проведення аукціону:
14.02.2023 11:25:00
Лот:
CLE001-UA-20230112-51539
№ лоту (УТК):
UTK080721_11Т
Лот виставляється на торги (раз):
10
Стислий опис майна:
Пропонуються до оренди приміщення 3-го поверху площею 100,8 м.кв.. Будівля знаходиться в центральній частині населеного пункту. Високі пішохідний та транспортний потоки. Характеристики кількість поверхів – 3 опалення газове земельна ділянка – 0,1126 га (договір оренди)
Адреса місцезнаходження майна:
Україна, Івано-Франківська обл., смт. Рожнятів, площа Єдності, 9
Схожі пропозиції
Івано-Франківська обл., Коломийський р-н, смт.Заболотів, вул.Грушевського, 5. Оренда – Приміщення 2-го поверху, площею 304,1 м.кв. (В)
11 087.49 грн
36.46 грн / м2
Приміщення
Івано-Франківська обл., Коломийський р-н, смт.Заболотів, вул.Грушевського, 5. Оренда – Приміщення 2-го поверху, площею 304,1 м.кв. (В)
Україна, Івано-Франківська обл., Коломийський р-н, смт.Заболотів, вул.Грушевського, 5
09.09.2022
Івано-Франківська обл., м. Івано-Франківськ, вул. Ребета, 2. Оренда – Приміщення 2-го та 3-го поверху адміністративно-складської будівлі, площею 1518,30 кв.м. (В)
Івано-Франківська обл., м. Івано-Франківськ, вул. В.Симоненка, 1. Оренда – складське приміщення цокольного поверху, площею 56,6 м.кв. (В)
1 901.76 грн
33.60 грн / м2
Приміщення
Івано-Франківська обл., м. Івано-Франківськ, вул. В.Симоненка, 1. Оренда – складське приміщення цокольного поверху, площею 56,6 м.кв. (В)
Україна, Івано-Франківська обл., м. Івано-Франківськ, вул. В.Симоненка, 1
17.07.2025
Івано-Франківська обл., м. Івано-Франківськ, вул. Ребета, 2. Оренда – Приміщення 2-го та 3-го поверху адміністративно-складської будівлі,  площею 1518,30 кв.м. (В)
91 098.00 грн
60.00 грн / м2
Приміщення
Івано-Франківська обл., м. Івано-Франківськ, вул. Ребета, 2. Оренда – Приміщення 2-го та 3-го поверху адміністративно-складської будівлі, площею 1518,30 кв.м. (В)
Україна, Івано-Франківська обл., Івано-Франківськ, Івано-Франківськ, вул. Ребета, 2