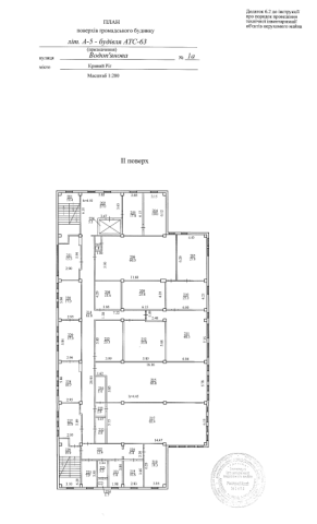
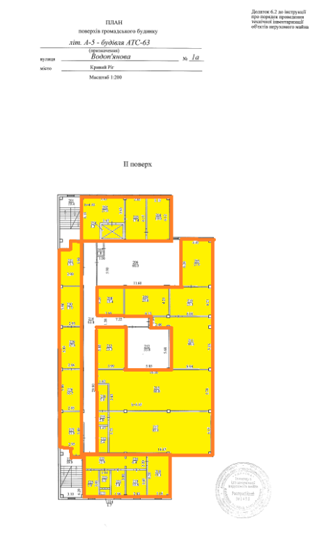
Дніпропетровська обл., м. Кривий Ріг, вул. Водоп`янова, 1а; Оренда – приміщення 2-го поверху, площею 569,4 кв.м. (В)

5 124.60 грн
9.00 грн / м2
Україна, Дніпропетровська обл., Кривий Ріг, вулиця Водоп'янова, 1а
Перейти до аукціону на сайті
  • Інформація
  • Опис
  • Документи
Дата оголошення пропозиції:
05 серпня 2024
Площа:
569.40 м2
Тип об’єкта:
Приміщення
Тип аукціону:
Англійський аукціон
Статус аукціону:
Аукціон не відбувся
Тип угоди:
Оренда
Розмір мінімального кроку:
200.00 ₴
Розмір гарантійного внеску:
3 074.76 ₴
Початок прийому пропозицій:
05.08.2024 18:07:35
Завершення прийому пропозицій:
09.09.2024 20:00:00
Проведення аукціону:
10.09.2024 11:05:00
Лот:
CLE001-UA-20240805-15946
№ лоту (УТК):
UTK081021_11T
Лот виставляється на торги (раз):
10
Стислий опис майна:
Пропонується до оренди приміщення 2-го поверху, площею 569,4 кв.м. Будівля в діловому центрі міста. Поруч розташовані відділення пошт, магазини тощо. Вхід в приміщення спільний. Зручна транспортна розв’язка та інфраструктура. Характеристики: Кількість поверхів – 5; Загальна площа – 4559,8 кв.м_ Площа запропонована до оренди – 569,4 кв.м Електропостачання, водопостачання. Теплопостачання відсутнє Земельна ділянка – 0,3093 га (договір оренди)
Адреса місцезнаходження майна:
Україна, Дніпропетровська обл., Кривий Ріг, вулиця Водоп'янова, 1а
Схожі пропозиції
09.04.2024
Дніпропетровська обл., м. Дніпро, вул. Панікахи, 27. Оренда – приміщення 3-го поверху площею 742,0 кв.м. (В)
47 799.64 грн
64.42 грн / м2
Приміщення
Дніпропетровська обл., м. Дніпро, вул. Панікахи, 27. Оренда – приміщення 3-го поверху площею 742,0 кв.м. (В)
Україна, Дніпропетровська обл., м. Дніпро, вул. Панікахи, 27
30.05.2023
Дніпропетровська обл., м. Дніпро, вул. Панікахи, 27. Оренда – приміщення 3-го поверху площею 742,0 кв.м. (В)
34 280.40 грн
46.20 грн / м2
Приміщення
Дніпропетровська обл., м. Дніпро, вул. Панікахи, 27. Оренда – приміщення 3-го поверху площею 742,0 кв.м. (В)
Україна, Дніпропетровська обл., м. Дніпро, вул. Панікахи, 27
07.02.2025
Дніпропетровська обл., Верхньодніпровський р-н, с. Малоолександрівка, вул. Центральна, 45. Оренда – приміщення площею 37,30 кв.м. (В)
298.40 грн
8.00 грн / м2
Приміщення
Дніпропетровська обл., Верхньодніпровський р-н, с. Малоолександрівка, вул. Центральна, 45. Оренда – приміщення площею 37,30 кв.м. (В)
Україна, Дніпропетровська обл., Верхньодніпровський р-н, с. Малоолександрівка, вул. Центральна, 45
12.08.2022
Дніпропетровська обл., м. Кривий Ріг, вул. Дніпропетровське шосе, 48. Оренда – приміщення 4-го поверху, площею 640,0 кв.м. (В)
7 155.20 грн
11.18 грн / м2
Приміщення
Дніпропетровська обл., м. Кривий Ріг, вул. Дніпропетровське шосе, 48. Оренда – приміщення 4-го поверху, площею 640,0 кв.м. (В)
Україна, Дніпропетровська обл., Кривий Ріг, вул. Дніпропетровське шосе, 48
Переглянуті пропозиції
04.06.2024
Дніпропетровська обл., м. Кам’янське, просп. Свободи, 44. Оренда – приміщення 5-го поверху загальною площею 53,60 кв.м (В)
2 386.27 грн
44.52 грн / м2
Приміщення
Дніпропетровська обл., м. Кам’янське, просп. Свободи, 44. Оренда – приміщення 5-го поверху загальною площею 53,60 кв.м (В)
Україна, Дніпропетровська обл., м. Кам’янське, просп. Свободи, 44
Дніпропетровська обл., м. Дніпро, вул. Князя Ярослава Мудрого, 3. Оренда – приміщення  5-го  поверху площею 23,10 кв.м. (В)
2 494.80 грн
108.00 грн / м2
Приміщення
Дніпропетровська обл., м. Дніпро, вул. Князя Ярослава Мудрого, 3. Оренда – приміщення 5-го поверху площею 23,10 кв.м. (В)
Україна, Дніпропетровська обл., м. Дніпро, вул. Князя Ярослава Мудрого, 3
Дніпропетровська обл., м. Кам`янське, пр. Героїв АТО, 1. Оренда – приміщення 4-го поверху площею 293,05 кв.м. (В)
14 048.82 грн
47.95 грн / м2
Приміщення
Дніпропетровська обл., м. Кам`янське, пр. Героїв АТО, 1. Оренда – приміщення 4-го поверху площею 293,05 кв.м. (В)
Україна, Дніпропетровська обл., м. Кам`янське, пр. Героїв АТО, 1