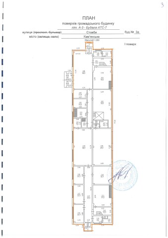
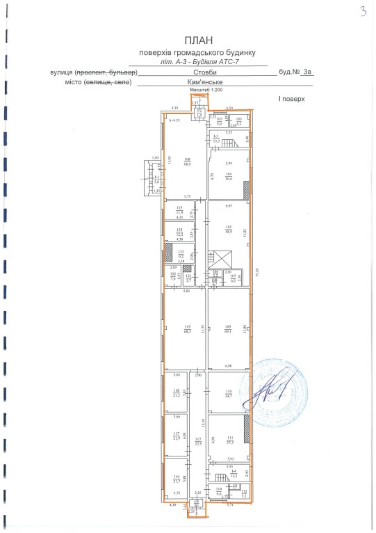
ДОВГОСТРОКОВА ОРЕНДА! Дніпропетровська обл., м. Кам’янське, вул. Стовби, 3а. Оренда – триповерхова будівля, загальною площею 1811,00 (літ. А-3) (В)

10 340.81 грн
5.71 грн / м2
Україна, Дніпропетровська обл., м. Кам’янське, вул. Стовби, 3а
Перейти до аукціону на сайті
  • Інформація
  • Опис
  • Документи
Дата оголошення пропозиції:
07 серпня 2024
Площа:
1811.00 м2
Тип об’єкта:
Приміщення
Тип аукціону:
Англійський аукціон
Статус аукціону:
Аукціон не відбувся
Тип угоди:
Оренда
Розмір мінімального кроку:
200.00 ₴
Розмір гарантійного внеску:
6 204.49 ₴
Початок прийому пропозицій:
07.08.2024 14:03:32
Завершення прийому пропозицій:
09.09.2024 20:00:00
Проведення аукціону:
10.09.2024 11:15:00
Лот:
CLE001-UA-20240807-47976
№ лоту (УТК):
UTK020821_22P
Лот виставляється на торги (раз):
10
Стислий опис майна:
Пропонується до оренди триповерхова будівля загальною площею 1811,00 (літ. А-3). Зручна транспортна розв’язка та інфраструктура. Характеристики: Кількість поверхів – 3; Загальна площа – 1811,00 кв.м.; Площа запропонована до оренди – 1811,00 кв.м.; Електропостачання, водопостачання, водовідведення.; Земельна ділянка – 0,3284 га (договір оренди)
Адреса місцезнаходження майна:
Україна, Дніпропетровська обл., м. Кам’янське, вул. Стовби, 3а
Схожі пропозиції
15.02.2023
Дніпропетровська обл., м. Дніпро, вул. Чернишевського, 27. Оренда – приміщення 1-го поверху площею 14,30 кв.м. (В)
971.26 грн
67.92 грн / м2
Приміщення
Дніпропетровська обл., м. Дніпро, вул. Чернишевського, 27. Оренда – приміщення 1-го поверху площею 14,30 кв.м. (В)
Україна, Дніпропетровська обл., м. Дніпро, вул. Чернишевського, 27
09.04.2024
Дніпропетровська обл., м. Дніпро, вул. Панікахи, 27. Оренда – приміщення 3-го поверху площею 742,0 кв.м. (В)
47 799.64 грн
64.42 грн / м2
Приміщення
Дніпропетровська обл., м. Дніпро, вул. Панікахи, 27. Оренда – приміщення 3-го поверху площею 742,0 кв.м. (В)
Україна, Дніпропетровська обл., м. Дніпро, вул. Панікахи, 27
Дніпропетровська обл., м. Дніпро, вул. Панікахи, 27. Оренда приміщень 3-го поверху
18 164.16 грн
24.48 грн / м2
Приміщення
Дніпропетровська обл., м. Дніпро, вул. Панікахи, 27. Оренда приміщень 3-го поверху
Україна, Дніпропетровська обл., м. Дніпро, вул. Панікахи, 27
07.03.2023
Дніпропетровська обл., м. Новомосковськ, вул. Сучкова, 64. Оренда – приміщення 2-го поверху площею 25,4 кв.м. (В)
651.00 грн
25.63 грн / м2
Приміщення
Дніпропетровська обл., м. Новомосковськ, вул. Сучкова, 64. Оренда – приміщення 2-го поверху площею 25,4 кв.м. (В)
Україна, Дніпропетровська обл., Новомосковськ, вулиця Сучкова, 64
Переглянуті пропозиції
25.02.2025
Полтавська обл., Кременчуцький р-н, с. Великі Кринки, вулиця Полтавська, 29. Оренда – приміщення 2-го поверсі загальною площею 99,70 кв.м. (В)
1 830.49 грн
18.36 грн / м2
Приміщення
Полтавська обл., Кременчуцький р-н, с. Великі Кринки, вулиця Полтавська, 29. Оренда – приміщення 2-го поверсі загальною площею 99,70 кв.м. (В)
Україна, Полтавська обл., Кременчуцький р-н, с. Великі Кринки, вул. Полтавська, 29