м. Київ, вул. Ісаакяна, 3, літ. «А»; Оренда – частина приміщень 1-го поверху площею 159,2 кв.м. (П)

34 818.63 грн
218.71 грн / м2
Україна, м.Київ, Київ, вулиця Ісаакяна, 3
Перейти до аукціону на сайті
  • Інформація
  • Опис
  • Документи
Дата оголошення пропозиції:
09 серпня 2024
Площа:
159.20 м2
Тип об’єкта:
Приміщення
Тип аукціону:
Англійський аукціон
Статус аукціону:
Аукціон відмінено
Тип угоди:
Оренда
Розмір мінімального кроку:
700.00 ₴
Розмір гарантійного внеску:
20 891.18 ₴
Початок прийому пропозицій:
09.08.2024 09:17:39
Завершення прийому пропозицій:
10.09.2024 20:00:00
Проведення аукціону:
11.09.2024 12:05:00
Лот:
CLE001-UA-20240809-00844
№ лоту (УТК):
UTK210624_10T
Лот виставляється на торги (раз):
1
Стислий опис майна:
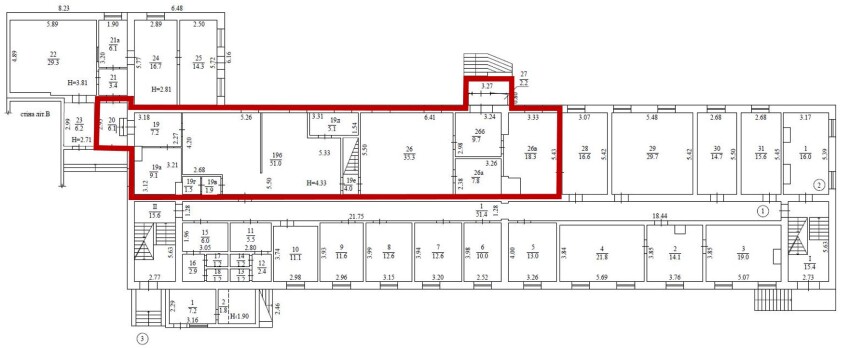
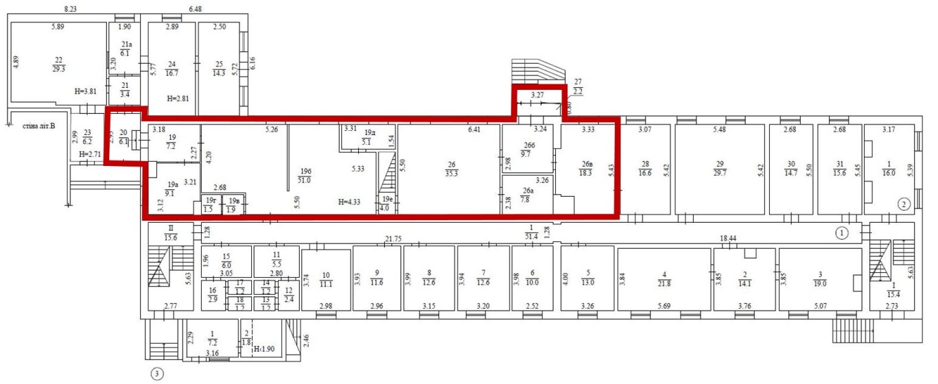
Пропонується до оренди приміщення 1-го поверху, площею 159,2 кв.м. Розташування будівлі у Шевченківському районі міста Києва, місцевість Шулявка. Поруч розвинена інфраструктура, зупинки швидкісного трамваю, маршрутного та громадського транспорту, магазини, кафе, аптеки. Доступ вільний 24/7. Характеристики: ❖ Загальна площа будівлі – 2066,8 м2 ; ❖ Площа запропонована до оренди – 159,2 м2 ; ❖ Опалення – міське (централізоване) ❖ Кількість поверхів – 3; ❖ Загальна площа земельної ділянки – 0,2892 га; ❖ Сан. вузол, водопостачання, каналізація – наявні
Адреса місцезнаходження майна:
Україна, м.Київ, Київ, вулиця Ісаакяна, 3
Схожі пропозиції
м. Київ, вул. Антоновича, 40, оренда – приміщення підвалу площею 77,00 кв.м. (В)
14 960.33 грн
194.29 грн / м2
Приміщення
м. Київ, вул. Антоновича, 40, оренда – приміщення підвалу площею 77,00 кв.м. (В)
Україна, м.Київ, Київ, вул. Антоновича, 40
30.08.2022
м. Київ, вул. Джона Маккейна, №40. Оренда – приміщення підвалу, площею 24,80 м2 (В)
1 145.76 грн
46.20 грн / м2
Приміщення
м. Київ, вул. Джона Маккейна, №40. Оренда – приміщення підвалу, площею 24,80 м2 (В)
Україна, м.Київ, Київ, вулиця Джона Маккейна, 40
м. Київ, бульвар Амвросія Бучми, №5, літ «Б»Оренда – приміщення 2-го поверху, площею 721,1 кв.м. (В)
33 999.87 грн
47.15 грн / м2
Приміщення
м. Київ, бульвар Амвросія Бучми, №5, літ «Б»Оренда – приміщення 2-го поверху, площею 721,1 кв.м. (В)
Україна, м.Київ, Київ, бульвар Амвросія Бучми, №5, літ «Б»
ДОВГОСТРОКОВА ОРЕНДА! м. Київ, вул. Ісаакяна, 3 , Оренда – приміщення будівлі літ. «А», площею 1570,90 кв.м. (В)
309 734.35 грн
197.17 грн / м2
Приміщення
ДОВГОСТРОКОВА ОРЕНДА! м. Київ, вул. Ісаакяна, 3 , Оренда – приміщення будівлі літ. «А», площею 1570,90 кв.м. (В)
Україна, м.Київ, Київ, вул. Ісаакяна, 3