Полтавська обл., Кременчуцький р-н, с. Іванове Селище, вул. Новоукраїнська, буд.7. Оренда – Гараж площею 24,20 кв.м. (В)

508.20 грн
21.00 грн / м2
Україна, Полтавська обл., Кременчуцький р-н, с. Іванове Селище, вул. Новоукраїнська, буд.7
Перейти до аукціону на сайті
  • Інформація
  • Опис
  • Документи
Дата оголошення пропозиції:
27 серпня 2024
Площа:
24.20 м2
Тип об’єкта:
Гараж
Тип аукціону:
Англійський аукціон
Статус аукціону:
Аукціон не відбувся
Тип угоди:
Оренда
Розмір мінімального кроку:
20.00 ₴
Розмір гарантійного внеску:
304.92 ₴
Початок прийому пропозицій:
27.08.2024 12:41:46
Завершення прийому пропозицій:
26.09.2024 20:00:00
Проведення аукціону:
27.09.2024 12:25:00
Лот:
CLE001-UA-20240827-17732
№ лоту (УТК):
UTK140721_12P
Лот виставляється на торги (раз):
10
Стислий опис майна:
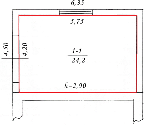
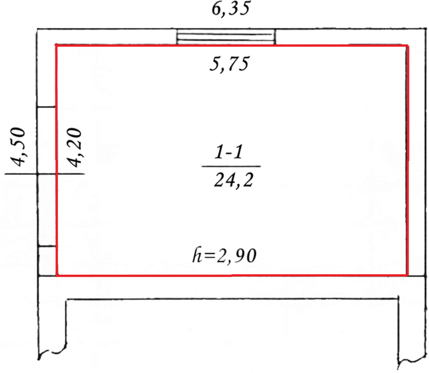
Пропонується до оренди гараж площею 24,20 кв.м, який розташовано по вул. Новоукраїнській с. Іванове Селище. Характеристики: кількість поверхів – 1; загальна площа – 24,20 кв.м.; площа запропонована до оренди 24,20 кв.м.; опалення – відсутнє; електропостачання - відсутнє; земельна ділянка – 0, 0040 га (договір оренди ЗД)
Адреса місцезнаходження майна:
Україна, Полтавська обл., Кременчуцький р-н, с. Іванове Селище, вул. Новоукраїнська, буд.7
Схожі пропозиції
Полтавська обл., с. Велика Рублівка,  вул. Центральна, 24 Оренда - гаражі
648.96 грн
13.52 грн / м2
Гараж
Полтавська обл., с. Велика Рублівка, вул. Центральна, 24 Оренда - гаражі
Україна, Полтавська обл., с. Велика Рублівка, вул. Центральна , 24
29.03.2023
Полтавська обл., Полтавський р-н, с. Велика Рублівка, вул. Центральна, буд.24. Оренда – Гаражі площею 48,00 кв.м. (В)
504.00 грн
10.50 грн / м2
Гараж
Полтавська обл., Полтавський р-н, с. Велика Рублівка, вул. Центральна, буд.24. Оренда – Гаражі площею 48,00 кв.м. (В)
Україна, Полтавська обл., Полтавський р-н, с. Велика Рублівка, вул. Центральна, буд.24
18.07.2023
Полтавська обл., Полтавський р-н, с. Велика Рублівка, вул. Центральна, буд.24. Оренда – Гаражі площею 48,00 кв.м. (В)
893.28 грн
18.61 грн / м2
Гараж
Полтавська обл., Полтавський р-н, с. Велика Рублівка, вул. Центральна, буд.24. Оренда – Гаражі площею 48,00 кв.м. (В)
Україна, Полтавська обл., Полтавський р-н, с. Велика Рублівка, вул. Центральна, буд.24
05.06.2024
Полтавська обл., Кременчуцький р-н, с. Іванове Селище, вул. Новоукраїнська, буд.7. Оренда – Гараж площею 24,20 кв.м. (В)
508.20 грн
21.00 грн / м2
Гараж
Полтавська обл., Кременчуцький р-н, с. Іванове Селище, вул. Новоукраїнська, буд.7. Оренда – Гараж площею 24,20 кв.м. (В)
Україна, Полтавська обл., Кременчуцький р-н, с. Іванове Селище, вул. Новоукраїнська, буд.7
Переглянуті пропозиції
30.04.2024
м. Харків, вул. Амосова,13-в. Оренда - приміщення 2-го поверху площею 36,4 кв.м (В)
2 210.94 грн
60.57 грн / м2
Приміщення
м. Харків, вул. Амосова,13-в. Оренда - приміщення 2-го поверху площею 36,4 кв.м (В)
Україна, Харківська обл., м. Харків, вул. Амосова,13-в
26.07.2023
Рівненська обл., м. Рівне, вул. Дубенська, 44б. Оренда – приміщення 1-го поверху одноповерхової будівлі площею 65,1 кв.м. (В)
7 575.04 грн
116.36 грн / м2
Приміщення
Рівненська обл., м. Рівне, вул. Дубенська, 44б. Оренда – приміщення 1-го поверху одноповерхової будівлі площею 65,1 кв.м. (В)
Україна, Рівненська обл., м. Рівне, вул. Дубенська, 44б