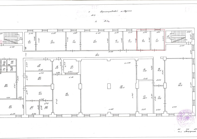
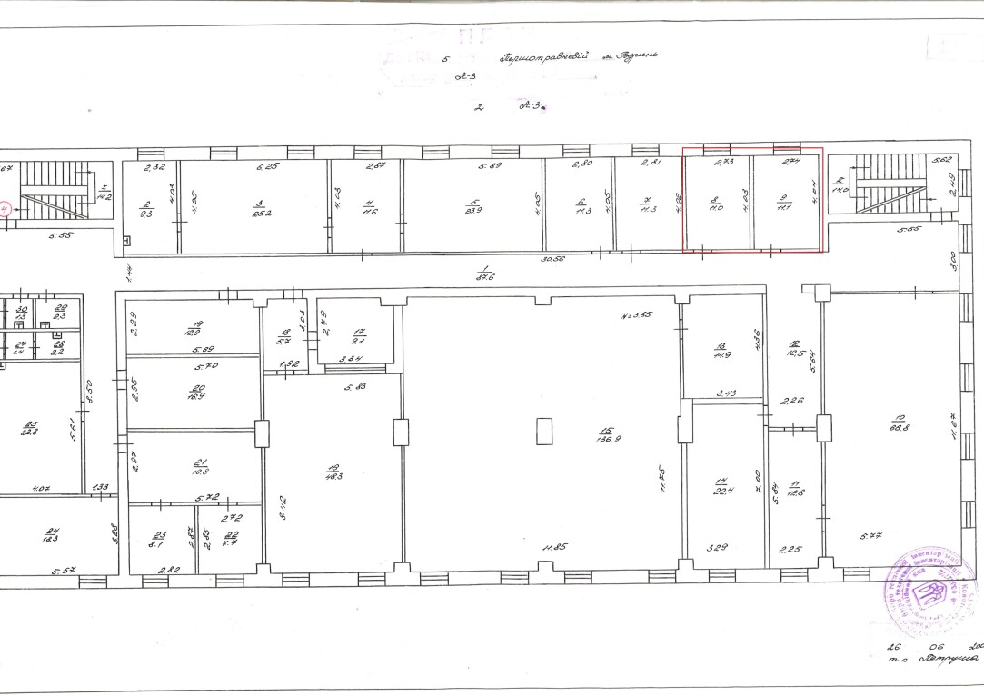
Сумська обл., м. Буринь, вул. Першотравнева, 5. Оренда – офісні приміщення 2-го поверху площею 22,10 кв.м. (В)

502.33 грн
22.73 грн / м2
Україна, Сумська обл., м. Буринь, вул. Першотравнева, 5
Перейти до аукціону на сайті
  • Інформація
  • Опис
  • Документи
Дата оголошення пропозиції:
27 серпня 2024
Площа:
22.10 м2
Тип об’єкта:
Офіс
Тип аукціону:
Англійський аукціон
Статус аукціону:
Аукціон не відбувся
Тип угоди:
Оренда
Розмір мінімального кроку:
20.00 ₴
Розмір гарантійного внеску:
301.40 ₴
Початок прийому пропозицій:
27.08.2024 12:52:39
Завершення прийому пропозицій:
26.09.2024 20:00:00
Проведення аукціону:
27.09.2024 12:30:00
Лот:
CLE001-UA-20240827-45148
№ лоту (УТК):
UTK190922_07P
Лот виставляється на торги (раз):
10
Стислий опис майна:
Пропонується до оренди офісні приміщення 2-го поверху площею 22,10 кв.м. триповерхової будівлі. Знаходиться в центральній частині міста. Добра візуалізація з дороги. Вхід в приміщення з тильної сторони будівлі. Можливість передачі приміщення в суборенду. Доступ 24/7. Характеристики: Кількість поверхів – 3; Загальна площа – 2212,0; Площа запропонована до оренди – 22,10 кв.м.; Водопостачання – відсутнє (наявний санвузол загального користування); Опалення та електропостачання – наявне; Земельна ділянка – 0,7542 га (договір оренди).
Адреса місцезнаходження майна:
Україна, Сумська обл., м. Буринь, вул. Першотравнева, 5
Схожі пропозиції
Сумська обл., м. Путивль, вул. Першотравнева, буд. 86. Оренда – офісні приміщення 1-го поверху площею 109,30 кв.м. (В)
4 297.68 грн
39.32 грн / м2
Офіс
Сумська обл., м. Путивль, вул. Першотравнева, буд. 86. Оренда – офісні приміщення 1-го поверху площею 109,30 кв.м. (В)
Україна, Сумська обл., м. Путивль, вул. Першотравнева, буд.86
Сумська обл., смт. Липова Долина, вул. Загорянка, буд. 2. Оренда – офісне приміщення 2-го поверху площею 12,36 кв.м. (В)
130.52 грн
10.56 грн / м2
Офіс
Сумська обл., смт. Липова Долина, вул. Загорянка, буд. 2. Оренда – офісне приміщення 2-го поверху площею 12,36 кв.м. (В)
Україна, Сумська обл., смт. Липова Долина, вул. Загорянка, буд. 2
Сумська обл., Шосткинський р-н, м. Середино-Буда, вул. Європейська, буд. 10. Оренда – офісні приміщення 1-го поверху площею 79,30 кв.м. (В)
3 965.00 грн
50.00 грн / м2
Офіс
Сумська обл., Шосткинський р-н, м. Середино-Буда, вул. Європейська, буд. 10. Оренда – офісні приміщення 1-го поверху площею 79,30 кв.м. (В)
Україна, Сумська обл., Шосткинський р-н, м. Середино-Буда, вул. Європейська, буд. 10
14.02.2024
Сумська обл., м. Суми, вул. Нижньосироватська, 64. Оренда – офісні приміщення 2-го поверху площею 34,20 кв.м. (В)
1 913.49 грн
55.95 грн / м2
Офіс
Сумська обл., м. Суми, вул. Нижньосироватська, 64. Оренда – офісні приміщення 2-го поверху площею 34,20 кв.м. (В)
Україна, Сумська обл., м. Суми, вул. Нижньосироватська, 64
Переглянуті пропозиції
25.07.2025
Рівненська обл., м. Рівне вул. В. Чорновола, 1. Оренда – підвальні приміщення загальною площею 261,7 м.кв. (В)
15 702.00 грн
60.00 грн / м2
Приміщення
Рівненська обл., м. Рівне вул. В. Чорновола, 1. Оренда – підвальні приміщення загальною площею 261,7 м.кв. (В)
Україна, Рівненська обл., м. Рівне, вул. В. Чорновола, 1
05.06.2024
Харківська обл., м. Харків, вул. Коцарська, 45, літер «А-4»;  Оренда – приміщення на 2-му поверсі загальною площею 14,30 кв.м. (В)
768.77 грн
53.76 грн / м2
Приміщення
Харківська обл., м. Харків, вул. Коцарська, 45, літер «А-4»; Оренда – приміщення на 2-му поверсі загальною площею 14,30 кв.м. (В)
Україна, Харківська обл., Харків, вулиця Коцарська, 45
20.12.2024
Полтавська обл., Кременчуцький р-н, с. Пришиб, вулиця Центральна, 12. Оренда – приміщення будівлі, загальною площею 50,20 кв.м. (В)
5 216.78 грн
103.92 грн / м2
Приміщення
Полтавська обл., Кременчуцький р-н, с. Пришиб, вулиця Центральна, 12. Оренда – приміщення будівлі, загальною площею 50,20 кв.м. (В)
Україна, Полтавська обл., Кременчуцький р-н, с. Пришиб, вулиця Центральна, 12
12.01.2024
м. Київ, бульвар Бучми Амвросія, 5;   Оренда – приміщення 3-го та 4-го поверхів технічної будівлі АТС-550 (літ. «Б»), площею 1006,83 кв.м. (В)
92 628.36 грн
92.00 грн / м2
Приміщення
м. Київ, бульвар Бучми Амвросія, 5; Оренда – приміщення 3-го та 4-го поверхів технічної будівлі АТС-550 (літ. «Б»), площею 1006,83 кв.м. (В)
Україна, м.Київ, м. Київ, вулиця Амвросія Бучми, 5 літ.Б