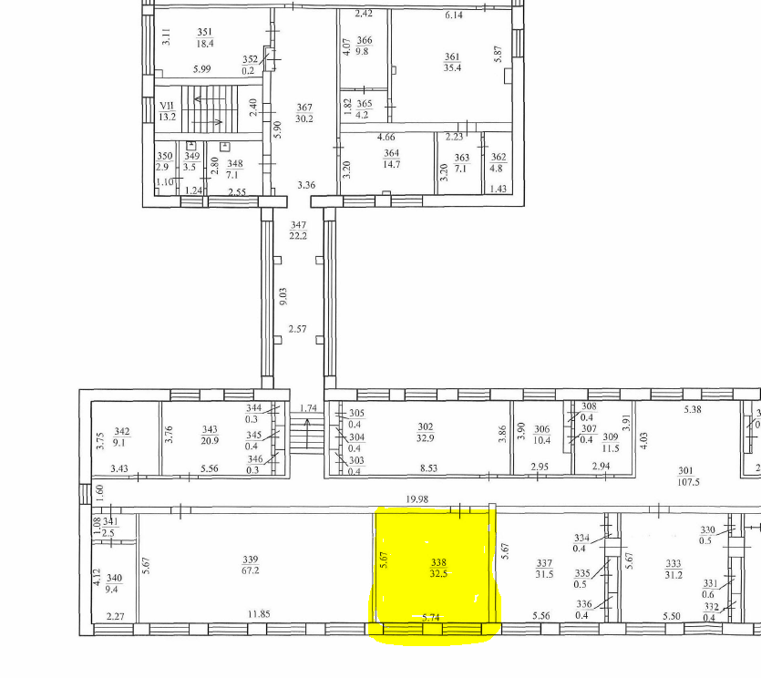
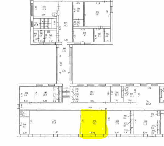
Дніпропетровська обл., м. Жовті Води, вул. Свободи, 39; Оренда – приміщення 3-го поверху площею 32,5 кв.м. (В)

487.50 грн
15.00 грн / м2
Україна, Дніпропетровська обл., Жовті Води, бульвар Свободи, 39
Перейти до аукціону на сайті
  • Інформація
  • Опис
  • Документи
Дата оголошення пропозиції:
16 вересня 2024
Площа:
32.50 м2
Тип об’єкта:
Приміщення
Тип аукціону:
Англійський аукціон
Статус аукціону:
Аукціон не відбувся
Тип угоди:
Оренда
Розмір мінімального кроку:
15.00 ₴
Розмір гарантійного внеску:
292.50 ₴
Початок прийому пропозицій:
16.09.2024 12:06:41
Завершення прийому пропозицій:
17.10.2024 20:00:00
Проведення аукціону:
18.10.2024 11:35:00
Лот:
CLE001-UA-20240916-02664
№ лоту (УТК):
UTK011122_5T
Лот виставляється на торги (раз):
10
Стислий опис майна:
Пропонується до оренди приміщення 3-го поверху площею 32,5 кв.м. Розташування – 3-поверхова будівля (літ.А-Б-В, приміщ.№338), знаходиться в центральному районі міста. Поруч знаходяться відділення банку, високий автомобільний і пішохідний потоки. Стан приміщення задовільний, підходить для офісу, Ідеальне місце під розвиток будь-якого бізнесу. Можливість передачі приміщень в суборенду. Характеристики: • Кількість поверхів – 3 • Загальна площа – 3622,5 кв.м. • Площа запропонована до оренди – 32,5 кв.м. • Електропостачання, водопостачання, теплопостачанняцентралізоване; • Земельна ділянка – 0, 603 га (договір оренди)
Адреса місцезнаходження майна:
Україна, Дніпропетровська обл., Жовті Води, бульвар Свободи, 39
Схожі пропозиції
10.05.2023
Дніпропетровська обл., м. Дніпро, вул. Шолохова, 7. Оренда – приміщення 1-го поверху площею 79,60 кв.м. (В)
12 054.62 грн
151.44 грн / м2
Приміщення
Дніпропетровська обл., м. Дніпро, вул. Шолохова, 7. Оренда – приміщення 1-го поверху площею 79,60 кв.м. (В)
Україна, Дніпропетровська обл., м. Дніпро, вул. Шолохова, 7
10.11.2023
Дніпропетровська обл., м. Дніпро, вул. Князя Ярослава Мудрого, 3. Оренда – приміщення 5-го поверху площею 18,60 кв.м. (В)
2 225.48 грн
119.65 грн / м2
Приміщення
Дніпропетровська обл., м. Дніпро, вул. Князя Ярослава Мудрого, 3. Оренда – приміщення 5-го поверху площею 18,60 кв.м. (В)
Україна, Дніпропетровська обл., м. Дніпро, вул. Князя Ярослава Мудрого, 3
Дніпропетровська обл., м. Дніпро, вул. Панікахи, 27. Оренда – приміщення 3-го поверху площею 742,0 кв.м. (В)
27 528.20 грн
37.10 грн / м2
Приміщення
Дніпропетровська обл., м. Дніпро, вул. Панікахи, 27. Оренда – приміщення 3-го поверху площею 742,0 кв.м. (В)
Україна, Дніпропетровська обл., м. Дніпро, вул. Панікахи, 27
10.11.2023
Дніпропетровська обл., Верхньодніпровський р-н, с. Малоолександрівка, вул. Центральна, 45. Оренда – приміщення площею 37,30 кв.м. (В)
298.40 грн
8.00 грн / м2
Приміщення
Дніпропетровська обл., Верхньодніпровський р-н, с. Малоолександрівка, вул. Центральна, 45. Оренда – приміщення площею 37,30 кв.м. (В)
Україна, Дніпропетровська обл., Верхньодніпровський р-н, с. Малоолександрівка, вул. Центральна, 45
Переглянуті пропозиції
16.02.2023
ДОВГОСТРОКОВА ОРЕНДА! м. Київ, вул. Ісаакяна, 3. Оренда – Приміщення цокольного поверху площею 400,8 кв.м. (В)
60 705.17 грн
151.46 грн / м2
Приміщення
ДОВГОСТРОКОВА ОРЕНДА! м. Київ, вул. Ісаакяна, 3. Оренда – Приміщення цокольного поверху площею 400,8 кв.м. (В)
Україна, м.Київ, Київ, вулиця Ісаакяна, 3
30.05.2023
Дніпропетровська обл., м. Дніпро, вул. Січових Стрільців, 10. Оренда – приміщення цокольного поверху площею 47,90 кв.м. (В)
2 212.98 грн
46.20 грн / м2
Приміщення
Дніпропетровська обл., м. Дніпро, вул. Січових Стрільців, 10. Оренда – приміщення цокольного поверху площею 47,90 кв.м. (В)
Україна, Дніпропетровська обл., м. Дніпро, вул. Січових Стрільців, 10