Закарпатська обл., м. Іршава, вул. Шевченка, 32. Оренда – приміщення на 2 поверсі площею 124,6 кв. м. (В)

1 864.02 грн
14.96 грн / м2
Україна, Закарпатська обл., м. Іршава, вул. Шевченка, 32
Перейти до аукціону на сайті
  • Інформація
  • Опис
  • Документи
Дата оголошення пропозиції:
21 жовтня 2024
Площа:
124.60 м2
Тип об’єкта:
Приміщення
Тип аукціону:
Англійський аукціон
Статус аукціону:
Аукціон не відбувся
Тип угоди:
Оренда
Розмір мінімального кроку:
55.00 ₴
Розмір гарантійного внеску:
1 118.41 ₴
Початок прийому пропозицій:
21.10.2024 13:26:44
Завершення прийому пропозицій:
19.11.2024 20:00:00
Проведення аукціону:
20.11.2024 12:00:00
Лот:
CLE001-UA-20241021-90569
№ лоту (УТК):
UTK211222_07P
Лот виставляється на торги (раз):
10
Стислий опис майна:
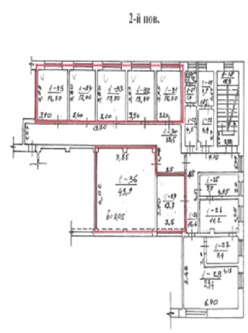
Пропонуються до оренди приміщення 2-го поверху площею 124,6 кв.м. Будівля знаходиться в центральній частині міста, розвинена інфраструктура, високі автомобільний та пішохідний потоки. Окремий вхід з двору. Стан приміщення потребує ремонту. Характеристики кількість поверхів – 3 загальна площа будівлі – 1105,5 кв. м. площа запропонована до оренди – 124,6 кв.м. Дозволена потужність – 15 кВт.
Адреса місцезнаходження майна:
Україна, Закарпатська обл., м. Іршава, вул. Шевченка, 32
Схожі пропозиції
30.07.2024
Закарпатська обл., Мукачівського р-н., с. Дусино, вул. Миру, 156-А;   Оренда – приміщення 1-го поверху площею 12,4 кв. м. (В)
272.80 грн
22.00 грн / м2
Приміщення
Закарпатська обл., Мукачівського р-н., с. Дусино, вул. Миру, 156-А; Оренда – приміщення 1-го поверху площею 12,4 кв. м. (В)
Україна, Закарпатська обл., Дусино, вул. Миру, 156-А
Закарпатська обл., м. Мукачево, вул. Ужгородська, 163. Оренда – адміністративна будівля, гаражі та приміщення складу
45 668.00 грн
74.56 грн / м2
Приміщення
Закарпатська обл., м. Мукачево, вул. Ужгородська, 163. Оренда – адміністративна будівля, гаражі та приміщення складу
Україна, Закарпатська обл., м. Мукачево, вул. Ужгородська, 163
05.06.2025
Закарпатська обл., Хустський р-н., с. Керецьки, вул. Головна, 5. Оренда – приміщення на 1-му поверсі площею 21,5 кв. м (В)
537.50 грн
25.00 грн / м2
Приміщення
Закарпатська обл., Хустський р-н., с. Керецьки, вул. Головна, 5. Оренда – приміщення на 1-му поверсі площею 21,5 кв. м (В)
Україна, Закарпатська обл., Керецьки, Керецьки, вул. Головна, 5
13.03.2025
Закарпатська обл., Мукачівського р-н., с. Дусино, вул. Миру, 156-А;   Оренда – приміщення 1-го поверху площею 12,4 кв. м. (В)
500.09 грн
40.33 грн / м2
Приміщення
Закарпатська обл., Мукачівського р-н., с. Дусино, вул. Миру, 156-А; Оренда – приміщення 1-го поверху площею 12,4 кв. м. (В)
Україна, Закарпатська обл., Дусино, вул. Миру, 156-А
Переглянуті пропозиції
22.09.2023
Рівненська обл., Сарненський р-н, с. Глинне, вул. Б.Хмельницького, 6а. Оренда – нежитлові приміщення 43,7 кв.м. (П)
1 689.01 грн
38.65 грн / м2
Приміщення
Рівненська обл., Сарненський р-н, с. Глинне, вул. Б.Хмельницького, 6а. Оренда – нежитлові приміщення 43,7 кв.м. (П)
Україна, Рівненська обл., с. Глинне, вул. Б.Хмельницького, 6а
23.11.2022
Рівненська обл., смт. Володимирець вул. Поштова ,23. Оренда – приміщення 1-го поверху загальною площею 80,5 м.кв. (В)
1 787.10 грн
22.20 грн / м2
Приміщення
Рівненська обл., смт. Володимирець вул. Поштова ,23. Оренда – приміщення 1-го поверху загальною площею 80,5 м.кв. (В)
Україна, Рівненська обл., смт. Володимирець, вул. Поштова ,23
Рівненська обл., Рівненський р-н, с. Річиця, вул. Центральна, 5. Оренда – приміщення 1 поверху площею 19,3 м.кв. (В)
790.34 грн
40.95 грн / м2
Приміщення
Рівненська обл., Рівненський р-н, с. Річиця, вул. Центральна, 5. Оренда – приміщення 1 поверху площею 19,3 м.кв. (В)
Україна, Рівненська обл., с. Річиця, вул. Центральна, 5
11.09.2024
Волинська обл., Володимир-Волинський р-н, м.Нововолинськ, вул.Митрополита Шептицького, 6; Оренда – група приміщень 3-го поверху площею 79,20 кв.м. (В)
4 937.33 грн
62.34 грн / м2
Приміщення
Волинська обл., Володимир-Волинський р-н, м.Нововолинськ, вул.Митрополита Шептицького, 6; Оренда – група приміщень 3-го поверху площею 79,20 кв.м. (В)
Україна, Волинська обл., Нововолинськ, вул. Митрополита Шептицького, 6