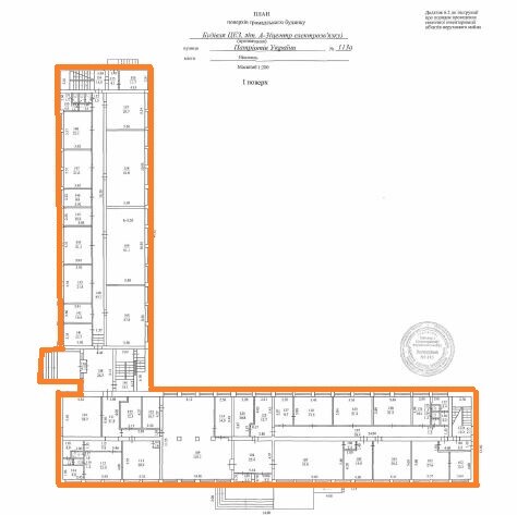
Дніпропетровська обл., м. Нікополь, вулиця Патріотів України, буд.113-А; Оренда – перший поверх, загальною площею 1104,3 кв.м.(В)

8 591.45 грн
7.78 грн / м2
Україна, Дніпропетровська обл., Нікополь, вул. Патріотів України, буд. 113-А
Перейти до аукціону на сайті
  • Інформація
  • Опис
  • Документи
Дата оголошення пропозиції:
22 жовтня 2024
Площа:
1104.30 м2
Тип об’єкта:
Приміщення
Тип аукціону:
Англійський аукціон
Статус аукціону:
Аукціон не відбувся
Тип угоди:
Оренда
Розмір мінімального кроку:
100.00 ₴
Розмір гарантійного внеску:
5 154.87 ₴
Початок прийому пропозицій:
22.10.2024 17:13:53
Завершення прийому пропозицій:
25.11.2024 20:00:00
Проведення аукціону:
26.11.2024 12:00:00
Лот:
CLE001-UA-20241022-94753
№ лоту (УТК):
UTK180222_03T
Лот виставляється на торги (раз):
10
Стислий опис майна:
Пропонується до оренди приміщення 1-го поверху, загальною площею 1104,3 кв.м. Поруч знаходяться торгівельний центр, середній автомобільний і пішохідний потоки. Стан приміщення задовільний, підходить для розміщення офісу. Характеристики: Кількість поверхів – 3; Загальна площа – 6459,1 кв.м_ Площа запропонована до оренди – 1104,3 кв.м Електропостачання, водопостачання; Земельна ділянка – 1,1369 га (договір оренди)
Адреса місцезнаходження майна:
Україна, Дніпропетровська обл., Нікополь, вул. Патріотів України, буд. 113-А
Схожі пропозиції
Дніпропетровська обл., м. Кривий Ріг, вул. Дніпропетровське шосе, 48. Оренда – приміщення 3-го поверху, площею 403,4 кв.м. (В)
4 510.01 грн
11.18 грн / м2
Приміщення
Дніпропетровська обл., м. Кривий Ріг, вул. Дніпропетровське шосе, 48. Оренда – приміщення 3-го поверху, площею 403,4 кв.м. (В)
Україна, Дніпропетровська обл., Кривий Ріг, вул. Дніпропетровське шосе, 48
Дніпропетровська обл., м. Новомосковськ, вулиця. Сучкова, 64. Оренда приміщень 2-го поверху
1 684.80 грн
28.80 грн / м2
Приміщення
Дніпропетровська обл., м. Новомосковськ, вулиця. Сучкова, 64. Оренда приміщень 2-го поверху
Україна, Дніпропетровська обл., м. Новомосковськ, вул. Сучкова, 64
18.10.2024
Дніпропетровська обл., м. Нікополь, вулиця Патріотів України, буд.113-А;  Оренда – перший поверх, загальною площею 1104,3 кв.м.(В)
8 591.45 грн
7.78 грн / м2
Приміщення
Дніпропетровська обл., м. Нікополь, вулиця Патріотів України, буд.113-А; Оренда – перший поверх, загальною площею 1104,3 кв.м.(В)
Україна, Дніпропетровська обл., Нікополь, вул. Патріотів України, буд. 113-А
18.07.2025
Дніпропетровська обл., м. Кам’янське, просп. Свободи, 44. Оренда – приміщення 5-го поверху загальною площею 237,20 кв.м (В)
2 846.40 грн
12.00 грн / м2
Приміщення
Дніпропетровська обл., м. Кам’янське, просп. Свободи, 44. Оренда – приміщення 5-го поверху загальною площею 237,20 кв.м (В)
Україна, Дніпропетровська обл., м. Кам’янське, просп. Свободи, 44
Переглянуті пропозиції
ДОВГОСТРОКОВА ОРЕНДА! м. Київ, вул. Антоновича, 40, оренда – приміщення 2-го поверху, площею 757,90 кв.м. (В)
333 400.21 грн
439.90 грн / м2
Приміщення
ДОВГОСТРОКОВА ОРЕНДА! м. Київ, вул. Антоновича, 40, оренда – приміщення 2-го поверху, площею 757,90 кв.м. (В)
Україна, м.Київ, Київ, вул. Антоновича, 40
28.09.2023
Львівська область, с. Батьків, вул. Центральна, 28. Оренда – приміщення 1-го поверху площею 21,20 кв.м. (В)
318.00 грн
3.71 грн / м2
Приміщення
Львівська область, с. Батьків, вул. Центральна, 28. Оренда – приміщення 1-го поверху площею 21,20 кв.м. (В)
Україна, Львівська обл., с. Батьків, вул. Центральна, 28
09.09.2025
м. Київ, вул. Дегтярівська, 28А, літ. «А» (Шевченківський р-н). Оренда – приміщення на 1-му поверсі, площею – 35,20 кв.м (В)
4 536.58 грн
128.88 грн / м2
Приміщення
м. Київ, вул. Дегтярівська, 28А, літ. «А» (Шевченківський р-н). Оренда – приміщення на 1-му поверсі, площею – 35,20 кв.м (В)
Україна, м.Київ, Київ, 04119, м. Київ, вул. Дегтярівська, 28А, літ. «А» (Шевченківський р-н