Івано-Франківська обл., м. Івано-Франківськ, вул. Ю.Целевича, 18а. Оренда – приміщення 2-го поверху, площею 57,9 м.кв (П)

3 193.76 грн
55.16 грн / м2
Україна, Івано-Франківська обл., м. Івано-Франківськ, вул. Ю.Целевича, 18а
Перейти до аукціону на сайті
  • Інформація
  • Опис
  • Документи
Дата оголошення пропозиції:
01 листопада 2024
Площа:
57.90 м2
Тип об’єкта:
Приміщення
Тип аукціону:
Англійський аукціон
Статус аукціону:
Аукціон не відбувся
Тип угоди:
Оренда
Розмір мінімального кроку:
100.00 ₴
Розмір гарантійного внеску:
1 916.26 ₴
Початок прийому пропозицій:
01.11.2024 12:09:01
Завершення прийому пропозицій:
02.12.2024 20:00:00
Проведення аукціону:
03.12.2024 11:10:00
Лот:
CLE001-UA-20241101-81458
№ лоту (УТК):
UTK230924_13P
Лот виставляється на торги (раз):
2
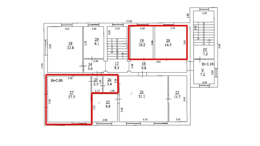
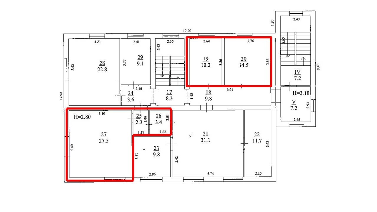
Стислий опис майна:
Пропонуються до оренди приміщення 2-го поверху, площею 57,9 м.кв. в м.Івано-Франківськ, вул. Ю.Целевича, 18А. Будівля знаходиться на околиці міста, розвинена інфраструктура, високий автомобільний потік. Характеристики Кількість поверхів – 3 Загальна площа - 546,8 Площа запропонована до оренди - 57,9 Дозволена потужність (на орендовану площу) - 3,0 кВт Теплопостачання/опалення - газове Земельна ділянка – 1,0229 га
Адреса місцезнаходження майна:
Україна, Івано-Франківська обл., м. Івано-Франківськ, вул. Ю.Целевича, 18а
Схожі пропозиції
м. Івано-Франківськ, вул. Ребета, 2. Нежитлові Нежитлові приміщення 3-го поверху площею 57,1 кв.м.(В)
700.62 грн
12.27 грн / м2
Приміщення
м. Івано-Франківськ, вул. Ребета, 2. Нежитлові Нежитлові приміщення 3-го поверху площею 57,1 кв.м.(В)
Україна, Івано-Франківська обл., м. Івано-Франківськ, вул. Ребета, 2
21.06.2024
м. Івано-Франківськ, вул. Довга, 58;   Оренда – приміщення підвалу виробничого будинку, площею 57,6 кв.м. (В)
4 298.11 грн
74.62 грн / м2
Приміщення
м. Івано-Франківськ, вул. Довга, 58; Оренда – приміщення підвалу виробничого будинку, площею 57,6 кв.м. (В)
Україна, Івано-Франківська обл., м. Івано-Франківськ, вулиця Довга, 58
Івано-Франківська обл., Косівський р-н, с.Стопчатів, вул. Центральна, 3а. Оренда – Приміщення 1-го поверху, площею 169,9 м.кв. (В)
2 421.08 грн
14.25 грн / м2
Приміщення
Івано-Франківська обл., Косівський р-н, с.Стопчатів, вул. Центральна, 3а. Оренда – Приміщення 1-го поверху, площею 169,9 м.кв. (В)
Україна, Івано-Франківська обл., Стопчатів, вул. Центральна, 3а
26.12.2023
Івано-Франківська обл., Калуський р-н, м. Калуш, просп. Лесі Українки, 19.Оренда – приміщення 1-го поверху, площею 250,9 м.кв (В)
9 428.82 грн
37.58 грн / м2
Приміщення
Івано-Франківська обл., Калуський р-н, м. Калуш, просп. Лесі Українки, 19.Оренда – приміщення 1-го поверху, площею 250,9 м.кв (В)
Україна, Івано-Франківська обл., Калуський р-н, м. Калуш, просп. Лесі Українки, 19
Переглянуті пропозиції
03.06.2025
Сумська обл., Конотопський р-н, с. Малий Самбір, вул. Центральна, 1А. Оренда – нежитлове приміщення площею 17,90 кв.м. (В)
501.20 грн
28.00 грн / м2
Приміщення
Сумська обл., Конотопський р-н, с. Малий Самбір, вул. Центральна, 1А. Оренда – нежитлове приміщення площею 17,90 кв.м. (В)
Україна, Сумська обл., с. Малий Самбір, вул. Центральна, 1А