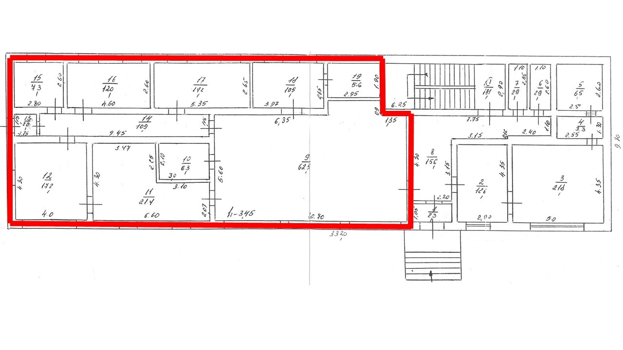
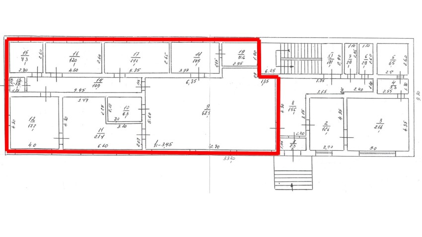
Івано-Франківська обл., Косівський р-н, с.Стопчатів, вул. Центральна, 3а. Оренда – Приміщення 1-го поверху, площею 169,9 м.кв. (В)

2 421.08 грн
14.25 грн / м2
Україна, Івано-Франківська обл., Стопчатів, вул. Центральна, 3а
Перейти до аукціону на сайті
  • Інформація
  • Опис
  • Документи
Дата оголошення пропозиції:
08 червня 2022
Площа:
169.90 м2
Тип об’єкта:
Приміщення
Тип аукціону:
Англійський аукціон
Статус аукціону:
Аукціон не відбувся
Тип угоди:
Оренда
Розмір мінімального кроку:
200.00 ₴
Розмір гарантійного внеску:
1 452.65 ₴
Початок прийому пропозицій:
08.06.2022 15:33:44
Завершення прийому пропозицій:
11.07.2022 20:00:00
Лот:
UA-PS-2022-06-08-000009-3
№ лоту (УТК):
UTK060721_15Т
Лот виставляється на торги (раз):
3
Стислий опис майна:
Пропонуються до оренди приміщення 1-го поверху. Будівля знаходиться на околиці населеного пункту. Високий транспортний потік. Характеристики • кількість поверхів – 2 • опалення газове • земельна ділянка – 0,1377 га
Адреса місцезнаходження майна:
Україна, Івано-Франківська обл., Стопчатів, вул. Центральна, 3а
Схожі пропозиції
17.03.2023
Івано-Франківська обл., Калуський район, смт. Рожнятів, площа Єдності, 9, оренда – Приміщення 3-го поверху площею 100,8 м.кв. (В)
1 257.98 грн
12.48 грн / м2
Приміщення
Івано-Франківська обл., Калуський район, смт. Рожнятів, площа Єдності, 9, оренда – Приміщення 3-го поверху площею 100,8 м.кв. (В)
Україна, Івано-Франківська обл., смт. Рожнятів, площа Єдності, 9
08.10.2025
Івано-Франківська обл. м. Івано-Франківськ, вул. В. Симоненка, 1. Оренда – приміщення 1-го поверху, площею 37,5 м.кв. (В)
3 121.88 грн
83.25 грн / м2
Приміщення
Івано-Франківська обл. м. Івано-Франківськ, вул. В. Симоненка, 1. Оренда – приміщення 1-го поверху, площею 37,5 м.кв. (В)
Україна, Івано-Франківська обл., Івано-Франківськ, вул. В.Симоненка, 1
04.02.2025
Івано-Франківська обл., Калуський  район, смт. Рожнятів,  площа Єдності,  9;   Оренда – приміщення 3-го поверху площею 109,6 кв.м. (В)
1 367.81 грн
12.48 грн / м2
Приміщення
Івано-Франківська обл., Калуський район, смт. Рожнятів, площа Єдності, 9; Оренда – приміщення 3-го поверху площею 109,6 кв.м. (В)
Україна, Івано-Франківська обл., Рожнятів, площа Єдності, 9
04.02.2025
Івано-Франківська обл., Івано-Франківський р-н, м. Рогатин, вул. Галицька, 73.Оренда – приміщення 1-го поверху, площею 146,0 м.кв. (В)
5 749.48 грн
39.38 грн / м2
Приміщення
Івано-Франківська обл., Івано-Франківський р-н, м. Рогатин, вул. Галицька, 73.Оренда – приміщення 1-го поверху, площею 146,0 м.кв. (В)
Україна, Івано-Франківська обл., Івано-Франківський р-н, м. Рогатин, вул. Галицька, 73