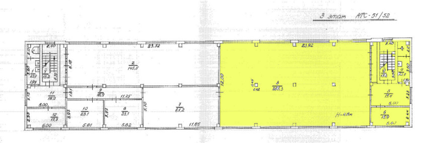
м. Харків, пр-т. Г. Сталінграду, 3. Оренда – приміщення 3-го поверху площею 344,7 кв.м. (В)

18 820.62 грн
54.60 грн / м2
Україна, Харківська обл., м. Харків, пр-т. Г. Сталінграду, 3
Перейти до аукціону на сайті
  • Інформація
  • Опис
  • Документи
Дата оголошення пропозиції:
07 листопада 2024
Площа:
344.70 м2
Тип об’єкта:
Приміщення
Тип аукціону:
Англійський аукціон
Статус аукціону:
Аукціон не відбувся
Тип угоди:
Оренда
Розмір мінімального кроку:
300.00 ₴
Розмір гарантійного внеску:
11 292.37 ₴
Початок прийому пропозицій:
07.11.2024 16:29:39
Завершення прийому пропозицій:
10.12.2024 20:00:00
Проведення аукціону:
11.12.2024 11:15:00
Лот:
CLE001-UA-20241107-65343
№ лоту (УТК):
UTK070823_07P
Лот виставляється на торги (раз):
10
Стислий опис майна:
Пропонується до оренди приміщення третього поверху площею 344,7 кв.м. Будівля в спальному районі міста Харкова. 10 хв до зупинки транспорту. Характеристики: Кількість поверхів – 4. Загальна площа – 3 761,8 кв.м. Площа запропонована до оренди – 344,7 кв.м. Дозволена потужність – 20 кВт. Теплопостачання-відсутнє. Земельна ділянка – 0,6208 га.
Адреса місцезнаходження майна:
Україна, Харківська обл., м. Харків, пр-т. Г. Сталінграду, 3
Схожі пропозиції
27.08.2024
м.Харків, вул. Старошишківська, 5а. Оренда – приміщення третього поверху площею 449,4 кв.м (П)
33 264.59 грн
74.02 грн / м2
Приміщення
м.Харків, вул. Старошишківська, 5а. Оренда – приміщення третього поверху площею 449,4 кв.м (П)
Україна, Харківська обл., м. Харків, вул. Старошишківська, 5а
03.06.2025
м. Харків, пр-т. Ювілейний, 66. Оренда – приміщення 3-го поверху площею 345,8 кв.м. (В)
13 475.83 грн
38.97 грн / м2
Приміщення
м. Харків, пр-т. Ювілейний, 66. Оренда – приміщення 3-го поверху площею 345,8 кв.м. (В)
Україна, Харківська обл., м. Харків, пр-т. Ювілейний, 66
Харківська обл., м. Харків, пр-т. Г. Сталінграду, 169. Оренда – приміщення 2-го поверху, площею 36,30 кв.м. (В)
1 415.70 грн
39.00 грн / м2
Приміщення
Харківська обл., м. Харків, пр-т. Г. Сталінграду, 169. Оренда – приміщення 2-го поверху, площею 36,30 кв.м. (В)
Україна, Харківська обл., м. Харків, пр-т. Г. Сталінграду, 169
05.11.2024
м. Харків, просп. Олександрівський, 83. Оренда – приміщення 2-го поверху площею 118,1 кв.м. (В)
6 448.26 грн
54.60 грн / м2
Приміщення
м. Харків, просп. Олександрівський, 83. Оренда – приміщення 2-го поверху площею 118,1 кв.м. (В)
Україна, Харківська обл., м. Харків, просп. Олександрівський, 83
Переглянуті пропозиції
29.03.2024
Вінницька обл. м. Могилів-Подільський, вул. Київська, 41;  Оренда – приміщення 1-го поверху, площею 48,2 кв.м. (В)
706.61 грн
14.66 грн / м2
Приміщення
Вінницька обл. м. Могилів-Подільський, вул. Київська, 41; Оренда – приміщення 1-го поверху, площею 48,2 кв.м. (В)
Україна, Вінницька обл., Могилів-Подільський, вулиця Київська, 41
03.06.2025
м. Харків, вул. Конторська,14.Оренда – приміщення 2-го поверху площею 36,2 кв.м (В)
1 086.00 грн
30.00 грн / м2
Приміщення
м. Харків, вул. Конторська,14.Оренда – приміщення 2-го поверху площею 36,2 кв.м (В)
Україна, Харківська обл., м. Харків, вул. Конторська,14
Полтавська обл., м. Решетилівка, вул. Старокиївська, 2 Оренда - приміщення 2го поверху 25,3 кв.м.
1 416.80 грн
56.00 грн / м2
Приміщення
Полтавська обл., м. Решетилівка, вул. Старокиївська, 2 Оренда - приміщення 2го поверху 25,3 кв.м.
Україна, Полтавська обл., м. Решетилівка, вул. Старокиївська, 2