Львівська обл., с. Сілець, вул. Підберезина, 25. Оренда – частини будівлі загальною площею 48,80 кв. м (В)

622.69 грн
12.76 грн / м2
Україна, Львівська обл., с. Сілець, вул. Підберезина, 25
Перейти до аукціону на сайті
  • Інформація
  • Опис
  • Документи
Дата оголошення пропозиції:
26 листопада 2024
Площа:
48.80 м2
Тип об’єкта:
Будівля
Тип аукціону:
Англійський аукціон
Статус аукціону:
Аукціон не відбувся
Тип угоди:
Оренда
Розмір мінімального кроку:
40.00 ₴
Розмір гарантійного внеску:
373.61 ₴
Початок прийому пропозицій:
26.11.2024 13:43:40
Завершення прийому пропозицій:
26.12.2024 20:00:00
Проведення аукціону:
27.12.2024 12:50:00
Лот:
CLE001-UA-20241126-55059
№ лоту (УТК):
UTK140322_15P
Лот виставляється на торги (раз):
10
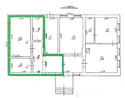
Стислий опис майна:
Пропонуються до оренди частини будівлі загальною площею 48,80 кв. м. Будівля розташована на околиці села. Світло потребує відновлення. Характеристики: Стан задовільний Кількість поверхів - 1 Вільне до споживання електропостачання – 2 кВт
Адреса місцезнаходження майна:
Україна, Львівська обл., с. Сілець, вул. Підберезина, 25
Схожі пропозиції
30.09.2022
Львівська обл., с. Сілець, вул. Підберезина, 25. Оренда – частини будівлі загальною площею 48,80 кв. м (В)
515.33 грн
10.56 грн / м2
Будівля
Львівська обл., с. Сілець, вул. Підберезина, 25. Оренда – частини будівлі загальною площею 48,80 кв. м (В)
Україна, Львівська обл., с. Сілець, вул. Підберезина, 25
04.05.2023
Львівська обл., м. Ходорів, вул. Шевченка, 119. Оренда – частини будівлі площею 48,10 кв. м. (В)
740.74 грн
15.40 грн / м2
Будівля
Львівська обл., м. Ходорів, вул. Шевченка, 119. Оренда – частини будівлі площею 48,10 кв. м. (В)
Україна, Львівська обл., м. Ходорів, вул. Шевченка, 119
27.12.2024
Львівська обл., с. П’ятничани, вул. Львівська, 1. Оренда – будівля складу площею 75 кв.м. (В)
1 321.50 грн
17.62 грн / м2
Будівля
Львівська обл., с. П’ятничани, вул. Львівська, 1. Оренда – будівля складу площею 75 кв.м. (В)
Україна, Львівська обл., с. П’ятничани, вул. Львівська, 1
24.09.2024
Львівська обл., м. Золочів, вул. Л.Українки,16. Оренда – одноповерхова будівля площею 248,5 кв.м (В)
5 467.00 грн
22.00 грн / м2
Будівля
Львівська обл., м. Золочів, вул. Л.Українки,16. Оренда – одноповерхова будівля площею 248,5 кв.м (В)
Україна, Львівська обл., м. Золочів, вул. Л.Українки,16
Переглянуті пропозиції
26.12.2024
Рівненська обл., Рівненський р-н., с. Балашівка, вул. Незалежності, 52;   Оренда – нежитлове приміщення площею 12,9 кв.м. (В)
258.00 грн
20.00 грн / м2
Приміщення
Рівненська обл., Рівненський р-н., с. Балашівка, вул. Незалежності, 52; Оренда – нежитлове приміщення площею 12,9 кв.м. (В)
Україна, Рівненська обл., Балашівка, вул. Незалежності, 52
09.09.2022
Сумська обл., м. Лебедин, вул. Героїв Майдану, буд. 25. Оренда – офісні приміщення 3-го поверху площею 32,50 кв. м (В)
690.30 грн
21.24 грн / м2
Офіс
Сумська обл., м. Лебедин, вул. Героїв Майдану, буд. 25. Оренда – офісні приміщення 3-го поверху площею 32,50 кв. м (В)
Україна, Сумська обл., Лебедин, вул. Героїв Майдану, 25
21.01.2025
Полтавська обл., Мирогородський р-н, смт. В.Багачка, вулиця Каштанова, 13;  Оренда – будівля площею 176,50 кв.м. (В)
2 499.42 грн
14.16 грн / м2
Будівля
Полтавська обл., Мирогородський р-н, смт. В.Багачка, вулиця Каштанова, 13; Оренда – будівля площею 176,50 кв.м. (В)
Україна, Полтавська обл., Велика Багачка, вулиця Каштанова, 13
21.08.2024
м. Харків, вул. Конторська,14.Оренда – приміщення 2-го поверху площею 20,5 кв.м (В)
1 420.65 грн
69.30 грн / м2
Приміщення
м. Харків, вул. Конторська,14.Оренда – приміщення 2-го поверху площею 20,5 кв.м (В)
Україна, Харківська обл., м. Харків, вул. Конторська,14