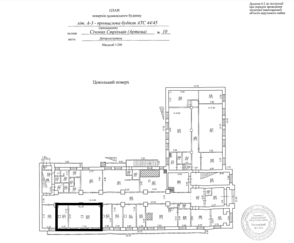
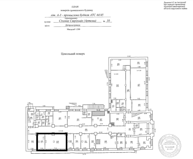
Дніпропетровська обл., м. Дніпро, вул. Січових Стрільців, 10. Оренда – приміщення цокольного поверху площею 47,90 кв.м. (В)

5 006.51 грн
104.52 грн / м2
Україна, Дніпропетровська обл., м. Дніпро, вул. Січових Стрільців, 10
Перейти до аукціону на сайті
  • Інформація
  • Опис
  • Документи
Дата оголошення пропозиції:
28 листопада 2024
Площа:
47.90 м2
Тип об’єкта:
Приміщення
Тип аукціону:
Англійський аукціон
Статус аукціону:
Аукціон не відбувся
Тип угоди:
Оренда
Розмір мінімального кроку:
100.00 ₴
Розмір гарантійного внеску:
3 003.90 ₴
Початок прийому пропозицій:
28.11.2024 10:35:26
Завершення прийому пропозицій:
30.12.2024 20:00:00
Проведення аукціону:
31.12.2024 11:15:00
Лот:
CLE001-UA-20241128-37328
№ лоту (УТК):
UTK281221_04P
Лот виставляється на торги (раз):
10
Стислий опис майна:
Пропонується до оренди приміщення цокольного поверху площею 47,90кв.м. Розташування - будівля знаходиться в центральному районі міста. Поруч знаходяться відділення банку, високий автомобільний і пішохідний потоки. Стан приміщення задовільний, підходить для офісу, студії, Ідеальне місце під розвиток будь-якого бізнесу. Можливість передачі приміщень в суборенду. Характеристики: - Кількість поверхів – 3 - Загальна площа – 2854,80 кв.м. - Площа запропонована до оренди – 47,90 кв.м. - Електропостачання, водопостачання, теплопостачання, охорона та обслуговування пожежної сигналізації, вивіз сміття, прибирання загальних місць та території; - Земельна ділянка – 0, 1636 га (договір оренди)
Адреса місцезнаходження майна:
Україна, Дніпропетровська обл., м. Дніпро, вул. Січових Стрільців, 10
Схожі пропозиції
29.02.2024
Дніпропетровська обл., м. Дніпро, вул. Чернишевського, 27. Оренда – приміщення 2-го поверху площею 154,00 кв.м. (В)
7 797.02 грн
50.63 грн / м2
Приміщення
Дніпропетровська обл., м. Дніпро, вул. Чернишевського, 27. Оренда – приміщення 2-го поверху площею 154,00 кв.м. (В)
Україна, Дніпропетровська обл., м. Дніпро, вул. Чернишевського, 27
10.10.2025
Дніпропетровська обл., м. Кривий Ріг, вул. Водоп`янова, 1а. Оренда – приміщення 3-го поверху, площею 812,30 кв.м. (В)
9 747.60 грн
12.00 грн / м2
Приміщення
Дніпропетровська обл., м. Кривий Ріг, вул. Водоп`янова, 1а. Оренда – приміщення 3-го поверху, площею 812,30 кв.м. (В)
Україна, Дніпропетровська обл., Кривий Ріг, вул. Водоп`янова, 1а
09.09.2022
Дніпропетровська обл., смт. Слобожанське, вул. Теплична, 24. Оренда – приміщення будівлі лабораторії (літ.Б), площею 19,40 кв.м. (В)
897.06 грн
46.24 грн / м2
Приміщення
Дніпропетровська обл., смт. Слобожанське, вул. Теплична, 24. Оренда – приміщення будівлі лабораторії (літ.Б), площею 19,40 кв.м. (В)
Україна, Дніпропетровська обл., смт. Слобожанське, вул. Теплична, 24
09.04.2024
Дніпропетровська обл., м. Дніпро, вул. Панікахи, 27. Оренда – приміщення 4-го поверху площею 737,0 кв.м.(В)
47 477.54 грн
64.42 грн / м2
Приміщення
Дніпропетровська обл., м. Дніпро, вул. Панікахи, 27. Оренда – приміщення 4-го поверху площею 737,0 кв.м.(В)
Україна, Дніпропетровська обл., м. Дніпро, вул. Панікахи, 27
Переглянуті пропозиції
13.05.2025
Рівненська обл., смт. Володимирець, вул. Поштова, 23. Оренда – приміщення 2-поверху площею 101,60 кв.м
4 511.04 грн
44.40 грн / м2
Приміщення
Рівненська обл., смт. Володимирець, вул. Поштова, 23. Оренда – приміщення 2-поверху площею 101,60 кв.м
Україна, Рівненська обл., Володимирець, вулиця Поштова, 23
27.09.2024
Полтавська обл., Миргородський р-н., смт. Велика Багачка, вул. Чекалових, 17. Оренда – Приміщення 1-го поверху, загальною площею 113,90 кв.м. (В)
3 706.31 грн
32.54 грн / м2
Приміщення
Полтавська обл., Миргородський р-н., смт. Велика Багачка, вул. Чекалових, 17. Оренда – Приміщення 1-го поверху, загальною площею 113,90 кв.м. (В)
Україна, Полтавська обл., Миргородський р-н., смт. Велика Багачка, вул. Чекалових, 17
Харківська обл., м. Харків, просп. Олександрівський, 83. Оренда – приміщення гаражу
635.52 грн
19.20 грн / м2
Приміщення
Харківська обл., м. Харків, просп. Олександрівський, 83. Оренда – приміщення гаражу
Україна, Харківська обл., м. Харків, просп. Олександрівський, 83
02.08.2023
Рівненська обл., Рівненський р-н., с. Балашівка, вул. Незалежності, 52. Оренда – нежитлове приміщення площею 12,9 кв.м. (В)
500.13 грн
38.77 грн / м2
Приміщення
Рівненська обл., Рівненський р-н., с. Балашівка, вул. Незалежності, 52. Оренда – нежитлове приміщення площею 12,9 кв.м. (В)
Україна, Рівненська обл., Балашівка, вул. Незалежності, 52