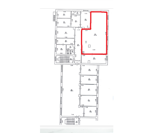
Рівненська обл., смт. Володимирець, вул. Поштова, 23. Оренда – приміщення 2-поверху площею 101,60 кв.м

4 511.04 грн
44.40 грн / м2
Україна, Рівненська обл., Володимирець, вулиця Поштова, 23
Перейти до аукціону на сайті
  • Інформація
  • Опис
  • Документи
Дата оголошення пропозиції:
12 квітня 2025
Площа:
101.60 м2
Тип об’єкта:
Приміщення
Тип аукціону:
Англійський аукціон
Статус аукціону:
Аукціон не відбувся
Тип угоди:
Оренда
Розмір мінімального кроку:
200.00 ₴
Розмір гарантійного внеску:
2 706.62 ₴
Початок прийому пропозицій:
12.04.2025 20:51:26
Завершення прийому пропозицій:
12.05.2025 20:00:00
Проведення аукціону:
13.05.2025 12:05:00
Лот:
CLE001-UA-20250412-87966
№ лоту (УТК):
UTK110425_14U
Лот виставляється на торги (раз):
1
Стислий опис майна:
Пропонується до оренди приміщення 2-поверху площею 101,6 кв.м. Будівля знаходиться в центральній частині селища. Розвинена інфраструктура, досить високі автомобільний та пішоходний потоки. Територія огороджена та частково впорядкована. Характеристики: Кількість поверхів – 2; Загальна площа – 1183,4 кв.м_ Площа запропонована до оренди -101,6 кв.м Дозволена потужність – 3 кВт Теплопостачання-централізоване Земельна ділянка – 0,2703 га (договір оренди)
Адреса місцезнаходження майна:
Україна, Рівненська обл., Володимирець, вулиця Поштова, 23
Схожі пропозиції
25.05.2023
Рівненська обл., Рівненський р-н, с. Здовбиця, вул. Шосова, 107. Оренда – нежитлові приміщення площею 80,3 м. кв. (В)
1 388.39 грн
17.29 грн / м2
Приміщення
Рівненська обл., Рівненський р-н, с. Здовбиця, вул. Шосова, 107. Оренда – нежитлові приміщення площею 80,3 м. кв. (В)
Україна, Рівненська обл., Рівненський р-н, с. Здовбиця, вул. Шосова, 107
18.11.2022
Рівненська обл. м. Радивилів, вул. О.Невського, 1. Оренда – приміщення підвалу , 2 – го та 3 –го поверху площею 330,8 кв.м. (В)
3 986.14 грн
12.05 грн / м2
Приміщення
Рівненська обл. м. Радивилів, вул. О.Невського, 1. Оренда – приміщення підвалу , 2 – го та 3 –го поверху площею 330,8 кв.м. (В)
Україна, Рівненська обл., м. Радивилів, вул. О.Невського, 1
27.05.2025
Рівненська обл., Варашський р-н, с. Дібрівськ, вул.Центральна, 1. Оренда – приміщення 1 поверху площею 25,5 кв. м. (В)
510.00 грн
20.00 грн / м2
Приміщення
Рівненська обл., Варашський р-н, с. Дібрівськ, вул.Центральна, 1. Оренда – приміщення 1 поверху площею 25,5 кв. м. (В)
Україна, Рівненська обл., Варашський р-н, с. Дібрівськ, вул.Центральна, 1
13.09.2024
Рівненська обл., Дубенський р-н. с. Верба вул. Грушевського ,4 . Оренда – виробничі приміщення площею 146,7 кв.м. (В)
2 316.39 грн
15.79 грн / м2
Приміщення
Рівненська обл., Дубенський р-н. с. Верба вул. Грушевського ,4 . Оренда – виробничі приміщення площею 146,7 кв.м. (В)
Україна, Рівненська обл., Дубенський р-н. с. Верба, вул. Грушевського ,4
Переглянуті пропозиції
27.09.2024
Полтавська обл., Миргородський р-н., смт. Велика Багачка, вул. Чекалових, 17. Оренда – Приміщення 1-го поверху, загальною площею 113,90 кв.м. (В)
3 706.31 грн
32.54 грн / м2
Приміщення
Полтавська обл., Миргородський р-н., смт. Велика Багачка, вул. Чекалових, 17. Оренда – Приміщення 1-го поверху, загальною площею 113,90 кв.м. (В)
Україна, Полтавська обл., Миргородський р-н., смт. Велика Багачка, вул. Чекалових, 17
Харківська обл., м. Харків, просп. Олександрівський, 83. Оренда – приміщення гаражу
635.52 грн
19.20 грн / м2
Приміщення
Харківська обл., м. Харків, просп. Олександрівський, 83. Оренда – приміщення гаражу
Україна, Харківська обл., м. Харків, просп. Олександрівський, 83
02.08.2023
Рівненська обл., Рівненський р-н., с. Балашівка, вул. Незалежності, 52. Оренда – нежитлове приміщення площею 12,9 кв.м. (В)
500.13 грн
38.77 грн / м2
Приміщення
Рівненська обл., Рівненський р-н., с. Балашівка, вул. Незалежності, 52. Оренда – нежитлове приміщення площею 12,9 кв.м. (В)
Україна, Рівненська обл., Балашівка, вул. Незалежності, 52
14.02.2024
Сумська обл., м. Суми, вул. Іллінська, буд. 2. Оренда – офісні приміщення 3-го поверху площею 411,00 кв. м. (В)
24 138.03 грн
58.73 грн / м2
Офіс
Сумська обл., м. Суми, вул. Іллінська, буд. 2. Оренда – офісні приміщення 3-го поверху площею 411,00 кв. м. (В)
Україна, Сумська обл., м. Суми, вул. Іллінська, буд. 2