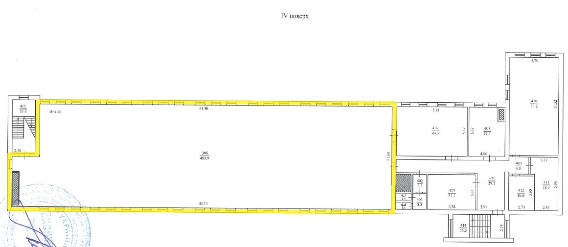
ДОВГОСТРОКОВА ОРЕНДА! Дніпропетровська обл., м. Дніпро, вул. Героїв, 14. Оренда – приміщення 4-го поверху площею 483,90 кв.м. (В)

44 470.41 грн
91.90 грн / м2
Україна, Дніпропетровська обл., м. Дніпро, вул. Героїв, 14
Перейти до аукціону на сайті
  • Інформація
  • Опис
  • Документи
Дата оголошення пропозиції:
06 грудня 2024
Площа:
483.90 м2
Тип об’єкта:
Приміщення
Тип аукціону:
Англійський аукціон
Статус аукціону:
Аукціон не відбувся
Тип угоди:
Оренда
Розмір мінімального кроку:
1 000.00 ₴
Розмір гарантійного внеску:
26 682.25 ₴
Початок прийому пропозицій:
06.12.2024 12:50:44
Завершення прийому пропозицій:
06.01.2025 20:00:00
Проведення аукціону:
07.01.2025 12:15:00
Лот:
CLE001-UA-20241206-15489
№ лоту (УТК):
UTK061224_01P
Лот виставляється на торги (раз):
1
Стислий опис майна:
Пропонується до оренди приміщення 4-го поверху площею 483,90 кв.м. Розташування - будівля знаходиться в Соборному районі міста. Поруч знаходяться відділення банку, супермаркети, лікарня, зупинка громадського транспорту, високий автомобільний і пішохідний потоки. Стан приміщення –потребує ремонту. Характеристики: Кількість поверхів – 5 Загальна площа – 3705,30 кв.м. Площа запропонована до оренди – 483,90 кв.м. Електропостачання, водопостачання, теплопостачання Земельна ділянка – 0,2755 га (договір оренди) Ресурсні податки – 6,90 грн за 1 кв.м
Адреса місцезнаходження майна:
Україна, Дніпропетровська обл., м. Дніпро, вул. Героїв, 14
Схожі пропозиції
17.03.2023
Дніпропетровська обл., м. Кривий Ріг, вул. Головка Адмірала, 71. Оренда – приміщення 2-го поверху, площею 306,9 кв.м. (В)
8 986.03 грн
29.28 грн / м2
Приміщення
Дніпропетровська обл., м. Кривий Ріг, вул. Головка Адмірала, 71. Оренда – приміщення 2-го поверху, площею 306,9 кв.м. (В)
Україна, Дніпропетровська обл., Кривий Ріг, вулиця Адмірала Головка, 71
05.08.2025
Дніпропетровська обл., м. Кривий Ріг, вул. Героїв АТО, 97. Оренда – приміщення 3-го поверху площею 198,7 кв. м. (В)
11 363.65 грн
57.19 грн / м2
Приміщення
Дніпропетровська обл., м. Кривий Ріг, вул. Героїв АТО, 97. Оренда – приміщення 3-го поверху площею 198,7 кв. м. (В)
Україна, Дніпропетровська обл., м. Кривий Ріг, вул. Героїв АТО, 97
12.08.2022
Дніпропетровська обл., м. Марганець, вул. Єдності, 25. Оренда – приміщення 1-го поверху площею 31,20 кв.м. (В)
612.46 грн
19.63 грн / м2
Приміщення
Дніпропетровська обл., м. Марганець, вул. Єдності, 25. Оренда – приміщення 1-го поверху площею 31,20 кв.м. (В)
Україна, Дніпропетровська обл., м. Марганець, вул. Єдності, 25
26.04.2024
Дніпропетровська обл., м. Кам’янське, просп. Героїв АТО, 1. Оренда – приміщення 3-го поверху загальною площею 133,60 кв.м (В)
6 404.78 грн
47.94 грн / м2
Приміщення
Дніпропетровська обл., м. Кам’янське, просп. Героїв АТО, 1. Оренда – приміщення 3-го поверху загальною площею 133,60 кв.м (В)
Україна, Дніпропетровська обл., м. Кам’янське, просп. Героїв АТО, 1
Переглянуті пропозиції
Дніпропетровська обл., м. Дніпро, бульвар Рубіновий, буд.18. Оренда приміщення 1-го, 2-го, 3-го, 4-го, 5-го поверхів площею 3 801,8 кв.м.(В)
37 637.82 грн
9.90 грн / м2
Приміщення
Дніпропетровська обл., м. Дніпро, бульвар Рубіновий, буд.18. Оренда приміщення 1-го, 2-го, 3-го, 4-го, 5-го поверхів площею 3 801,8 кв.м.(В)
Україна, Дніпропетровська обл., м. Дніпро, бульвар Рубіновий, буд.18
16.09.2022
м. Київ, вул. Ісаакяна, 3 Оренда – Приміщення 2-го поверху площею 149,81 кв.м. (В)
22 690.22 грн
151.46 грн / м2
Приміщення
м. Київ, вул. Ісаакяна, 3 Оренда – Приміщення 2-го поверху площею 149,81 кв.м. (В)
Україна, м.Київ, Київ, вулиця Ісаакяна, 3
09.04.2024
Дніпропетровська обл., м. Дніпро, вул. Князя Ярослава Мудрого, 3. Оренда – приміщення 5-го поверху площею 23,10 кв.м. (В)
2 763.91 грн
119.65 грн / м2
Приміщення
Дніпропетровська обл., м. Дніпро, вул. Князя Ярослава Мудрого, 3. Оренда – приміщення 5-го поверху площею 23,10 кв.м. (В)
Україна, Дніпропетровська обл., м. Дніпро, вул. Князя Ярослава Мудрого, 3
01.03.2023
Дніпропетровська обл., смт. Софіївка, бул. Шевченка, 17А. Оренда – приміщення 1-го поверху площею 11,6 кв.м. (В)
588.24 грн
50.71 грн / м2
Приміщення
Дніпропетровська обл., смт. Софіївка, бул. Шевченка, 17А. Оренда – приміщення 1-го поверху площею 11,6 кв.м. (В)
Україна, Дніпропетровська обл., смт. Софіївка, бул. Шевченка, 17А