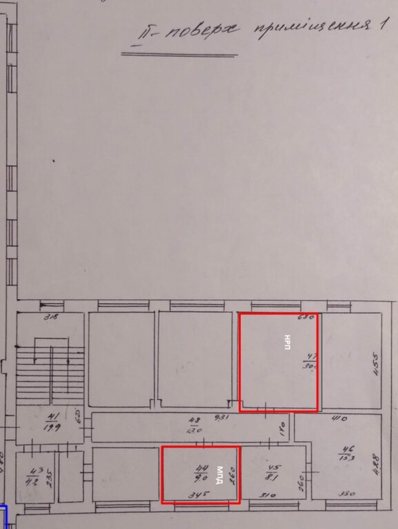
Полтавська обл., Миргородський р-н, смт. Велика Багачка, вулиця Чекалових, 17; Оренда – приміщення 2-го поверху загальною площею 29,00 кв.м. (В)

1 008.74 грн
34.78 грн / м2
Україна, Полтавська обл., Велика Багачка, вулиця Чекалових, 17
Перейти до аукціону на сайті
  • Інформація
  • Опис
  • Документи
Дата оголошення пропозиції:
06 грудня 2024
Площа:
29.00 м2
Тип об’єкта:
Приміщення
Тип аукціону:
Англійський аукціон
Статус аукціону:
Аукціон не відбувся
Тип угоди:
Оренда
Розмір мінімального кроку:
50.00 ₴
Розмір гарантійного внеску:
605.24 ₴
Початок прийому пропозицій:
06.12.2024 14:48:49
Завершення прийому пропозицій:
06.01.2025 20:00:00
Проведення аукціону:
07.01.2025 11:40:00
Лот:
CLE001-UA-20241206-59755
№ лоту (УТК):
UTK061224_04T
Лот виставляється на торги (раз):
1
Стислий опис майна:
Пропонується до оренди приміщення, що розташоване в двоповерховій будівлі, загальною площею 29,00 кв.м. Будівля розташована в центральному районі смт. Велика Багачка Характеристики • Кількість поверхів – 2; • Загальна площа –856,40 кв. м.; • Площа запропонована до оренди 29,00 кв. м.; • Опалення – відсутнє; • Електропостачання– наявне; • Земельна ділянка –0,2926 га (договір оренди землі)
Адреса місцезнаходження майна:
Україна, Полтавська обл., Велика Багачка, вулиця Чекалових, 17
Схожі пропозиції
15.07.2025
Полтавська обл., м. Решетилівка, вулиця Старокиївська, 2. Оренда – приміщення 3-го поверху загальною площею 420,10 кв.м. (В)
5 041.20 грн
12.00 грн / м2
Приміщення
Полтавська обл., м. Решетилівка, вулиця Старокиївська, 2. Оренда – приміщення 3-го поверху загальною площею 420,10 кв.м. (В)
Україна, Полтавська обл., Решетилівка, Решетилівка, вулиця Старокиївська, 2
30.04.2024
Полтавська обл., Полтавський р-н, м. Полтава, вулиця Гетьмана Сагайдачного, 8а. Оренда – приміщення площею 51,30 кв.м. (В)
7 356.42 грн
143.40 грн / м2
Приміщення
Полтавська обл., Полтавський р-н, м. Полтава, вулиця Гетьмана Сагайдачного, 8а. Оренда – приміщення площею 51,30 кв.м. (В)
Україна, Полтавська обл., Полтавський р-н, м. Полтава, вул. Гетьмана Сагайдачного, 8а
03.06.2025
Полтавська обл., Лубенський р-н, смт. Оржиця, вулиця Центральна, 18. Оренда – приміщення 3-го поверху загальною площею 74,00 кв.м. (В)
888.00 грн
12.00 грн / м2
Приміщення
Полтавська обл., Лубенський р-н, смт. Оржиця, вулиця Центральна, 18. Оренда – приміщення 3-го поверху загальною площею 74,00 кв.м. (В)
Україна, Полтавська обл., Оржиця, Оржиця, вулиця Центральна, 18
30.04.2024
Полтавська обл., Лубенський р-н, с.Новоаврамівка, вул.Центральна, буд.14;   Оренда–будівля площею 62,1 кв.м. (В)
632.80 грн
10.19 грн / м2
Приміщення
Полтавська обл., Лубенський р-н, с.Новоаврамівка, вул.Центральна, буд.14; Оренда–будівля площею 62,1 кв.м. (В)
Україна, Полтавська обл., с. Новоаврамівка, вул. Центральна, буд. 14
Переглянуті пропозиції
30.06.2023
м. Харків, просп. Олександрівський, 83. Оренда – приміщення 1-го поверху площею 25,90 кв.м. (В)
1 196.58 грн
46.20 грн / м2
Приміщення
м. Харків, просп. Олександрівський, 83. Оренда – приміщення 1-го поверху площею 25,90 кв.м. (В)
Україна, Харківська обл., м. Харків, просп. Олександрівський, 83
30.07.2024
Рівненська обл., м. Рівне, вул. Дубенська, 44б. Оренда – приміщення 1-го поверху одноповерхової будівлі площею 65,1 кв.м. (В)
6 238.53 грн
95.83 грн / м2
Приміщення
Рівненська обл., м. Рівне, вул. Дубенська, 44б. Оренда – приміщення 1-го поверху одноповерхової будівлі площею 65,1 кв.м. (В)
Україна, Рівненська обл., м. Рівне, вул. Дубенська, 44б
21.12.2022
Чернігівська обл., смт. Сосниця, вул. Б. Хмельницького, 16. Оренда – підвальне приміщення площею 31,35 кв.м. (В)
404.42 грн
12.90 грн / м2
Приміщення
Чернігівська обл., смт. Сосниця, вул. Б. Хмельницького, 16. Оренда – підвальне приміщення площею 31,35 кв.м. (В)
Україна, Чернігівська обл., смт. Сосниця, вул. Б. Хмельницького, 16
10.09.2024
Дніпропетровська обл., м.Кривий Ріг, вул. Головка Адмірала,71; Оренда–приміщення 2-го поверху, площею 306,9 кв.м. (В)
2 706.86 грн
8.82 грн / м2
Приміщення
Дніпропетровська обл., м.Кривий Ріг, вул. Головка Адмірала,71; Оренда–приміщення 2-го поверху, площею 306,9 кв.м. (В)
Україна, Дніпропетровська обл., Кривий Ріг, вулиця Адмірала Головка, 71