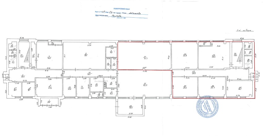
Полтавська обл., м. Полтава, провулок Латишева, буд. 11-А. Оренда – Частина будівлі площею 1287,60 кв.м. (В)

61 032.24 грн
47.40 грн / м2
Україна, Полтавська обл., м. Полтава, провулок Латишева, буд. 11-А
Перейти до аукціону на сайті
  • Інформація
  • Опис
  • Документи
Дата оголошення пропозиції:
18 грудня 2024
Площа:
1287.60 м2
Тип об’єкта:
Будівля
Тип аукціону:
Англійський аукціон
Статус аукціону:
Аукціон не відбувся
Тип угоди:
Оренда
Розмір мінімального кроку:
800.00 ₴
Розмір гарантійного внеску:
36 619.34 ₴
Початок прийому пропозицій:
18.12.2024 16:02:30
Завершення прийому пропозицій:
20.01.2025 20:00:00
Проведення аукціону:
21.01.2025 12:25:00
Лот:
CLE001-UA-20241218-11136
№ лоту (УТК):
UTK020821_21P
Лот виставляється на торги (раз):
10
Стислий опис майна:
Пропонується до оренди частина будівлі площею 1287,60 кв.м. Приміщення знаходяться на 1,2 та 3 поверсі 3-поверхової будівлі, яка розташована в районі наближеному до центру м. Полтава. Вхід з вулиці. Доступ 24/7 Характеристики: Кількість поверхів – 3; Загальна площа – 1911,90 кв.м.; Площа запропонована до оренди 1287,60 кв.м.; Опалення – наявне; Дозволена потужність – до 5 кВт; Земельна ділянка – 0,1739 га (договір оренди).
Адреса місцезнаходження майна:
Україна, Полтавська обл., м. Полтава, провулок Латишева, буд. 11-А
Схожі пропозиції
Полтавська обл., смт. Семенівка, вул. Воїнів Інтернаціоналістів, буд. 1. Оренда – частина будівлі площею 30,0 кв.м. (В)
393.00 грн
13.10 грн / м2
Будівля
Полтавська обл., смт. Семенівка, вул. Воїнів Інтернаціоналістів, буд. 1. Оренда – частина будівлі площею 30,0 кв.м. (В)
Україна, Полтавська обл., смт. Семенівка, вул. Воїнів Інтернаціоналістів, буд. 1
21.03.2024
Полтавська обл., Полтавський р-н., смт. Диканька, вул. Полтавська, 29. Оренда – комплекс будівель площею 192,70 кв.м. (В)
3 722.96 грн
19.32 грн / м2
Будівля
Полтавська обл., Полтавський р-н., смт. Диканька, вул. Полтавська, 29. Оренда – комплекс будівель площею 192,70 кв.м. (В)
Україна, Полтавська обл., Полтавський р-н., смт. Диканька, вул. Полтавська, 29
Полтавська обл., м. Полтава, провулок Латишева, буд. 11-А. Оренда - частина будівлі площею 1285,4 кв.м. (В)
3 393.46 грн
2.64 грн / м2
Будівля
Полтавська обл., м. Полтава, провулок Латишева, буд. 11-А. Оренда - частина будівлі площею 1285,4 кв.м. (В)
Україна, Полтавська обл., м. Полтава, провулок Латишева, 11-А
Переглянуті пропозиції
11.12.2024
Сумська обл., Охтирський район, м. Тростянець, вул. Сосновий Бір, буд. 24. Оренда – нежитлове приміщення площею 57,70 кв.м. (В)
587.96 грн
10.19 грн / м2
Приміщення
Сумська обл., Охтирський район, м. Тростянець, вул. Сосновий Бір, буд. 24. Оренда – нежитлове приміщення площею 57,70 кв.м. (В)
Україна, Сумська обл., Охтирський район, м. Тростянець, вул. Сосновий Бір, буд. 24
Івано-Франківська обл., м. Коломия, вул. Чорновола, 45. Оренда приміщень 5-го поверху
7 560.53 грн
14.88 грн / м2
Приміщення
Івано-Франківська обл., м. Коломия, вул. Чорновола, 45. Оренда приміщень 5-го поверху
Україна, Івано-Франківська обл., м. Коломия, вул. Чорновола, 45
м. Одеса, вул. Ніжинська, 44.. Оренда – приміщення 1-го поверху, площею 93,40 кв.м. (П)
6 214.84 грн
66.54 грн / м2
Приміщення
м. Одеса, вул. Ніжинська, 44.. Оренда – приміщення 1-го поверху, площею 93,40 кв.м. (П)
Україна, Одеська обл., м. Одеса, вул. Ніжинська, 44