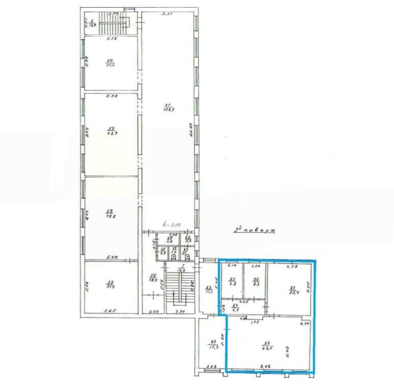
Львівська обл., м. Яворів, вул. Львівська, 10.Оренда – приміщення 3-го поверху площею 98,00 кв. м (В)

2 940.00 грн
30.31 грн / м2
Україна, Львівська обл., м. Яворів, вул. Львівська, 10
Перейти до аукціону на сайті
  • Інформація
  • Опис
  • Документи
Дата оголошення пропозиції:
02 січня 2025
Площа:
97.00 м2
Тип об’єкта:
Приміщення
Тип аукціону:
Англійський аукціон
Статус аукціону:
Аукціон не відбувся
Тип угоди:
Оренда
Розмір мінімального кроку:
100.00 ₴
Розмір гарантійного внеску:
1 764.00 ₴
Початок прийому пропозицій:
02.01.2025 11:09:22
Завершення прийому пропозицій:
03.02.2025 20:00:00
Проведення аукціону:
04.02.2025 11:35:00
Лот:
CLE001-UA-20250102-15511
№ лоту (УТК):
UTK161023_30P
Лот виставляється на торги (раз):
10
Стислий опис майна:
Пропонуються до оренди приміщення 3-го поверху площею 98,00 кв. м. Будівля знаходиться у центральній частині міста, в районі з розвиненою інфраструктурою і відмінною транспортною розв’язкою. Стан приміщень задовільний. Характеристики: кількість поверхів – 3 водопостачання, електропостачання, каналізаційна мережа Опалення (газ) Вільне до споживання електропостачання – 10 кВт земельна ділянка – 0,38 га (податок)
Адреса місцезнаходження майна:
Україна, Львівська обл., м. Яворів, вул. Львівська, 10
Схожі пропозиції
Львівська обл., смт. Верхнє Синьовидне вул. Січових Стрільців, 71а. Оренда – приміщення одноповерхової будівлі площею 39,90 кв. м. (В)
1 211.36 грн
30.36 грн / м2
Приміщення
Львівська обл., смт. Верхнє Синьовидне вул. Січових Стрільців, 71а. Оренда – приміщення одноповерхової будівлі площею 39,90 кв. м. (В)
Україна, Львівська обл., смт. Верхнє Синьовидне, вул. Січових Стрільців, 71а
29.08.2025
Львівська обл., смт. Новий Яричів, вул. І. Франка , 1. Оренда – гараж, площею 40,70 кв.м. (В)
1 433.45 грн
35.22 грн / м2
Приміщення
Львівська обл., смт. Новий Яричів, вул. І. Франка , 1. Оренда – гараж, площею 40,70 кв.м. (В)
Україна, Львівська обл., смт. Новий Яричів, вул. І. Франка , 1
13.07.2023
Львівська обл., м. Борислав, вул. Д.Галицького,32. Оренда – приміщення 1-го поверху площею 228 кв.м. (В)
8 912.52 грн
39.09 грн / м2
Приміщення
Львівська обл., м. Борислав, вул. Д.Галицького,32. Оренда – приміщення 1-го поверху площею 228 кв.м. (В)
Україна, Львівська обл., м. Борислав, вул. Д.Галицького,32
23.07.2025
Львівська обл., м. Турка, вул. Шевченка, 2. Оренда – приміщення 2-го поверху площею 216,10 кв.м. (В)
6 612.66 грн
30.60 грн / м2
Приміщення
Львівська обл., м. Турка, вул. Шевченка, 2. Оренда – приміщення 2-го поверху площею 216,10 кв.м. (В)
Україна, Львівська обл., вул. Шевченка,2, м. Турка
Переглянуті пропозиції
Дніпропетровська обл., м. Кривий Ріг, вул. Головка Адмірала, 71. Оренда – приміщення 3-го поверху, площею 777,3 кв.м. (В)
22 759.34 грн
29.28 грн / м2
Приміщення
Дніпропетровська обл., м. Кривий Ріг, вул. Головка Адмірала, 71. Оренда – приміщення 3-го поверху, площею 777,3 кв.м. (В)
Україна, Дніпропетровська обл., Кривий Ріг, вул. Головка Адмірала, 71
24.04.2025
Львівська обл., смт. Олесько, вул. Шевченка, 50. Оренда – приміщення 1-го поверху та підвалу площею 189,80 кв.м. (В)
2 277.60 грн
12.00 грн / м2
Приміщення
Львівська обл., смт. Олесько, вул. Шевченка, 50. Оренда – приміщення 1-го поверху та підвалу площею 189,80 кв.м. (В)
Україна, Львівська обл., смт. Олесько, вул. Шевченка, 50
03.06.2025
Харківська обл., Ізюмський р-н, смт. Донець, вул. Центральна, 42. Оренда – приміщення 2-го поверху площею 171,5 кв.м. (В)
2 058.00 грн
12.00 грн / м2
Приміщення
Харківська обл., Ізюмський р-н, смт. Донець, вул. Центральна, 42. Оренда – приміщення 2-го поверху площею 171,5 кв.м. (В)
Україна, Харківська обл., Ізюмський р-н, смт. Донець, вул. Центральна, 42
27.09.2024
Чернігівська обл., м. Чернігів, проспект Миру, 28. Оренда – приміщення 3- го поверху площею 56,6 кв.м (В)
4 945.71 грн
87.38 грн / м2
Приміщення
Чернігівська обл., м. Чернігів, проспект Миру, 28. Оренда – приміщення 3- го поверху площею 56,6 кв.м (В)
Україна, Чернігівська обл., м. Чернігів, проспект Миру, 28