Львівська обл., смт. Олесько, вул. Шевченка, 50. Оренда – приміщення 1-го поверху та підвалу площею 189,80 кв.м. (В)

2 277.60 грн
12.00 грн / м2
Україна, Львівська обл., смт. Олесько, вул. Шевченка, 50
Перейти до аукціону на сайті
  • Інформація
  • Опис
  • Документи
Дата оголошення пропозиції:
24 березня 2025
Площа:
189.80 м2
Тип об’єкта:
Приміщення
Тип аукціону:
Англійський аукціон
Статус аукціону:
Аукціон не відбувся
Тип угоди:
Оренда
Розмір мінімального кроку:
300.00 ₴
Розмір гарантійного внеску:
1 366.56 ₴
Початок прийому пропозицій:
24.03.2025 11:12:38
Завершення прийому пропозицій:
23.04.2025 20:00:00
Проведення аукціону:
24.04.2025 12:35:00
Лот:
CLE001-UA-20250324-49274
№ лоту (УТК):
UTK110823_05P
Лот виставляється на торги (раз):
10
Стислий опис майна:
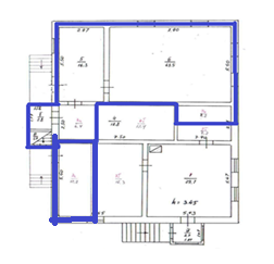
Пропонується до оренди приміщення 1-го поверху та підвалу загальною площею 189,80 кв.м. (підвальне приміщення - 102,7 кв.м., приміщення 1-го поверху - 87,1 кв.м. Будівля знаходиться у центральній частині селища з хорошою транспортною розв’язкою. Стан приміщення задовільний. Характеристики: Кількість поверхів – 1. Вільне до споживання електропостачання – 3 кВт. Газове опалення (потребує відновлення). Земельна ділянка – 0,0903 га (договір оренди).
Адреса місцезнаходження майна:
Україна, Львівська обл., смт. Олесько, вул. Шевченка, 50
Схожі пропозиції
17.07.2025
Львівська обл., с. Йосипівка, вул. Сидорська, 3. Оренда – приміщення площею 17,60 кв. м. (В)
510.40 грн
29.00 грн / м2
Приміщення
Львівська обл., с. Йосипівка, вул. Сидорська, 3. Оренда – приміщення площею 17,60 кв. м. (В)
Україна, Львівська обл., с. Йосипівка, вул. Сидорська, 3
08.10.2025
Львівська обл., м. Городок, вул. Львівська, 16. Оренда – приміщення 4-го поверху площею 156,60 кв. м. (В)
1 879.20 грн
12.00 грн / м2
Приміщення
Львівська обл., м. Городок, вул. Львівська, 16. Оренда – приміщення 4-го поверху площею 156,60 кв. м. (В)
Україна, Львівська обл., Городок, вул. Львівська, 16
05.06.2025
Львівська обл., с. Скелівка, вул. Центральна, 1. Оренда – приміщення площею 34,90 кв. м. (В)
511.63 грн
14.66 грн / м2
Приміщення
Львівська обл., с. Скелівка, вул. Центральна, 1. Оренда – приміщення площею 34,90 кв. м. (В)
Україна, Львівська обл., с. Скелівка, вул. Центральна, 1
28.04.2023
Львівська обл., м. Новий Розділ, пр. Шевченка, 30. Оренда – приміщення 2-го поверху площею 49,6 кв. м. (В)
532.70 грн
10.74 грн / м2
Приміщення
Львівська обл., м. Новий Розділ, пр. Шевченка, 30. Оренда – приміщення 2-го поверху площею 49,6 кв. м. (В)
Україна, Львівська обл., Новий Розділ, пр. Шевченка, 30
Переглянуті пропозиції
03.06.2025
Харківська обл., Ізюмський р-н, смт. Донець, вул. Центральна, 42. Оренда – приміщення 2-го поверху площею 171,5 кв.м. (В)
2 058.00 грн
12.00 грн / м2
Приміщення
Харківська обл., Ізюмський р-н, смт. Донець, вул. Центральна, 42. Оренда – приміщення 2-го поверху площею 171,5 кв.м. (В)
Україна, Харківська обл., Ізюмський р-н, смт. Донець, вул. Центральна, 42
27.09.2024
Чернігівська обл., м. Чернігів, проспект Миру, 28. Оренда – приміщення 3- го поверху площею 56,6 кв.м (В)
4 945.71 грн
87.38 грн / м2
Приміщення
Чернігівська обл., м. Чернігів, проспект Миру, 28. Оренда – приміщення 3- го поверху площею 56,6 кв.м (В)
Україна, Чернігівська обл., м. Чернігів, проспект Миру, 28
Львівська обл., м. Винники, вул. Сухомлинського,2. Оренда – приміщення 1-го та 2-го поверху площею 435,7 кв.м. (В)
16 521.74 грн
37.92 грн / м2
Приміщення
Львівська обл., м. Винники, вул. Сухомлинського,2. Оренда – приміщення 1-го та 2-го поверху площею 435,7 кв.м. (В)
Україна, Львівська обл., м. Винники, вул. Сухомлинського, 2
28.12.2023
Львівська обл., с. Верин, вул. Є. Коновальця, 14;   Оренда – приміщення 1-го поверху площею 22,3 кв. м (В)
605.89 грн
27.17 грн / м2
Приміщення
Львівська обл., с. Верин, вул. Є. Коновальця, 14; Оренда – приміщення 1-го поверху площею 22,3 кв. м (В)
Україна, Львівська обл., Верин, вулиця Євгена Коновальця, 14