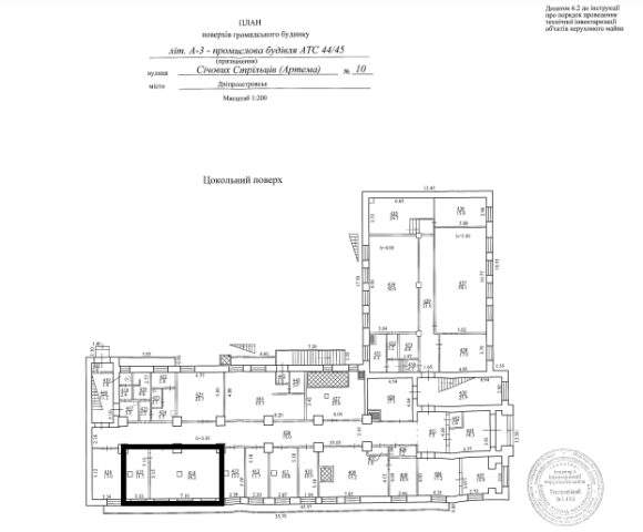
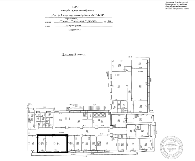
Дніпропетровська обл., м. Дніпро, вул. Січових Стрільців, 10. Оренда – приміщення цокольного поверху площею 47,90 кв.м. (В)

5 006.51 грн
104.52 грн / м2
Україна, Дніпропетровська обл., м. Дніпро, вул. Січових Стрільців, 10
Перейти до аукціону на сайті
  • Інформація
  • Опис
  • Документи
Дата оголошення пропозиції:
07 січня 2025
Площа:
47.90 м2
Тип об’єкта:
Приміщення
Тип аукціону:
Англійський аукціон
Статус аукціону:
Аукціон не відбувся
Тип угоди:
Оренда
Розмір мінімального кроку:
100.00 ₴
Розмір гарантійного внеску:
3 003.90 ₴
Початок прийому пропозицій:
07.01.2025 11:06:00
Завершення прийому пропозицій:
06.02.2025 20:00:00
Проведення аукціону:
07.02.2025 11:25:00
Лот:
CLE001-UA-20250107-63517
№ лоту (УТК):
UTK281221_04P
Лот виставляється на торги (раз):
10
Стислий опис майна:
Пропонується до оренди приміщення цокольного поверху площею 47,90кв.м. Розташування - будівля знаходиться в центральному районі міста. Поруч знаходяться відділення банку, високий автомобільний і пішохідний потоки. Стан приміщення задовільний, підходить для офісу, студії, Ідеальне місце під розвиток будь-якого бізнесу. Можливість передачі приміщень в суборенду. Характеристики: - Кількість поверхів – 3 - Загальна площа – 2854,80 кв.м. - Площа запропонована до оренди – 47,90 кв.м. - Електропостачання, водопостачання, теплопостачання, охорона та обслуговування пожежної сигналізації, вивіз сміття, прибирання загальних місць та території; - Земельна ділянка – 0, 1636 га (договір оренди)
Адреса місцезнаходження майна:
Україна, Дніпропетровська обл., м. Дніпро, вул. Січових Стрільців, 10
Схожі пропозиції
21.11.2025
Дніпропетровська обл., м. Кривий Ріг, вул. Героїв АТО, 30. Оренда – приміщення 1-го поверху площею 76,90 кв. м. (В)
2 892.21 грн
37.61 грн / м2
Приміщення
Дніпропетровська обл., м. Кривий Ріг, вул. Героїв АТО, 30. Оренда – приміщення 1-го поверху площею 76,90 кв. м. (В)
Україна, Дніпропетровська обл., м. Кривий Ріг, вул. Героїв АТО, 30
Дніпропетровська обл., м. Дніпро, вул. Панікахи, 27 Оренда приміщення 3-го поверху площею 742,0 кв.м.(В)
6 151.18 грн
8.29 грн / м2
Приміщення
Дніпропетровська обл., м. Дніпро, вул. Панікахи, 27 Оренда приміщення 3-го поверху площею 742,0 кв.м.(В)
Україна, Дніпропетровська обл., м. Дніпро, вул. Панікахи, 27
25.04.2025
Дніпропетровська обл., м. Дніпро, вул. Князя Ярослава Мудрого, 3. Оренда – приміщення 5-го поверху площею 58,20 кв.м. (В)
1 746.00 грн
30.00 грн / м2
Приміщення
Дніпропетровська обл., м. Дніпро, вул. Князя Ярослава Мудрого, 3. Оренда – приміщення 5-го поверху площею 58,20 кв.м. (В)
Україна, Дніпропетровська обл., м. Дніпро, вул. Князя Ярослава Мудрого, 3, вул. Дніпровська, 226
14.02.2023
Дніпропетровська обл., м. Дніпро, вул. Чернишевського, 27. Оренда – приміщення 1-го поверху площею 100,00 кв.м. (В)
6 792.00 грн
67.92 грн / м2
Приміщення
Дніпропетровська обл., м. Дніпро, вул. Чернишевського, 27. Оренда – приміщення 1-го поверху площею 100,00 кв.м. (В)
Україна, Дніпропетровська обл., м. Дніпро, вул. Чернишевського, 27
Переглянуті пропозиції
12.07.2024
Сумська область, Конотопський р-н, м. Буринь, вул. Першотравнева, буд. 2. Оренда – нежитлові будівлі площею 356,20 кв. м. (В)
1 367.81 грн
3.84 грн / м2
Будівля
Сумська область, Конотопський р-н, м. Буринь, вул. Першотравнева, буд. 2. Оренда – нежитлові будівлі площею 356,20 кв. м. (В)
Україна, Сумська обл., Конотопський р-н, м. Буринь, вул. Першотравнева, буд. 2
18.11.2022
Рівненська обл., Вараський р-н. смт. Володимирець вул. Поштова, 23. Оренда – приміщення 1-го поверху площею 52,8 кв.м. (В)
1 172.16 грн
22.20 грн / м2
Приміщення
Рівненська обл., Вараський р-н. смт. Володимирець вул. Поштова, 23. Оренда – приміщення 1-го поверху площею 52,8 кв.м. (В)
Україна, Рівненська обл., Вараський р-н. смт. Володимирець, смт. Володимирець вул. Поштова, 23
17.11.2023
Полтавська обл., Кременчуцький р-н., смт. Семенівка, вул. Воїнів Інтернаціоналістів, 12/9. Оренда – Приміщення 3-го поверху площею 105,6 кв.м. (В)
570.24 грн
5.40 грн / м2
Приміщення
Полтавська обл., Кременчуцький р-н., смт. Семенівка, вул. Воїнів Інтернаціоналістів, 12/9. Оренда – Приміщення 3-го поверху площею 105,6 кв.м. (В)
Україна, Полтавська обл., Кременчуцький р-н., смт. Семенівка, вул. Воїнів Інтернаціоналістів, 12/9
15.10.2025
м. Харків, вул.Сумгаїтська, 9а. Оренда – приміщення 1-го поверху, площею 67,1 кв.м  (В)
2 013.00 грн
30.00 грн / м2
Приміщення
м. Харків, вул.Сумгаїтська, 9а. Оренда – приміщення 1-го поверху, площею 67,1 кв.м (В)
Україна, Харківська обл., м. Харків, вул. Сумгаїтська, 9а