ДОВГОСТРОКОВА ОРЕНДА! Дніпропетровська обл., Новомосковський р-н, м. Перещепине, вул. Шевченка, 61.Оренда – комплекс нежитлових будівель та споруд площею 403,80 кв.м (В)

1 211.40 грн
3.00 грн / м2
Україна, Дніпропетровська обл., Новомосковський р-н, м. Перещепине, вул. Шевченка, 61
Перейти до аукціону на сайті
  • Інформація
  • Опис
  • Документи
Дата оголошення пропозиції:
07 січня 2025
Площа:
403.80 м2
Тип об’єкта:
Будівля
Тип аукціону:
Англійський аукціон
Статус аукціону:
Аукціон не відбувся
Тип угоди:
Оренда
Розмір мінімального кроку:
100.00 ₴
Розмір гарантійного внеску:
726.84 ₴
Початок прийому пропозицій:
07.01.2025 12:45:43
Завершення прийому пропозицій:
06.02.2025 20:00:00
Проведення аукціону:
07.02.2025 12:35:00
Лот:
CLE001-UA-20250107-10186
№ лоту (УТК):
UTK260124_04P
Лот виставляється на торги (раз):
10
Стислий опис майна:
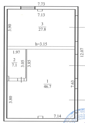
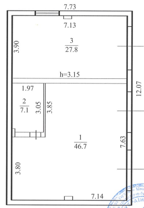
Пропонується до оренди комплекс нежитлових будівель та споруд площею 403,80 кв.м у складі: будівля АТС-РТУ (літ.А) площею 160,80 кв.м, дизельна (літ.Б) площею 60,80 кв.м, гараж (літ.Г) площею 81,60 кв.м, склад (Літ.Д) площею 80,50 кв.м, склад ГСМ (літ.Е) площею 20,10 кв.м, споруди - №1,2,5, колодязь (літ.К), вбиральня (літ.В). Розташування в центральному районі міста. Стан майна потребує реонту, підходить під склади, гаражі,. Ідеальне місце під розвиток будь-якого бізнесу. Характеристики: Кількість поверхів – 1 Загальна площа – 403,80 кв.м. Площа запропонована до оренди – 403,80 кв.м. Електропостачання, теплопостачання Земельна ділянка – 0,2785 га (договір оренди) Ресурсні податки – 2,34 грн за 1 кв.м
Адреса місцезнаходження майна:
Україна, Дніпропетровська обл., Новомосковський р-н, м. Перещепине, вул. Шевченка, 61
Схожі пропозиції
18.07.2025
Дніпропетровська обл, Нікопольський р-н, с. Лошкарівка, вул. Центральна, 2А. Оренда – будівля загальною площею 106,50 кв.м (В)
1 278.00 грн
12.00 грн / м2
Будівля
Дніпропетровська обл, Нікопольський р-н, с. Лошкарівка, вул. Центральна, 2А. Оренда – будівля загальною площею 106,50 кв.м (В)
Україна, Дніпропетровська обл., Нікопольський р-н, с. Лошкарівка, вул. Центральна, 2А
25.08.2022
ДОВГОСТРОКОВА ОРЕНДА! Дніпропетровська обл., м. Дніпро, вул. Будівельників, буд. 34. Оренда – чотириповерхова будівля площею 6273,70 кв.м. (В)
123 466.42 грн
19.68 грн / м2
Будівля
ДОВГОСТРОКОВА ОРЕНДА! Дніпропетровська обл., м. Дніпро, вул. Будівельників, буд. 34. Оренда – чотириповерхова будівля площею 6273,70 кв.м. (В)
Україна, Дніпропетровська обл., м. Дніпро, вул. Будівельників, буд. 34
02.06.2023
Дніпропетровська обл, м. П’ятихатки, вул. Мірошниченка, 107. Оренда – нежитлова будівля з підвалом загальною площею 145,6 кв.м. (В)
6 387.47 грн
43.87 грн / м2
Будівля
Дніпропетровська обл, м. П’ятихатки, вул. Мірошниченка, 107. Оренда – нежитлова будівля з підвалом загальною площею 145,6 кв.м. (В)
Україна, Дніпропетровська обл., м. П’ятихатки, вул. Мірошниченка, 107
18.07.2025
ДОВГОСТРОКОВА ОРЕНДА! Дніпропетровська обл., м. Дніпро, вул. Орловська, 36А. Оренда – нежитлова будівля площею 2039,60 кв.м (В)
61 188.00 грн
30.00 грн / м2
Будівля
ДОВГОСТРОКОВА ОРЕНДА! Дніпропетровська обл., м. Дніпро, вул. Орловська, 36А. Оренда – нежитлова будівля площею 2039,60 кв.м (В)
Україна, Дніпропетровська обл., м. Дніпро, вул. Орловська, 36А
Переглянуті пропозиції
м. Івано-Франківськ вул. Ребета, 2. Оренда Нежитлові приміщення площею 1247,5 кв.м.(В)
9 518.43 грн
7.63 грн / м2
Приміщення
м. Івано-Франківськ вул. Ребета, 2. Оренда Нежитлові приміщення площею 1247,5 кв.м.(В)
Україна, Івано-Франківська обл., м. Івано-Франківськ, вул. Ребета, 2
16.07.2024
Полтавська обл., Кременчуцький р-н, м. Горішні Плані, вулиця Миру, 18. Оренда – приміщення 2-го поверху загальною площею 46,00 кв.м. (В)
1 996.86 грн
43.41 грн / м2
Приміщення
Полтавська обл., Кременчуцький р-н, м. Горішні Плані, вулиця Миру, 18. Оренда – приміщення 2-го поверху загальною площею 46,00 кв.м. (В)
Україна, Полтавська обл., Кременчуцький р-н, м. Горішні Плані, вулиця Миру, 18
20.11.2025
Івано-Франківська обл., Івано-Франківський р-н, м.Тлумач, вул. Шевченка, 20А/1. Оренда – приміщення 1-поверхової будівлі гаражів, площею 121,9 м.кв (В)
3 921.52 грн
32.17 грн / м2
Приміщення
Івано-Франківська обл., Івано-Франківський р-н, м.Тлумач, вул. Шевченка, 20А/1. Оренда – приміщення 1-поверхової будівлі гаражів, площею 121,9 м.кв (В)
Україна, Івано-Франківська обл., Івано-Франківський р-н, м.Тлумач, вул. Шевченка, 20А/1