Дніпропетровська обл., м. Дніпро, просп. Героїв, 14. Оренда – приміщення 2-го поверху загальною площею 46,40 кв.м (В)

3 624.30 грн
78.11 грн / м2
Україна, Дніпропетровська обл., м. Дніпро, просп. Героїв, 14
Перейти до аукціону на сайті
  • Інформація
  • Опис
  • Документи
Дата оголошення пропозиції:
07 січня 2025
Площа:
46.40 м2
Тип об’єкта:
Приміщення
Тип аукціону:
Англійський аукціон
Статус аукціону:
Аукціон не відбувся
Тип угоди:
Оренда
Розмір мінімального кроку:
100.00 ₴
Розмір гарантійного внеску:
2 174.58 ₴
Початок прийому пропозицій:
07.01.2025 12:48:08
Завершення прийому пропозицій:
06.02.2025 20:00:00
Проведення аукціону:
07.02.2025 11:25:00
Лот:
CLE001-UA-20250107-02938
№ лоту (УТК):
UTK130524_07P
Лот виставляється на торги (раз):
7
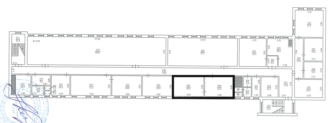
Стислий опис майна:
Пропонується до оренди приміщення 2-го поверху загальною площею 46,40 кв.м (прим. №№ 208,226). Розташування - будівля знаходиться в Соборному районі міста. Поруч знаходяться відділення банку, супермаркети, лікарня, зупинка громадського транспорту, високий автомобільний і пішохідний потоки. Стан приміщення задовільний. Вхід в приміщення спільний. Зручна транспортна розв’язка та інфраструктура. Характеристики: Кількість поверхів – 4; Загальна площа – 3705,30 кв.м Площа запропонована до оренди – 46,40 кв.м Теплопостачання – централізоване; водопостачання, електропостачання, Земельна ділянка – 0,2755 га (договір оренди)
Адреса місцезнаходження майна:
Україна, Дніпропетровська обл., м. Дніпро, просп. Героїв, 14
Схожі пропозиції
04.06.2025
Дніпропетровська обл., м. Кривий Ріг, вул. Героїв АТО, 30. Оренда – підвальне приміщення площею 99,2 кв. м. (В)
5 223.87 грн
52.66 грн / м2
Приміщення
Дніпропетровська обл., м. Кривий Ріг, вул. Героїв АТО, 30. Оренда – підвальне приміщення площею 99,2 кв. м. (В)
Україна, Дніпропетровська обл., м. Кривий Ріг, вул. Героїв АТО, 30
11.03.2025
ДОВГОСТРОКОВА ОРЕНДА! Дніпропетровська обл., м. Кривий Ріг, вул. Героїв АТО, 97. Оренда – приміщення 2-го поверху площею 656,8 кв. м. (В)
30 941.85 грн
47.11 грн / м2
Приміщення
ДОВГОСТРОКОВА ОРЕНДА! Дніпропетровська обл., м. Кривий Ріг, вул. Героїв АТО, 97. Оренда – приміщення 2-го поверху площею 656,8 кв. м. (В)
Україна, Дніпропетровська обл., м. Кривий Ріг, вул. Героїв АТО, 97
29.02.2024
Дніпропетровська обл., смт Софіївка, бул. Шевченка, 17А. Оренда – приміщення гаражу (Г-2) площею 33,00 кв.м.(В)
429.00 грн
13.00 грн / м2
Приміщення
Дніпропетровська обл., смт Софіївка, бул. Шевченка, 17А. Оренда – приміщення гаражу (Г-2) площею 33,00 кв.м.(В)
Україна, Дніпропетровська обл., смт Софіївка, ул. Шевченка, 17А
25.05.2023
Дніпропетровська обл., м. Кривий Ріг, вул. Водоп`янова, 1а. Оренда – приміщення 4-го поверху, площею 789,8 кв.м. (В)
25 399.97 грн
32.16 грн / м2
Приміщення
Дніпропетровська обл., м. Кривий Ріг, вул. Водоп`янова, 1а. Оренда – приміщення 4-го поверху, площею 789,8 кв.м. (В)
Україна, Дніпропетровська обл., Кривий Ріг, вулиця Водоп'янова, 1а
Переглянуті пропозиції
21.04.2023
Дніпропетровська обл., м. Дніпро, вул. Панікахи, 27. Оренда – приміщення 4-го поверху площею 737,0 кв.м.(В)
34 049.40 грн
46.20 грн / м2
Приміщення
Дніпропетровська обл., м. Дніпро, вул. Панікахи, 27. Оренда – приміщення 4-го поверху площею 737,0 кв.м.(В)
Україна, Дніпропетровська обл., м. Дніпро, вул. Панікахи, 27
07.02.2025
ДОВГОСТРОКОВА ОРЕНДА! Дніпропетровська обл., м. Дніпро, вул. Панікахи, 27. Оренда – приміщення 3-го поверху площею 410,5 кв.м.(В)
27 482.98 грн
66.95 грн / м2
Приміщення
ДОВГОСТРОКОВА ОРЕНДА! Дніпропетровська обл., м. Дніпро, вул. Панікахи, 27. Оренда – приміщення 3-го поверху площею 410,5 кв.м.(В)
Україна, Дніпропетровська обл., м. Дніпро, вул. Панікахи, 27
17.05.2024
Дніпропетровська обл., м. Дніпро, вул. Князя Ярослава Мудрого, 3. Оренда – приміщення 5-го поверху площею 34,80 кв.м.(В)
4 163.81 грн
119.65 грн / м2
Приміщення
Дніпропетровська обл., м. Дніпро, вул. Князя Ярослава Мудрого, 3. Оренда – приміщення 5-го поверху площею 34,80 кв.м.(В)
Україна, Дніпропетровська обл., м. Дніпро, вул. Князя Ярослава Мудрого, 3