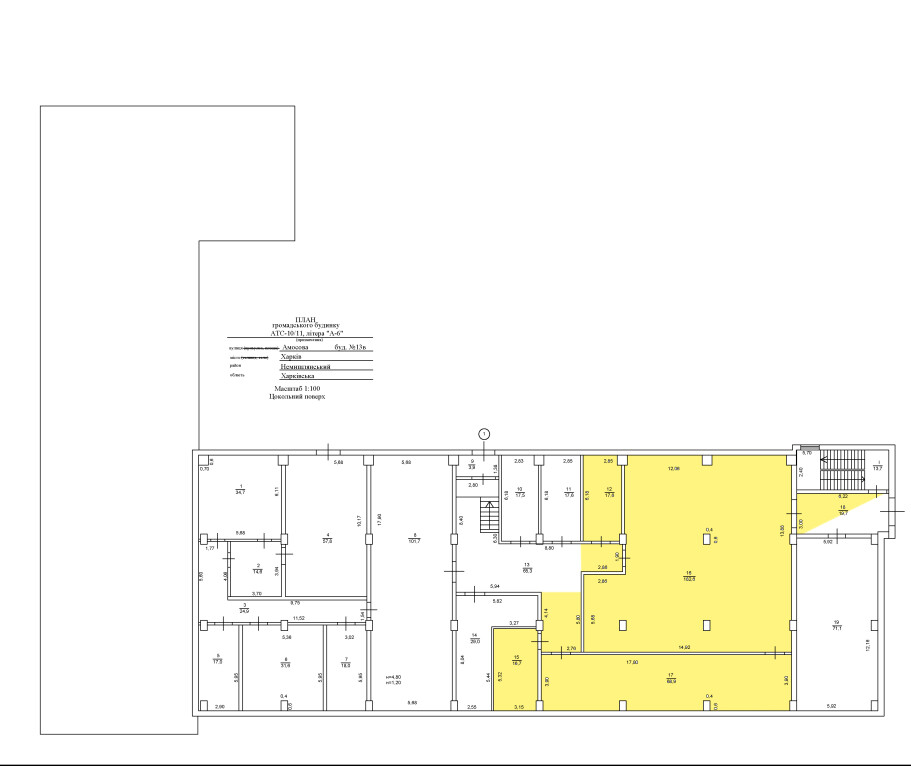
м.Харків, вул. Амосова,13-В; Оренда – приміщення цокольного поверху площею 312,51 кв.м. (П)

20 453.78 грн
65.45 грн / м2
Україна, Харківська обл., Харків, вулиця Амосова, 13-В
Перейти до аукціону на сайті
  • Інформація
  • Опис
  • Документи
Дата оголошення пропозиції:
21 січня 2025
Площа:
312.51 м2
Тип об’єкта:
Приміщення
Тип аукціону:
Англійський аукціон
Статус аукціону:
Аукціон не відбувся
Тип угоди:
Оренда
Розмір мінімального кроку:
200.00 ₴
Розмір гарантійного внеску:
12 272.27 ₴
Початок прийому пропозицій:
21.01.2025 14:26:07
Завершення прийому пропозицій:
20.02.2025 20:00:00
Проведення аукціону:
21.02.2025 11:30:00
Лот:
CLE001-UA-20250121-22738
№ лоту (УТК):
UTK011124_02T
Лот виставляється на торги (раз):
1
Стислий опис майна:
Пропонується до оренди приміщення цокольного поверху площею 312,51 кв.м. Будівля в спальному районі міста Харкова. 10 хв до зупинки транспорту. Характеристики: Кількість поверхів – 5; Загальна площа – 4838,00 кв.м_ Площа запропонована до оренди – 312,51 кв.м. Дозволена потужність – 5 кВт Теплопостачання-централізоване Земельна ділянка – 0,4825 га
Адреса місцезнаходження майна:
Україна, Харківська обл., Харків, вулиця Амосова, 13-В
Схожі пропозиції
12.07.2024
м. Харків, вул. Конторська,14.Оренда – приміщення 4-го поверху площею 25,8 кв.м (В)
1 787.94 грн
69.30 грн / м2
Приміщення
м. Харків, вул. Конторська,14.Оренда – приміщення 4-го поверху площею 25,8 кв.м (В)
Україна, Харківська обл., м. Харків, вул. Конторська,14
30.03.2023
Харківська обл., м. Красноград, вул. Соборна, 56. Оренда – приміщення 4-го поверху будівлі «Башта», площею 33,9 кв.м. (В)
2 034.00 грн
60.00 грн / м2
Приміщення
Харківська обл., м. Красноград, вул. Соборна, 56. Оренда – приміщення 4-го поверху будівлі «Башта», площею 33,9 кв.м. (В)
Україна, Харківська обл., Красноград, вул. Соборна, 56
02.09.2025
Харківська обл., Чугуївський р-н, м. Зміїв, вул. Адміністративна, 5. Оренда – приміщення на ІІІ поверсі площею 16,1 кв.м. (В)
515.20 грн
32.00 грн / м2
Приміщення
Харківська обл., Чугуївський р-н, м. Зміїв, вул. Адміністративна, 5. Оренда – приміщення на ІІІ поверсі площею 16,1 кв.м. (В)
Україна, Харківська обл., Чугуївський р-н, м. Зміїв, вул. Адміністративна, 5
21.01.2025
м. Харків, вул. Амосова,13-в.Оренда – приміщення 5-го поверху площею 55,2 кв.м (В)
3 352.85 грн
60.74 грн / м2
Приміщення
м. Харків, вул. Амосова,13-в.Оренда – приміщення 5-го поверху площею 55,2 кв.м (В)
Україна, Харківська обл., м. Харків, вул. Амосова,13-в
Переглянуті пропозиції
05.06.2024
м.Харків, пр-т Ювілейний, 66;   Оренда – приміщення 2-го поверху площею 35,3 кв.м (В)
1 925.97 грн
54.56 грн / м2
Приміщення
м.Харків, пр-т Ювілейний, 66; Оренда – приміщення 2-го поверху площею 35,3 кв.м (В)
Україна, Харківська обл., Харків, проспект Ювілейний, 66
04.03.2025
Харківська обл., Богодухівський р-н, смт. Краснокутськ, вул. Миру, 123. Оренда – приміщення 2-го поверху площею 92,90 кв.м. (В)
1 672.20 грн
18.00 грн / м2
Приміщення
Харківська обл., Богодухівський р-н, смт. Краснокутськ, вул. Миру, 123. Оренда – приміщення 2-го поверху площею 92,90 кв.м. (В)
Україна, Харківська обл., Богодухівський р-н, смт. Краснокутськ, вул. Миру, 123
27.12.2024
Львівська обл., с. Сілець, вул. Підберезина, 25. Оренда – частини будівлі загальною площею 48,80 кв. м (В)
622.69 грн
12.76 грн / м2
Будівля
Львівська обл., с. Сілець, вул. Підберезина, 25. Оренда – частини будівлі загальною площею 48,80 кв. м (В)
Україна, Львівська обл., с. Сілець, вул. Підберезина, 25
26.12.2024
Рівненська обл., Рівненський р-н., с. Балашівка, вул. Незалежності, 52;   Оренда – нежитлове приміщення площею 12,9 кв.м. (В)
258.00 грн
20.00 грн / м2
Приміщення
Рівненська обл., Рівненський р-н., с. Балашівка, вул. Незалежності, 52; Оренда – нежитлове приміщення площею 12,9 кв.м. (В)
Україна, Рівненська обл., Балашівка, вул. Незалежності, 52