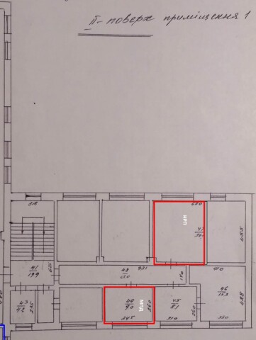
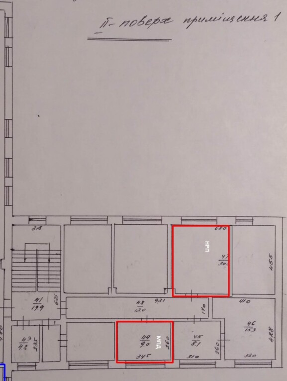
Полтавська обл., Миргородський р-н, смт. Велика Багачка, вулиця Чекалових, 17; Оренда – приміщення 2-го поверху загальною площею 29,00 кв.м. (В)

1 008.74 грн
34.78 грн / м2
Україна, Полтавська обл., Велика Багачка, вулиця Чекалових, 17
Перейти до аукціону на сайті
  • Інформація
  • Опис
  • Документи
Дата оголошення пропозиції:
14 лютого 2025
Площа:
29.00 м2
Тип об’єкта:
Приміщення
Тип аукціону:
Англійський аукціон
Статус аукціону:
Аукціон не відбувся
Тип угоди:
Оренда
Розмір мінімального кроку:
50.00 ₴
Розмір гарантійного внеску:
605.24 ₴
Початок прийому пропозицій:
14.02.2025 12:35:59
Завершення прийому пропозицій:
13.03.2025 20:00:00
Проведення аукціону:
14.03.2025 11:40:00
Лот:
CLE001-UA-20250214-97011
№ лоту (УТК):
UTK061224_04T
Лот виставляється на торги (раз):
3
Стислий опис майна:
Пропонується до оренди приміщення, що розташоване в двоповерховій будівлі, загальною площею 29,00 кв.м. Будівля розташована в центральному районі смт. Велика Багачка Характеристики • Кількість поверхів – 2; • Загальна площа –856,40 кв. м.; • Площа запропонована до оренди 29,00 кв. м.; • Опалення – відсутнє; • Електропостачання– наявне; • Земельна ділянка –0,2926 га (договір оренди землі)
Адреса місцезнаходження майна:
Україна, Полтавська обл., Велика Багачка, вулиця Чекалових, 17
Схожі пропозиції
10.06.2025
Полтавська обл., Миргородський р-н, м. Миргород, вулиця Гоголя, 96/9. Оренда – приміщення 2-го поверху загальною площею 22,20 кв.м. (В)
510.60 грн
23.00 грн / м2
Приміщення
Полтавська обл., Миргородський р-н, м. Миргород, вулиця Гоголя, 96/9. Оренда – приміщення 2-го поверху загальною площею 22,20 кв.м. (В)
Україна, Полтавська обл., Миргородський р-н, м. Миргород, вул. Гоголя, 96/9
16.07.2024
Полтавська обл., м. Полтава, вулиця Михайла Грушевського, 17. Оренда – приміщення 1-го поверху загальною площею 27,60 кв.м. (В)
5 133.60 грн
186.00 грн / м2
Приміщення
Полтавська обл., м. Полтава, вулиця Михайла Грушевського, 17. Оренда – приміщення 1-го поверху загальною площею 27,60 кв.м. (В)
Україна, Полтавська обл., м. Полтава, вулиця Михайла Грушевського, 17
15.10.2025
Полтавська обл., Полтавський р-н, смт. Диканька, вулиця Незалежності, 93. Оренда – приміщення загальною площею 59,10 кв.м. (В)
917.82 грн
15.53 грн / м2
Приміщення
Полтавська обл., Полтавський р-н, смт. Диканька, вулиця Незалежності, 93. Оренда – приміщення загальною площею 59,10 кв.м. (В)
Україна, Полтавська обл., Диканька, вулиця Незалежності, 93
Полтавська обл., м. Полтава, вул. Соборності, 33. Оренда – Приміщення 1-го поверху, площею 427,41 кв.м. (В)
40 018.40 грн
93.63 грн / м2
Приміщення
Полтавська обл., м. Полтава, вул. Соборності, 33. Оренда – Приміщення 1-го поверху, площею 427,41 кв.м. (В)
Україна, Полтавська обл., м. Полтава, вул. Соборності, 33
Переглянуті пропозиції
05.06.2024
Полтавська обл., м. Решетилівка, вулиця Старокиївська, 2. Оренда – приміщення 1-го поверху площею 28,10 кв.м. (В)
505.80 грн
18.00 грн / м2
Приміщення
Полтавська обл., м. Решетилівка, вулиця Старокиївська, 2. Оренда – приміщення 1-го поверху площею 28,10 кв.м. (В)
Україна, Полтавська обл., м. Решетилівка, вулиця Старокиївська, 2
05.12.2023
м. Київ, вул. Джона Маккейна, №40;  Оренда – приміщення підвалу, площею 44,26 кв.м. (В)
10 498.03 грн
237.51 грн / м2
Приміщення
м. Київ, вул. Джона Маккейна, №40; Оренда – приміщення підвалу, площею 44,26 кв.м. (В)
Україна, м.Київ, Київ, вулиця Джона Маккейна, 40
04.03.2025
Харківська обл., Чугуївський р-н, м. Зміїв, вул. Адміністративна, 5. Оренда – приміщення на ІІІ поверсі площею 16,1 кв.м. (В)
273.70 грн
17.00 грн / м2
Приміщення
Харківська обл., Чугуївський р-н, м. Зміїв, вул. Адміністративна, 5. Оренда – приміщення на ІІІ поверсі площею 16,1 кв.м. (В)
Україна, Харківська обл., Чугуївський р-н, м. Зміїв, вул. Адміністративна, 5
01.11.2023
Львівська обл., м. Золочів, вул. Пушкіна, 9. Оренда – приміщення 1-го поверху площею 35,1 кв.м. (В)
972.97 грн
27.72 грн / м2
Приміщення
Львівська обл., м. Золочів, вул. Пушкіна, 9. Оренда – приміщення 1-го поверху площею 35,1 кв.м. (В)
Україна, Львівська обл., Золочів, вулиця Пушкіна, 9