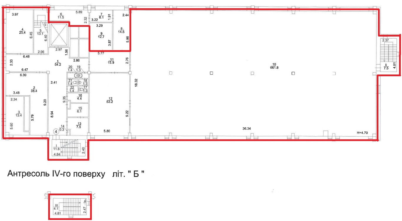
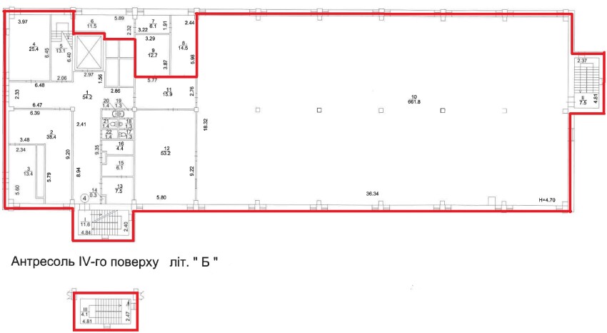
м. Київ, вул. Салютна, 5-А, літ. «Б»; Оренда – приміщення 3-го та 4-го поверхів площею 992,8 кв.м. (В)

59 568.00 грн
60.00 грн / м2
Україна, м.Київ, Київ, вулиця Салютна, 5-А, літ.Б
Перейти до аукціону на сайті
  • Інформація
  • Опис
  • Документи
Дата оголошення пропозиції:
11 березня 2025
Площа:
992.80 м2
Тип об’єкта:
Приміщення
Тип аукціону:
Англійський аукціон
Статус аукціону:
Аукціон не відбувся
Тип угоди:
Оренда
Розмір мінімального кроку:
600.00 ₴
Розмір гарантійного внеску:
35 740.80 ₴
Початок прийому пропозицій:
11.03.2025 18:38:20
Завершення прийому пропозицій:
14.04.2025 20:00:00
Проведення аукціону:
15.04.2025 12:20:00
Лот:
CLE001-UA-20250311-84490
№ лоту (УТК):
UTK040422_06T
Лот виставляється на торги (раз):
10
Стислий опис майна:
Пропонуються до оренди приміщення 3-го та 4-го поверху, літ. «Б», площею 992,8 кв.м . Будівля розташована в Шевченківському районі міста Києва, місцевість Нивки. Поруч розвинена інфраструктура, зупинки маршрутного транспорту, супермаркети, бізнес-центри, фінансові заклади, 5 хв. від ст. м. «Нивки». Вхід з двору. Доступ 24/7. Характеристики • кількість поверхів – 4; • сан. вузол, каналізація – присутні; • площа будівлі – літ. «Б» - 4892,1 м2; • опалення централізоване (міське); • земельна ділянка – 0,6317 га;
Адреса місцезнаходження майна:
Україна, м.Київ, Київ, вулиця Салютна, 5-А, літ.Б
Схожі пропозиції
19.08.2025
м. Київ, вул. Джона Маккейна, 40, літ. «А» (Печерський р-н). Оренда – група приміщень на 1-му поверсі, площею 34,70 кв.м (В)
7 039.59 грн
202.87 грн / м2
Приміщення
м. Київ, вул. Джона Маккейна, 40, літ. «А» (Печерський р-н). Оренда – група приміщень на 1-му поверсі, площею 34,70 кв.м (В)
Україна, м.Київ, Київ, 01042, м. Київ, вул. Джона Маккейна, 40, літ. «А» (Печерський р-н)
22.08.2023
м. Київ, вул. Макіївська, 3     Оренда – приміщення 1-го поверху площею 86,10 кв.м. (П)
23 540.60 грн
273.41 грн / м2
Приміщення
м. Київ, вул. Макіївська, 3 Оренда – приміщення 1-го поверху площею 86,10 кв.м. (П)
Україна, м.Київ, Київ, вулиця Макіївська, 3
14.03.2023
м. Київ, вул. Миколи Голего, 8. Оренда – приміщення 3-го поверху площею 79,7 м2 (В)
14 632.92 грн
183.60 грн / м2
Приміщення
м. Київ, вул. Миколи Голего, 8. Оренда – приміщення 3-го поверху площею 79,7 м2 (В)
Україна, м.Київ, Київ, вулиця Миколи Голего, 8
м. Київ, вул. Феодори Пушиної, 27-А, оренда – приміщення 3-го поверху, площею 17,00 кв.м. (В)
4 065.72 грн
239.16 грн / м2
Приміщення
м. Київ, вул. Феодори Пушиної, 27-А, оренда – приміщення 3-го поверху, площею 17,00 кв.м. (В)
Україна, м.Київ, Київ, вул. Феодори Пушиної, 27
Переглянуті пропозиції
24.11.2022
Сумська обл., Сумський р-н., м. Ворожба, пров. Слобідський, буд. 15. Оренда – нежитлове приміщення площею 64,60 кв.м. (В)
1 304.27 грн
20.19 грн / м2
Приміщення
Сумська обл., Сумський р-н., м. Ворожба, пров. Слобідський, буд. 15. Оренда – нежитлове приміщення площею 64,60 кв.м. (В)
Україна, Сумська обл., Сумський р-н., м. Ворожба, пров. Слобідський, буд. 15
Львівська обл., м. Золочів, вул. Л.Українки,16. Оренда – одноповерхова будівля площею 248,5 кв.м. (В)
3 357.24 грн
13.51 грн / м2
Будівля
Львівська обл., м. Золочів, вул. Л.Українки,16. Оренда – одноповерхова будівля площею 248,5 кв.м. (В)
Україна, Львівська обл., м. Золочів, вул. Л.Українки,16
25.06.2024
Дніпропетровська обл., смт. Софіївка, бул. Шевченка, 17А;   Оренда – приміщення 1-го поверху площею 11,6 кв.м. (В)
290.00 грн
25.00 грн / м2
Приміщення
Дніпропетровська обл., смт. Софіївка, бул. Шевченка, 17А; Оренда – приміщення 1-го поверху площею 11,6 кв.м. (В)
Україна, Дніпропетровська обл., смт. Софіївка, бул. Шевченка, 17А
04.03.2025
м.Харків, вул. Конторська,14. Оренда – приміщення 1-го поверху, площею 96,9 кв.м (В)
2 907.00 грн
30.00 грн / м2
Приміщення
м.Харків, вул. Конторська,14. Оренда – приміщення 1-го поверху, площею 96,9 кв.м (В)
Україна, Харківська обл., м. Харків, вул. Конторська,14