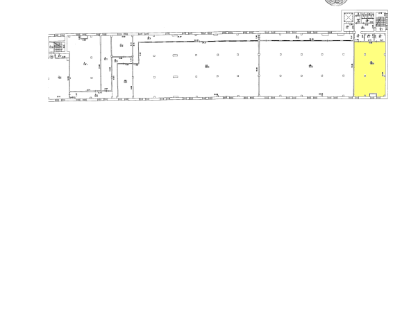
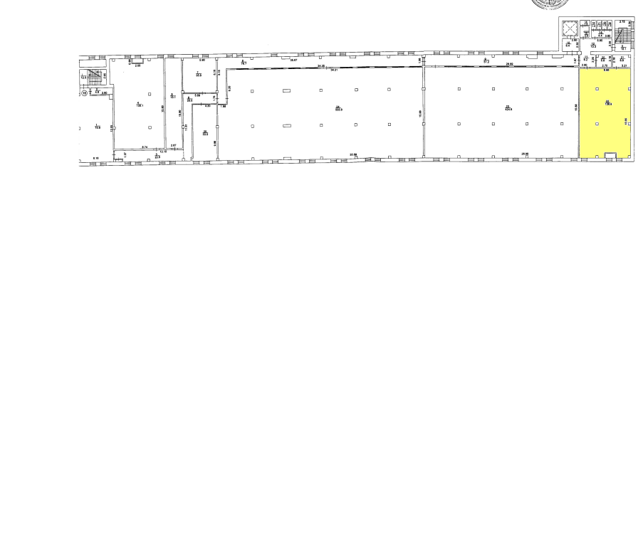
Харківська обл., м. Харків, вул. Нетіченська набережна, 8. Оренда – приміщення дев'ятого поверху площею 136,9 кв.м. (В)

6 324.78 грн
46.20 грн / м2
Україна, Харківська обл., м. Харків, вул. Нетіченська набережна, 8
Перейти до аукціону на сайті
  • Інформація
  • Опис
  • Документи
Дата оголошення пропозиції:
18 лютого 2022
Площа:
136.90 м2
Тип об’єкта:
Приміщення
Тип аукціону:
Англійський аукціон
Статус аукціону:
Аукціон не відбувся
Тип угоди:
Оренда
Розмір мінімального кроку:
400.00 ₴
Розмір гарантійного внеску:
3 794.87 ₴
Початок прийому пропозицій:
18.02.2022 14:23:28
Завершення прийому пропозицій:
22.03.2022 20:00:00
Лот:
UA-PS-2022-02-18-000024-1
№ лоту (УТК):
UTK081121_25P
Лот виставляється на торги (раз):
4
Стислий опис майна:
Пропонується до оренди приміщення дев'ятого поверху площею 136,9 кв.м розташоване за адресою : м. Харків, вул. Нетіченська набережна, 8, 9-й поверх. Будівля знаходиться неподалік від центру міста, 5 хвилин до зупинки громадського транспорту та 15 хвилин до метро. Характеристики: Кількість поверхів – 9; Кількість приміщень, пропонованих до оренди – 1 В приміщеннях присутня електроенергія , на поверсі є водопостачання, у будівлі є охорона. Земельна ділянка -1,745 га
Адреса місцезнаходження майна:
Україна, Харківська обл., м. Харків, вул. Нетіченська набережна, 8
Схожі пропозиції
04.06.2024
Харківська обл., Харківський р-н, смт. Вільшани, вул. Центральна, 18 . Оренда – приміщення 1-го поверху площею 153,40 кв.м. (В)
1 567.75 грн
10.22 грн / м2
Приміщення
Харківська обл., Харківський р-н, смт. Вільшани, вул. Центральна, 18 . Оренда – приміщення 1-го поверху площею 153,40 кв.м. (В)
Україна, Харківська обл., Харківський р-н, смт. Вільшани, вул. Центральна, 18
15.10.2025
м. Харків, вул. Конторська,14.Оренда – приміщення 2-го поверху площею 20,5 кв.м (В)
615.00 грн
30.00 грн / м2
Приміщення
м. Харків, вул. Конторська,14.Оренда – приміщення 2-го поверху площею 20,5 кв.м (В)
Україна, Харківська обл., м. Харків, вул. Конторська,14
04.06.2025
м. Харків, вул. Старошишківська,5а. Оренда – приміщення 1-го поверху площею 36,0 кв.м (В)
1 865.16 грн
51.81 грн / м2
Приміщення
м. Харків, вул. Старошишківська,5а. Оренда – приміщення 1-го поверху площею 36,0 кв.м (В)
Україна, Харківська обл., м. Харків, вул. Старошишківська,5а
27.09.2024
Харківська обл., м. Лозова, вул. Михайла Грушевського, 7. Оренда – приміщення на 1-му поверсі площею 224,2 кв.м. (В)
2 689.20 грн
11.99 грн / м2
Приміщення
Харківська обл., м. Лозова, вул. Михайла Грушевського, 7. Оренда – приміщення на 1-му поверсі площею 224,2 кв.м. (В)
Україна, Харківська обл., м. Лозова, вул. Михайла Грушевського, 7
Переглянуті пропозиції
22.09.2023
Харківська обл., Красноградський р-н, смт. Зачепилівка, вул. Паркова, 3. Оренда - приміщення на 1-му поверсі площею 82,8 кв.м. (В)
1 266.84 грн
15.30 грн / м2
Приміщення
Харківська обл., Красноградський р-н, смт. Зачепилівка, вул. Паркова, 3. Оренда - приміщення на 1-му поверсі площею 82,8 кв.м. (В)
Україна, Харківська обл., Красноградський р-н, смт. Зачепилівка, вул. Паркова, 3
Чернігівська обл., м. Бобровиця, вул. Незалежності, 4. Оренда – офісне приміщення площею 23,40 кв.м (П)
679.54 грн
29.04 грн / м2
Офіс
Чернігівська обл., м. Бобровиця, вул. Незалежності, 4. Оренда – офісне приміщення площею 23,40 кв.м (П)
Україна, Чернігівська обл., Бобровиця, вул. Незалежності, 49
Харківська обл., м. Харків, вул. Конторська, 14. Оренда – приміщення 3-го поверху, площею 414,9 кв.м. (П)
30 121.74 грн
72.60 грн / м2
Приміщення
Харківська обл., м. Харків, вул. Конторська, 14. Оренда – приміщення 3-го поверху, площею 414,9 кв.м. (П)
Україна, Харківська обл., м. Харків, вул. Конторська, 14
07.10.2022
Сумська обл., смт. Недригайлів, вул. Незалежності, буд. 8. Оренда – офісне приміщення 3-го поверху, площею 28,6 кв.м. (В)
453.02 грн
15.84 грн / м2
Офіс
Сумська обл., смт. Недригайлів, вул. Незалежності, буд. 8. Оренда – офісне приміщення 3-го поверху, площею 28,6 кв.м. (В)
Україна, Сумська обл., Недригайлів, вул. Незалежності, 8