Дніпропетровська обл., м. Жовті Води, вул. Свободи, 39. Оренда – приміщення 3-го поверху площею 34,10 кв.м.(В)

682.00 грн
20.00 грн / м2
Україна, Дніпропетровська обл., Жовті Води, Жовті Води, вул. Свободи, 39
Перейти до аукціону на сайті
  • Інформація
  • Опис
  • Документи
Дата оголошення пропозиції:
17 червня 2025
Площа:
34.10 м2
Тип об’єкта:
Приміщення
Тип аукціону:
Англійський аукціон
Статус аукціону:
Аукціон не відбувся
Тип угоди:
Оренда
Розмір мінімального кроку:
15.00 ₴
Розмір гарантійного внеску:
409.20 ₴
Початок прийому пропозицій:
17.06.2025 03:12:32
Завершення прийому пропозицій:
17.07.2025 20:00:00
Проведення аукціону:
18.07.2025 11:40:00
Лот:
CLE001-UA-20250617-73837
№ лоту (УТК):
UTK011122_04U
Лот виставляється на торги (раз):
2
Стислий опис майна:
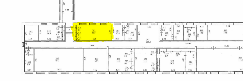
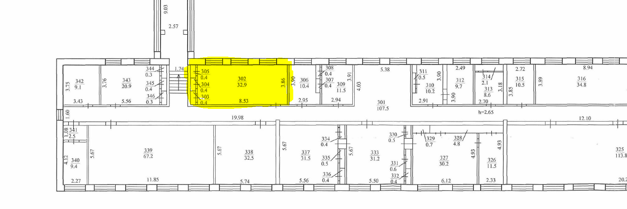
Пропонується до оренди приміщення 3-го поверху площею 34,10кв.м. Розташування – 3-поверхова будівля (літ.А-Б-В, приміщ.№302 - 32,9 кв.м та вбудовані шафи №№303-305 площею 1,2 кв.м), знаходиться в центральному районі міста. Поруч знаходяться відділення банку, високий автомобільний і пішохідний потоки. Стан приміщення задовільний, підходить для офісу, Ідеальне місце під розвиток будьякого бізнесу. Можливість передачі приміщень в суборенду. Характеристики: - Кількість поверхів – 3 - Загальна площа – 3622,50 кв.м. - Площа запропонована до оренди – 34,10 кв.м. - Електропостачання, водопостачання, теплопостачанняцентралізоване; - Земельна ділянка – 0, 603 га (договір оренди)
Адреса місцезнаходження майна:
Україна, Дніпропетровська обл., Жовті Води, Жовті Води, вул. Свободи, 39
Схожі пропозиції
10.09.2024
Дніпропетровська обл., м. Дніпро, вул. Князя Ярослава Мудрого, 3. Оренда – приміщення 4-го поверху площею 21,60 кв.м. (В)
2 584.43 грн
119.65 грн / м2
Приміщення
Дніпропетровська обл., м. Дніпро, вул. Князя Ярослава Мудрого, 3. Оренда – приміщення 4-го поверху площею 21,60 кв.м. (В)
Україна, Дніпропетровська обл., м. Дніпро, вул. Князя Ярослава Мудрого, 3
31.12.2024
Дніпропетровська обл., м. Кривий Ріг, вул. Водоп`янова, 1а;  Оренда – приміщення 4-го поверху, площею 789,8 кв.м. (В)
7 108.20 грн
9.00 грн / м2
Приміщення
Дніпропетровська обл., м. Кривий Ріг, вул. Водоп`янова, 1а; Оренда – приміщення 4-го поверху, площею 789,8 кв.м. (В)
Україна, Дніпропетровська обл., Кривий Ріг, вулиця Водоп'янова, 1а
26.11.2024
Дніпропетровська обл., м. Дніпро, вул. Пушкіна, 75А. Оренда – приміщення технічного поверху площею 66,80 кв.м (В)
6 710.06 грн
100.45 грн / м2
Приміщення
Дніпропетровська обл., м. Дніпро, вул. Пушкіна, 75А. Оренда – приміщення технічного поверху площею 66,80 кв.м (В)
Україна, Дніпропетровська обл., м. Дніпро, вул. Пушкіна, 75А
22.09.2023
Дніпропетровська обл., м. Новомосковськ, вул. Зіни Білої, 44а. Оренда – приміщення автомобільного боксу №53 площею 50,00 кв.м. (В)
3 600.00 грн
72.00 грн / м2
Приміщення
Дніпропетровська обл., м. Новомосковськ, вул. Зіни Білої, 44а. Оренда – приміщення автомобільного боксу №53 площею 50,00 кв.м. (В)
Україна, Дніпропетровська обл., м. Новомосковськ, вул. Зіни Білої, 44а