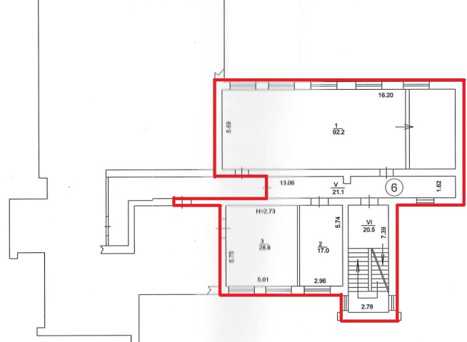
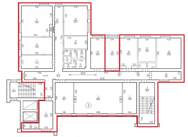
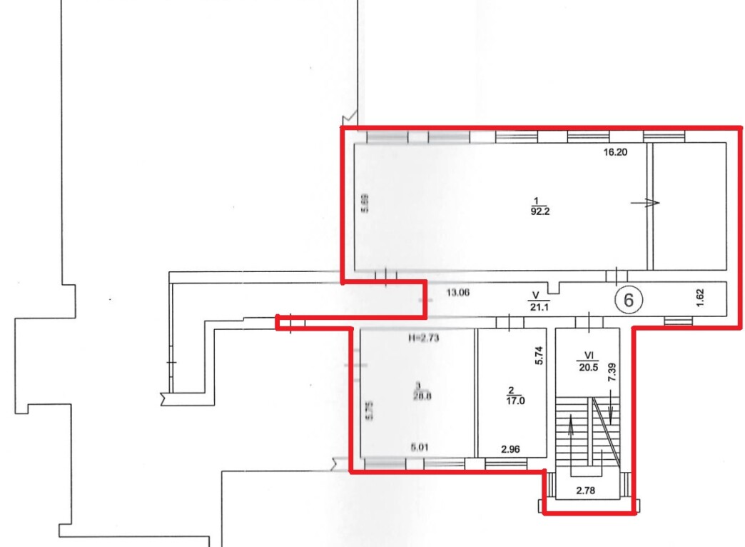
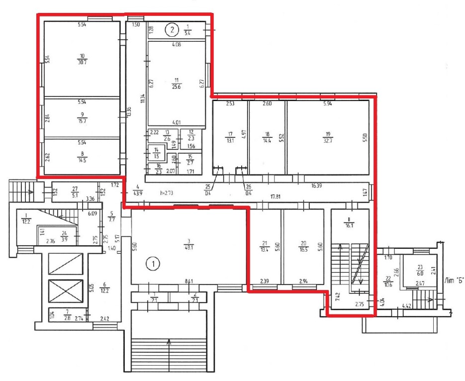
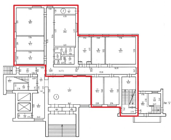
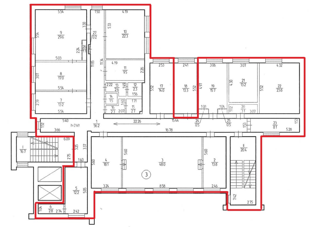
Довгострокова оренда! м. Київ, бульвар Амвросія Бучми, 5 (Дніпровський р-н), літ. «А». Оренда – частина нежилої будівлі літ. «А», приміщення підвалу, 1,2,3 та 5 поверхів площею 1512,80 кв.м. (В)

100 283.51 грн
66.29 грн / м2
Україна, м.Київ, Київ, 02152, м. Київ, бульв. Амвросія Бучми, 5 (Дніпровський р-н), літ. «А»
Перейти до аукціону на сайті
  • Інформація
  • Опис
  • Документи
Дата оголошення пропозиції:
17 червня 2025
Площа:
1512.80 м2
Тип об’єкта:
Приміщення
Тип аукціону:
Англійський аукціон
Статус аукціону:
Аукціон не відбувся
Тип угоди:
Оренда
Розмір мінімального кроку:
1 500.00 ₴
Розмір гарантійного внеску:
60 170.11 ₴
Початок прийому пропозицій:
17.06.2025 14:49:33
Завершення прийому пропозицій:
21.07.2025 20:00:00
Проведення аукціону:
22.07.2025 12:45:00
Лот:
CLE001-UA-20250617-73090
№ лоту (УТК):
UTK280225_62U
Лот виставляється на торги (раз):
4
Стислий опис майна:
Пропонується до оренди частина нежитлової будівлі, площею – 1512,80 кв.м., розташована у Дніпровському районі, житловий масив Березняки. Поруч розвинена інфраструктура, зупинки маршрутного транспорту, 15 хв. від ст. м Лівобережна (червона гілка метро), торгівельно-розважальний центр, озеро «Тельбін». Доступ 24/7. Характеристики: • загальна площа будівлі – 1 672,30 м2 ; • кількість поверхів – 5; • опалення централізоване (міське); • земельна ділянка – 0,4073 га; • каналізація, водозабезпечення, сан. вузол – присутні; • опалення (централізоване) - присутнє.
Адреса місцезнаходження майна:
Україна, м.Київ, Київ, 02152, м. Київ, бульв. Амвросія Бучми, 5 (Дніпровський р-н), літ. «А»
Схожі пропозиції
м. Київ, вул. Райдужна, 27-А, оренда – приміщення підвалу, площею 274,70 кв.м. (В)
12 691.14 грн
46.20 грн / м2
Приміщення
м. Київ, вул. Райдужна, 27-А, оренда – приміщення підвалу, площею 274,70 кв.м. (В)
Україна, м.Київ, Київ, вул. Райдужна, 27-А
05.12.2023
ДОВГОСТРОКОВА ОРЕНДА!  м. Київ, вул. Василя Макуха (Шевцова Івана),5; Оренда – приміщення 3-го поверху площею 905,3 кв.м. (В)
132 137.59 грн
145.96 грн / м2
Приміщення
ДОВГОСТРОКОВА ОРЕНДА! м. Київ, вул. Василя Макуха (Шевцова Івана),5; Оренда – приміщення 3-го поверху площею 905,3 кв.м. (В)
Україна, м.Київ, Київ, вул. Василя Макуха (Шевцова Івана), 5
22.10.2025
м. Київ, вул. Джона Маккейна, 40, літ. «А» (Печерський р-н). Оренда – група приміщень на 1-му поверсі, площею 65,60 кв.м. (В)
13 308.27 грн
202.87 грн / м2
Приміщення
м. Київ, вул. Джона Маккейна, 40, літ. «А» (Печерський р-н). Оренда – група приміщень на 1-му поверсі, площею 65,60 кв.м. (В)
Україна, м.Київ, Київ, вулиця Джона Маккейна, 40 літ. «А»
16.08.2022
м. Київ, вул. Володимирська, 10 Оренда – Приміщення 1-го поверху, площею 201,1 м2 (В)
43 236.50 грн
215.00 грн / м2
Приміщення
м. Київ, вул. Володимирська, 10 Оренда – Приміщення 1-го поверху, площею 201,1 м2 (В)
Україна, м.Київ, Київ, вул. Володимирська, 10
Переглянуті пропозиції
27.11.2025
Рівненська обл., смт. Володимирець, вул. Поштова, 23. Оренда – група приміщень 2-поверху площею 44,30 кв.м. (В)
1 966.92 грн
44.40 грн / м2
Приміщення
Рівненська обл., смт. Володимирець, вул. Поштова, 23. Оренда – група приміщень 2-поверху площею 44,30 кв.м. (В)
Україна, Рівненська обл., Володимирець, вулиця Поштова, 23
Рівненська обл., Вараський р-н. смт. Зарічне, вул. Центральна, 6а. Оренда – приміщення 3 поверху площею 80,8 м. кв. (В)
3 781.44 грн
46.80 грн / м2
Приміщення
Рівненська обл., Вараський р-н. смт. Зарічне, вул. Центральна, 6а. Оренда – приміщення 3 поверху площею 80,8 м. кв. (В)
Україна, Рівненська обл., Вараський р-н. смт. Зарічне, вул. Центральна, 6а