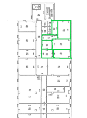
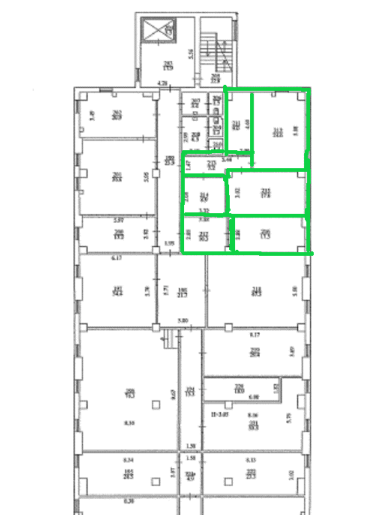
м. Рівне, вул. Міцкевича, 2. Оренда – приміщення 5-го поверху площею 94,9 кв.м

10 122.03 грн
106.66 грн / м2
Україна, Рівненська обл., Рівне, 33028, м. Рівне, вул. Міцкевича, 2
Перейти до аукціону на сайті
  • Інформація
  • Опис
  • Документи
Дата оголошення пропозиції:
17 червня 2025
Площа:
94.90 м2
Тип об’єкта:
Приміщення
Тип аукціону:
Англійський аукціон
Статус аукціону:
Аукціон не відбувся
Тип угоди:
Оренда
Розмір мінімального кроку:
500.00 ₴
Розмір гарантійного внеску:
6 073.22 ₴
Початок прийому пропозицій:
17.06.2025 15:04:45
Завершення прийому пропозицій:
21.07.2025 20:00:00
Проведення аукціону:
22.07.2025 12:15:00
Лот:
CLE001-UA-20250617-38907
№ лоту (УТК):
UTK040425_09U
Лот виставляється на торги (раз):
3
Стислий опис майна:
Пропонується до оренди приміщення 5-го поверху площею 94,9 кв.м. Будівля в діловому центрі міста Рівного. Вхід в приміщення спільний. Поруч знаходиться майдан Незалежності, Ощадбанк, торговий центр «ЦУМ» та ін. Зручна транспортна розв’язка та інфраструктура. Характеристики: Кількість поверхів – 6; Загальна площа – 5745,5 кв.м_ Площа запропонована до оренди -94,9 кв.м Дозволена потужність – 2 кВт Теплопостачання-централізоване Земельна ділянка – 0.4563 га (договір оренди)
Адреса місцезнаходження майна:
Україна, Рівненська обл., Рівне, 33028, м. Рівне, вул. Міцкевича, 2
Схожі пропозиції
Рівненська обл., м. Рівне вул. В. Чорновола, 17в. Оренда – приміщення нежитлове площею 43 м. кв. (В)
4 687.86 грн
109.02 грн / м2
Приміщення
Рівненська обл., м. Рівне вул. В. Чорновола, 17в. Оренда – приміщення нежитлове площею 43 м. кв. (В)
Україна, Рівненська обл., м. Рівне , вул. В. Чорновола, 17в
Рівненська обл., Вараський р-н. смт. Зарічне, вул. Центральна, 6а. Оренда – приміщення 3 поверху площею 80,8 м. кв. (В)
1 512.58 грн
18.72 грн / м2
Приміщення
Рівненська обл., Вараський р-н. смт. Зарічне, вул. Центральна, 6а. Оренда – приміщення 3 поверху площею 80,8 м. кв. (В)
Україна, Рівненська обл., Вараський р-н. смт. Зарічне, вул. Центральна, 6а
23.03.2023
Рівненська обл., Рівненський р-н, с.Тучин, вул.Поштова, 4. Оренда – виробничі приміщення загальною площею 243,1 кв.м. (В)
3 882.31 грн
15.97 грн / м2
Приміщення
Рівненська обл., Рівненський р-н, с.Тучин, вул.Поштова, 4. Оренда – виробничі приміщення загальною площею 243,1 кв.м. (В)
Україна, Рівненська обл., Рівненський р-н, с.Тучин, вул.Поштова, 4
26.08.2025
Рівненська обл., м. Рівне вул. Вишиванка,37. Оренда – приміщення підвалу загальною площею 378,60 м.кв. (В)
24 241.76 грн
64.03 грн / м2
Приміщення
Рівненська обл., м. Рівне вул. Вишиванка,37. Оренда – приміщення підвалу загальною площею 378,60 м.кв. (В)
Україна, Рівненська обл., Рівне, вулиця Вишиванка, 37
Переглянуті пропозиції
Чернігівська обл., м. Городня, вул. 1-го Травня, 48. Оренда приміщення 2 пов.
3 716.93 грн
27.68 грн / м2
Приміщення
Чернігівська обл., м. Городня, вул. 1-го Травня, 48. Оренда приміщення 2 пов.
Україна, Чернігівська обл., м. Городня, вул. 1-го Травня, 48
28.10.2025
 м. Київ, вулиця Академіка Шалімова, 39/8. Оренда – приміщення 1-го поверху, площею 54,30 м. кв.(В)
7 012.85 грн
129.15 грн / м2
Приміщення
м. Київ, вулиця Академіка Шалімова, 39/8. Оренда – приміщення 1-го поверху, площею 54,30 м. кв.(В)
Україна, м.Київ, Київ, вулиця Академіка Шалімова, 39/8
Полтавська обл., м. Решетилівка, вул. Полтавська, 50. Оренда - підсобне приміщення та гараж
965.76 грн
19.20 грн / м2
Приміщення
Полтавська обл., м. Решетилівка, вул. Полтавська, 50. Оренда - підсобне приміщення та гараж
Україна, Полтавська обл., м. Решетилівка, вул. Полтавська, буд. 50
м. Харків, вул. Салтівське шосе, 2 Оренда приміщення 63,0 кв.м., 1 пов.
1 161.09 грн
18.43 грн / м2
Приміщення
м. Харків, вул. Салтівське шосе, 2 Оренда приміщення 63,0 кв.м., 1 пов.
Україна, Харківська обл., м. Харків, вул. Салтівське шосе, 2