02091, м. Київ, вул. Архітектора Вербицького, 3 (Дарницький р-н). Оренда – Приміщення 3-го поверху, площею 198,10 кв.м. (В)

16 260.05 грн
82.08 грн / м2
Україна, м.Київ, Київ, 02091, м. Київ, вул. Архітектора Вербицького , 3
Перейти до аукціону на сайті
  • Інформація
  • Опис
  • Документи
Дата оголошення пропозиції:
01 липня 2025
Площа:
198.10 м2
Тип об’єкта:
Приміщення
Тип аукціону:
Англійський аукціон
Статус аукціону:
Аукціон не відбувся
Тип угоди:
Оренда
Розмір мінімального кроку:
250.00 ₴
Розмір гарантійного внеску:
9 756.03 ₴
Початок прийому пропозицій:
01.07.2025 00:18:20
Завершення прийому пропозицій:
30.07.2025 20:00:00
Проведення аукціону:
31.07.2025 11:50:00
Лот:
CLE001-UA-20250630-46441
№ лоту (УТК):
UTK200225_39U
Лот виставляється на торги (раз):
3
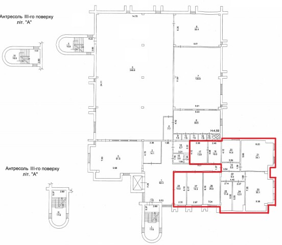
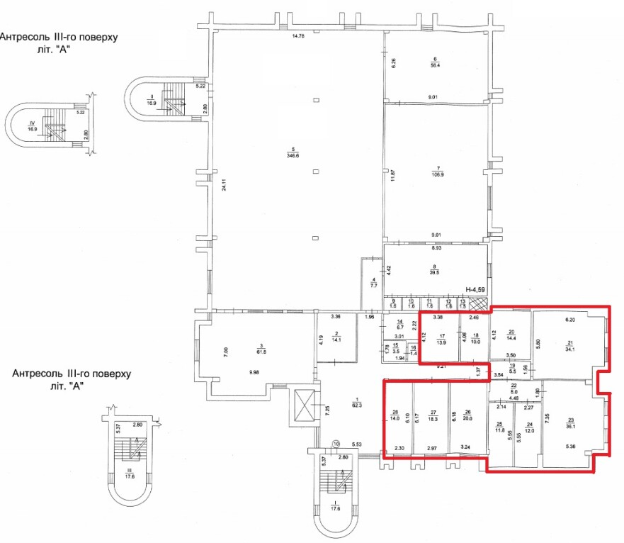
Стислий опис майна:
Пропонується до оренди приміщення 3-го поверху, площею 198,10 кв.м.. Будівля знаходиться в Дарницькому районі міста Києва, житловий масив Харківський. Зупинки маршрутного транспорту, супермаркети, торгово-розважальні центри. Найближчі станції метро «Харківська», «Вирлиця». Вхід з двору. Характеристики: • загальна площа будівлі – 4804,70 м2; • кількість поверхів – 5; • опалення централізоване (міське); • земельна ділянка – 0,55 га; • каналізація, водозабезпечення, сан. вузол – присутні на поверсі;
Адреса місцезнаходження майна:
Україна, м.Київ, Київ, 02091, м. Київ, вул. Архітектора Вербицького , 3
Схожі пропозиції
13.09.2024
м. Київ, вул. Архітектора Вербицького, 3;   Оренда – приміщення 1-го та 3-го поверху площею 263,7 кв.м. (В)
25 251.91 грн
95.76 грн / м2
Приміщення
м. Київ, вул. Архітектора Вербицького, 3; Оренда – приміщення 1-го та 3-го поверху площею 263,7 кв.м. (В)
Україна, м.Київ, Київ, вул. Архітектора Вербицького, 3
07.11.2024
ДОВГОСТРОКОВА ОРЕНДА! м. Київ, вул. Героїв Севастополя, 39/8 літ. «Е»;  Оренда – приміщення 2-го та 4-го поверхів, площею 1751,8 кв.м. (В)
239 944.05 грн
136.97 грн / м2
Приміщення
ДОВГОСТРОКОВА ОРЕНДА! м. Київ, вул. Героїв Севастополя, 39/8 літ. «Е»; Оренда – приміщення 2-го та 4-го поверхів, площею 1751,8 кв.м. (В)
Україна, м.Київ, Київ, вул. Героїв Севастополя, 39/8(Е)
19.12.2023
 ДОВГОСТРОКОВА ОРЕНДА!   м. Київ, бульвар Бучми Амвросія, 5;  Оренда – приміщення 2-го поверху, площею 671,20 м2 (П)
88 222.53 грн
131.44 грн / м2
Приміщення
ДОВГОСТРОКОВА ОРЕНДА! м. Київ, бульвар Бучми Амвросія, 5; Оренда – приміщення 2-го поверху, площею 671,20 м2 (П)
Україна, м.Київ, Київ, вулиця Амвросія Бучми, 5
05.10.2022
м. Київ, вул. Будівельників, 8-Б, оренда – приміщення підвалу, площею 452,60 кв.м. (В)
20 910.12 грн
46.20 грн / м2
Приміщення
м. Київ, вул. Будівельників, 8-Б, оренда – приміщення підвалу, площею 452,60 кв.м. (В)
Україна, м.Київ, Київ, вулиця Будівельників, 8Б