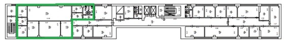
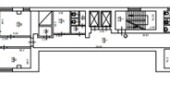
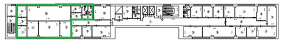
Львівська обл., м. Львів, вул. Дорошенка,43. Оренда – приміщення антресолі нежитлової будівлі літ. А площею 135,6 кв. м. (В)

15 035.33 грн
110.88 грн / м2
Україна, Львівська обл., Львів, 79007, Львівська обл., м. Львів, вул. Дорошенка,43
Перейти до аукціону на сайті
  • Інформація
  • Опис
  • Документи
Дата оголошення пропозиції:
03 липня 2025
Площа:
135.60 м2
Тип об’єкта:
Приміщення
Тип аукціону:
Англійський аукціон
Статус аукціону:
Аукціон не відбувся
Тип угоди:
Оренда
Розмір мінімального кроку:
1 000.00 ₴
Розмір гарантійного внеску:
9 021.20 ₴
Початок прийому пропозицій:
03.07.2025 21:42:13
Завершення прийому пропозицій:
04.08.2025 20:00:00
Проведення аукціону:
05.08.2025 11:40:00
Лот:
CLE001-UA-20250703-47299
№ лоту (УТК):
UTK_170325_05U
Лот виставляється на торги (раз):
4
Стислий опис майна:
Пропонуються до оренди приміщення антресолі нежитлової будівлі літ. А площею 135,6 кв. м. Будівля знаходиться у центральній частині міста з розвиненою інфраструктурою, поруч Головний офіс Укрпошти, а також головні офіси державних установ. Характеристики - кількість поверхів – 7 - Електропостачання (можливість гарантованого живлення) - Водопостачання та водовідведення - Опалення -теплопостачання - земельна ділянка – 0,5013 га (оренда)
Адреса місцезнаходження майна:
Україна, Львівська обл., Львів, 79007, Львівська обл., м. Львів, вул. Дорошенка,43
Схожі пропозиції
15.10.2024
Львівська обл., м. Глиняни, вул. Св.Миколая, 5;    Оренда – приміщення 1-го поверху площею 18,50 кв.м. (В)
647.69 грн
35.01 грн / м2
Приміщення
Львівська обл., м. Глиняни, вул. Св.Миколая, 5; Оренда – приміщення 1-го поверху площею 18,50 кв.м. (В)
Україна, Львівська обл., Глиняни, вул. Св. Миколая, 5
04.02.2025
Львівська обл., Жовківський р-н., с. Мокротин, вул. Хоробрівка, 7а . Оренда – приміщення площею 16,60 кв.м. (В)
265.60 грн
16.00 грн / м2
Приміщення
Львівська обл., Жовківський р-н., с. Мокротин, вул. Хоробрівка, 7а . Оренда – приміщення площею 16,60 кв.м. (В)
Україна, Львівська обл., Жовківський р-н., с. Мокротин, вул. Хоробрівка, 7а
Львівська обл. м. Радехів, вул. Львівська, 24. Оренда – приміщення 2- го поверху площею 105,20 кв.м. (В)
1 578.00 грн
15.00 грн / м2
Приміщення
Львівська обл. м. Радехів, вул. Львівська, 24. Оренда – приміщення 2- го поверху площею 105,20 кв.м. (В)
Україна, Львівська обл., м. Радехів, вул. Львівська, 24
Львівська обл., м. Дрогобич, вул. Д. Галицького, 21. Оренда приміщення 2-го поверху площею 85,7 кв.м. (В)
589.62 грн
6.88 грн / м2
Приміщення
Львівська обл., м. Дрогобич, вул. Д. Галицького, 21. Оренда приміщення 2-го поверху площею 85,7 кв.м. (В)
Україна, Львівська обл., м. Дрогобич, вул. Д. Галицького, 21
Переглянуті пропозиції
17.06.2025
Київська обл., Броварський р-н, м. Березань, вул. Героїв Небесної Сотні, 12. Оренда – приміщення на 2-му поверсі, площею 59,10 кв.м (В)
2 298.52 грн
38.89 грн / м2
Приміщення
Київська обл., Броварський р-н, м. Березань, вул. Героїв Небесної Сотні, 12. Оренда – приміщення на 2-му поверсі, площею 59,10 кв.м (В)
Україна, Київська обл., Березань, 07541, Київська обл., Броварський р-н, м. Березань, вул. Героїв Небесної Сотні, 12