Полтавська обл., Миргородський р-н, смт. Велика Багачка, вулиця Чекалових, 17. Оренда – приміщення 2-го поверху загальною площею 29,00 кв.м. (В)

943.66 грн
32.54 грн / м2
Україна, Полтавська обл., Велика Багачка, : 38300, Полтавська обл., Миргородський р-н, смт. Велика Багачка, вул. Чекалових, 17
Перейти до аукціону на сайті
  • Інформація
  • Опис
  • Документи
Дата оголошення пропозиції:
01 серпня 2025
Площа:
29.00 м2
Тип об’єкта:
Приміщення
Тип аукціону:
Англійський аукціон
Статус аукціону:
Аукціон не відбувся
Тип угоди:
Оренда
Розмір мінімального кроку:
50.00 ₴
Розмір гарантійного внеску:
566.20 ₴
Початок прийому пропозицій:
01.08.2025 04:08:26
Завершення прийому пропозицій:
01.09.2025 20:00:00
Проведення аукціону:
02.09.2025 12:50:00
Лот:
CLE001-UA-20250801-40296
№ лоту (УТК):
UTK061224_04U
Лот виставляється на торги (раз):
3
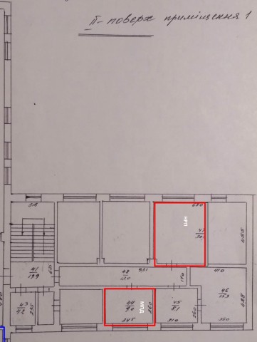
Стислий опис майна:
Пропонується до оренди приміщення, що розташоване в двоповерховій будівлі, загальною площею 29,00 кв.м. Будівля розташована в центральному районі смт. Велика Багачка Характеристики • Кількість поверхів – 2; • Загальна площа –856,40 кв. м.; • Площа запропонована до оренди 29,00 кв. м.; • Опалення – відсутнє; • Електропостачання– наявне; • Земельна ділянка –0,2926 га (договір оренди землі)
Адреса місцезнаходження майна:
Україна, Полтавська обл., Велика Багачка, : 38300, Полтавська обл., Миргородський р-н, смт. Велика Багачка, вул. Чекалових, 17
Схожі пропозиції
12.07.2024
Полтавська обл., Кременчуцький р-н., смт. Семенівка, вул. Воїнів Інтернаціоналістів, 12/9. Оренда – приміщення 3-го поверху площею 93,0 кв.м. (В)
502.20 грн
5.40 грн / м2
Приміщення
Полтавська обл., Кременчуцький р-н., смт. Семенівка, вул. Воїнів Інтернаціоналістів, 12/9. Оренда – приміщення 3-го поверху площею 93,0 кв.м. (В)
Україна, Полтавська обл., Кременчуцький р-н., смт. Семенівка, вул. Воїнів Інтернаціоналістів, 12/9
Полтавська обл., м. Решетилівка, вул. Старокиївська, 2. Оренда – приміщення 2-го поверху площею 28,9 кв.м. (В)
578.29 грн
20.01 грн / м2
Приміщення
Полтавська обл., м. Решетилівка, вул. Старокиївська, 2. Оренда – приміщення 2-го поверху площею 28,9 кв.м. (В)
Україна, Полтавська обл., м. Решетилівка, вул. Старокиївська, 2
Полтавська обл., м. Горішні Плавні, вул. Миру, буд. 18. Оренда – приміщення 2-го поверху
426.24 грн
38.40 грн / м2
Приміщення
Полтавська обл., м. Горішні Плавні, вул. Миру, буд. 18. Оренда – приміщення 2-го поверху
Україна, Полтавська обл., м. Горішні Плавні, вул. Миру, буд. буд. 18
31.07.2023
Полтавська обл., Кременчуцький р-н, м. Горішні Плавні, вулиця Миру, 18. Оренда – приміщення 2-го поверху площею 32,00 кв.м. (В)
2 148.16 грн
67.13 грн / м2
Приміщення
Полтавська обл., Кременчуцький р-н, м. Горішні Плавні, вулиця Миру, 18. Оренда – приміщення 2-го поверху площею 32,00 кв.м. (В)
Україна, Полтавська обл., Кременчуцький р-н, м. Горішні Плавні, вул. Миру, 18
Переглянуті пропозиції
21.10.2022
м. Київ, вул. Н. Ужвій, 1. Оренда – приміщення 3-го поверху, площею 21,90 кв.м. (В)
1 432.26 грн
65.40 грн / м2
Приміщення
м. Київ, вул. Н. Ужвій, 1. Оренда – приміщення 3-го поверху, площею 21,90 кв.м. (В)
Україна, м.Київ, Київ, вулиця Наталії Ужвій, 1
29.02.2024
Дніпропетровська обл., м. Нікополь, вулиця Патріотів України, буд.113А;  Оренда – перший поверх, загальною площею 1104,3 кв.м.(В)
4 030.70 грн
3.65 грн / м2
Приміщення
Дніпропетровська обл., м. Нікополь, вулиця Патріотів України, буд.113А; Оренда – перший поверх, загальною площею 1104,3 кв.м.(В)
Україна, Дніпропетровська обл., Нікополь, вул. Патріотів України, буд. 113А
23.01.2024
Дніпропетровська обл., м. Дніпро, вул. Князя Ярослава Мудрого, 3. Оренда – приміщення 5-го поверху площею 58,20 кв.м. (В)
6 963.63 грн
119.65 грн / м2
Приміщення
Дніпропетровська обл., м. Дніпро, вул. Князя Ярослава Мудрого, 3. Оренда – приміщення 5-го поверху площею 58,20 кв.м. (В)
Україна, Дніпропетровська обл., м. Дніпро, вул. Князя Ярослава Мудрого, 3, вул. Дніпровська, 226