Дніпропетровська обл., м. Нікополь, вулиця Патріотів України, буд.113А; Оренда – перший поверх, загальною площею 1104,3 кв.м.(В)

4 030.70 грн
3.65 грн / м2
Україна, Дніпропетровська обл., Нікополь, вул. Патріотів України, буд. 113А
Перейти до аукціону на сайті
  • Інформація
  • Опис
  • Документи
Дата оголошення пропозиції:
25 січня 2024
Площа:
1104.30 м2
Тип об’єкта:
Приміщення
Тип аукціону:
Англійський аукціон
Статус аукціону:
Аукціон не відбувся
Тип угоди:
Оренда
Розмір мінімального кроку:
100.00 ₴
Розмір гарантійного внеску:
2 418.42 ₴
Початок прийому пропозицій:
25.01.2024 14:29:11
Завершення прийому пропозицій:
28.02.2024 20:00:00
Проведення аукціону:
29.02.2024 11:20:00
Лот:
CLE001-UA-20240125-51532
№ лоту (УТК):
UTK180222_03T
Лот виставляється на торги (раз):
10
Стислий опис майна:
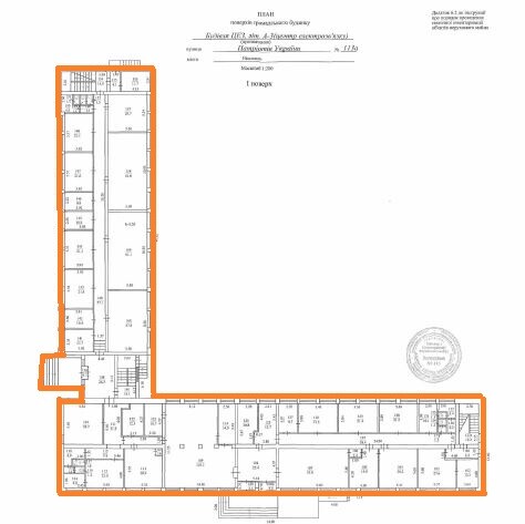
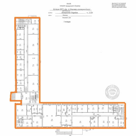
Пропонується до оренди приміщення 1-го поверху, загальною площею 1104,3 кв.м. Поруч знаходяться торгівельний центр, середній автомобільний і пішохідний потоки. Стан приміщення задовільний, підходить для розміщення офісу. Характеристики: Кількість поверхів – 3; Загальна площа – 6459,1 кв.м_ Площа запропонована до оренди – 1104,3 кв.м Електропостачання, водопостачання; Земельна ділянка – 1,1369 га (договір оренди)
Адреса місцезнаходження майна:
Україна, Дніпропетровська обл., Нікополь, вул. Патріотів України, буд. 113А
Схожі пропозиції
17.05.2024
Дніпропетровська обл., м. Кривий Ріг, вул. Водоп`янова, 1а;   Оренда – приміщення  1-го поверху, площею 282,5 кв.м. (В)
2 542.50 грн
9.00 грн / м2
Приміщення
Дніпропетровська обл., м. Кривий Ріг, вул. Водоп`янова, 1а; Оренда – приміщення 1-го поверху, площею 282,5 кв.м. (В)
Україна, Дніпропетровська обл., Кривий Ріг, вулиця Водоп'янова, 1а
25.06.2024
Дніпропетровська обл., м. Дніпро, вул. Пушкіна, 75А. Оренда – приміщення технічного поверху площею 66,80 кв.м (В)
6 710.06 грн
100.45 грн / м2
Приміщення
Дніпропетровська обл., м. Дніпро, вул. Пушкіна, 75А. Оренда – приміщення технічного поверху площею 66,80 кв.м (В)
Україна, Дніпропетровська обл., м. Дніпро, вул. Пушкіна, 75А
14.08.2025
Дніпропетровська обл., м. Кривий Ріг, вул. Героїв АТО, 30. Оренда – підвальне приміщення площею 99,2 кв. м. (В)
3 730.91 грн
37.61 грн / м2
Приміщення
Дніпропетровська обл., м. Кривий Ріг, вул. Героїв АТО, 30. Оренда – підвальне приміщення площею 99,2 кв. м. (В)
Україна, Дніпропетровська обл., м. Кривий Ріг, вул. Героїв АТО, 30
17.03.2023
Дніпропетровська обл., м. Кривий Ріг, вул. Дніпропетровське шосе, 48. Оренда – приміщення 2-го поверху, площею 446,0 кв.м. (В)
11 096.48 грн
24.88 грн / м2
Приміщення
Дніпропетровська обл., м. Кривий Ріг, вул. Дніпропетровське шосе, 48. Оренда – приміщення 2-го поверху, площею 446,0 кв.м. (В)
Україна, Дніпропетровська обл., Кривий Ріг, вулиця Дніпровське шосе, 48
Переглянуті пропозиції
23.01.2024
Дніпропетровська обл., м. Дніпро, вул. Князя Ярослава Мудрого, 3. Оренда – приміщення 5-го поверху площею 58,20 кв.м. (В)
6 963.63 грн
119.65 грн / м2
Приміщення
Дніпропетровська обл., м. Дніпро, вул. Князя Ярослава Мудрого, 3. Оренда – приміщення 5-го поверху площею 58,20 кв.м. (В)
Україна, Дніпропетровська обл., м. Дніпро, вул. Князя Ярослава Мудрого, 3, вул. Дніпровська, 226
14.02.2024
м. Харків, пр-т. Г. Сталінграду, 3. Оренда – приміщення 3-го поверху площею 344,7 кв.м. (В)
18 820.62 грн
54.60 грн / м2
Приміщення
м. Харків, пр-т. Г. Сталінграду, 3. Оренда – приміщення 3-го поверху площею 344,7 кв.м. (В)
Україна, Харківська обл., м. Харків, пр-т. Г. Сталінграду, 3
07.02.2025
ДОВГОСТРОКОВА ОРЕНДА! Дніпропетровська обл., Новомосковський р-н, м. Перещепине, вул. Шевченка, 61.Оренда – комплекс нежитлових будівель та споруд площею 403,80 кв.м (В)
1 211.40 грн
3.00 грн / м2
Будівля
ДОВГОСТРОКОВА ОРЕНДА! Дніпропетровська обл., Новомосковський р-н, м. Перещепине, вул. Шевченка, 61.Оренда – комплекс нежитлових будівель та споруд площею 403,80 кв.м (В)
Україна, Дніпропетровська обл., Новомосковський р-н, м. Перещепине, вул. Шевченка, 61