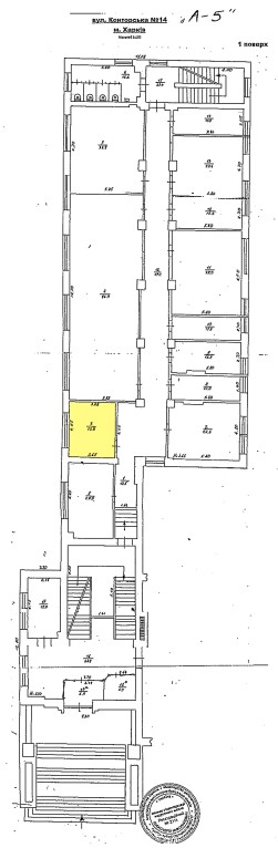
м. Харків, вул.Конторська,14. Оренда – приміщення першого поверху площею 17,0 кв.м (В)

949.11 грн
55.83 грн / м2
Україна, Харківська обл., Харків, вулиця Конторська, 14
Перейти до аукціону на сайті
  • Інформація
  • Опис
  • Документи
Дата оголошення пропозиції:
29 серпня 2025
Площа:
17.00 м2
Тип об’єкта:
Приміщення
Тип аукціону:
Англійський аукціон
Статус аукціону:
Аукціон не відбувся
Тип угоди:
Оренда
Розмір мінімального кроку:
50.00 ₴
Розмір гарантійного внеску:
569.47 ₴
Початок прийому пропозицій:
29.08.2025 07:11:18
Завершення прийому пропозицій:
29.09.2025 20:00:00
Проведення аукціону:
30.09.2025 12:55:00
Лот:
CLE001-UA-20250829-91351
№ лоту (УТК):
UTK160525_02U
Лот виставляється на торги (раз):
4
Стислий опис майна:
Пропонується до оренди приміщення першого поверху площею 17,0 кв.м. Будівля в центрі міста Харкова. 15 хв до метро Центральний ринок. Характеристики: Кількість поверхів – 4; Загальна площа – 5611,00 кв.м_ Площа запропонована до оренди – 17,0 кв.м Дозволена потужність – 1,0 кВт Теплопостачання - відсутнє Земельна ділянка – 0,5169 га
Адреса місцезнаходження майна:
Україна, Харківська обл., Харків, вулиця Конторська, 14
Схожі пропозиції
Харківська обл., м. Мерефа, вул. Дніпровська, 226 Оренда - приміщення 1 поверху 216,0 кв.м.
10 368.00 грн
48.00 грн / м2
Приміщення
Харківська обл., м. Мерефа, вул. Дніпровська, 226 Оренда - приміщення 1 поверху 216,0 кв.м.
Україна, Харківська обл., м. Мерефа, вул. Дніпровська, 226
Харківська обл., Чугуївський р-н, смт. Старий Салтів, вул. Перемоги, 20. Оренда – приміщення 2-го поверху будівлі А-2, площею 46,50 кв.м. (В)
1 282.47 грн
27.58 грн / м2
Приміщення
Харківська обл., Чугуївський р-н, смт. Старий Салтів, вул. Перемоги, 20. Оренда – приміщення 2-го поверху будівлі А-2, площею 46,50 кв.м. (В)
Україна, Харківська обл., смт. Старий Салтів, вул. Перемоги, 20
06.02.2024
м. Харків,  пр-т  Ювілейний, 66;   Оренда – приміщення 2-го поверху площею 36,5 кв.м (В)
2 844.81 грн
77.94 грн / м2
Приміщення
м. Харків, пр-т Ювілейний, 66; Оренда – приміщення 2-го поверху площею 36,5 кв.м (В)
Україна, Харківська обл., Харків, проспект Ювілейний, 66
Харківська обл., Ізюмський р-н, смт. Донець, вул. Центральна, 42. Оренда – приміщення 1-го поверху будівлі “А-2” площею 127,40 кв.м. (В)
2 883.06 грн
22.63 грн / м2
Приміщення
Харківська обл., Ізюмський р-н, смт. Донець, вул. Центральна, 42. Оренда – приміщення 1-го поверху будівлі “А-2” площею 127,40 кв.м. (В)
Україна, Харківська обл., Ізюмський р-н, смт. Донець, вул. Центральна, 42
Переглянуті пропозиції
27.09.2024
Чернігівська обл., м. Чернігів, проспект Миру, 28. Оренда – приміщення 3- го поверху площею 56,6 кв.м (В)
4 945.71 грн
87.38 грн / м2
Приміщення
Чернігівська обл., м. Чернігів, проспект Миру, 28. Оренда – приміщення 3- го поверху площею 56,6 кв.м (В)
Україна, Чернігівська обл., м. Чернігів, проспект Миру, 28
Львівська обл., м. Винники, вул. Сухомлинського,2. Оренда – приміщення 1-го та 2-го поверху площею 435,7 кв.м. (В)
16 521.74 грн
37.92 грн / м2
Приміщення
Львівська обл., м. Винники, вул. Сухомлинського,2. Оренда – приміщення 1-го та 2-го поверху площею 435,7 кв.м. (В)
Україна, Львівська обл., м. Винники, вул. Сухомлинського, 2
28.12.2023
Львівська обл., с. Верин, вул. Є. Коновальця, 14;   Оренда – приміщення 1-го поверху площею 22,3 кв. м (В)
605.89 грн
27.17 грн / м2
Приміщення
Львівська обл., с. Верин, вул. Є. Коновальця, 14; Оренда – приміщення 1-го поверху площею 22,3 кв. м (В)
Україна, Львівська обл., Верин, вулиця Євгена Коновальця, 14
Львівська обл., м. Стрий, вул. Поштова, 5. Оренда – приміщення 3-го поверху площею 114,60 кв. м. (В)
2 062.80 грн
18.00 грн / м2
Приміщення
Львівська обл., м. Стрий, вул. Поштова, 5. Оренда – приміщення 3-го поверху площею 114,60 кв. м. (В)
Україна, Львівська обл., м. Стрий, вул. Поштова, 5