Рівненська обл., м. Вараш, м-н Незалежності,4. Оренда –приміщення 2-го поверху площею 91,50 кв. м (В).

12 752.36 грн
139.37 грн / м2
Україна, Рівненська обл., Вараш, Незалежності 4
Перейти до аукціону на сайті
  • Інформація
  • Опис
  • Документи
Дата оголошення пропозиції:
29 серпня 2025
Площа:
91.50 м2
Тип об’єкта:
Приміщення
Тип аукціону:
Англійський аукціон
Статус аукціону:
Аукціон не відбувся
Тип угоди:
Оренда
Розмір мінімального кроку:
200.00 ₴
Розмір гарантійного внеску:
7 651.42 ₴
Початок прийому пропозицій:
29.08.2025 09:36:31
Завершення прийому пропозицій:
29.09.2025 20:00:00
Проведення аукціону:
30.09.2025 12:25:00
Лот:
CLE001-UA-20250829-09600
№ лоту (УТК):
UTK290825_05U
Лот виставляється на торги (раз):
1
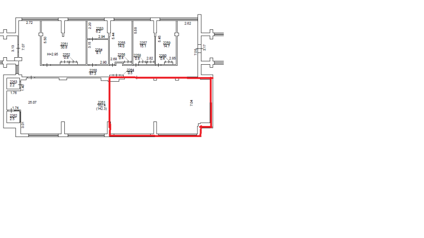
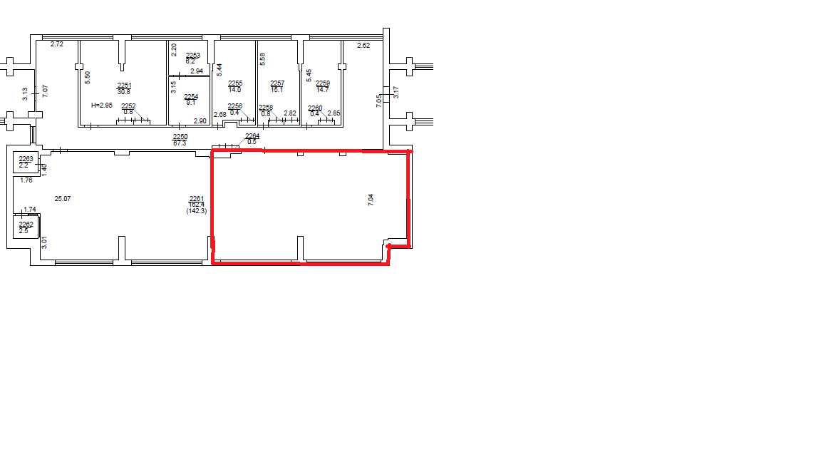
Стислий опис майна:
Пропонуються до оренди приміщення 2-го поверху площею 91,5 кв. м.. Об'єкт знаходиться у центральній частині міста, розвинена інфраструктура, поряд відділення Укрпошти, магазини та адміністративні приміщення. Територія огороджена та частково впорядкована. Характеристики: Кількість поверхів – 3; Загальна площа – 5233,80 м. кв.; Площа, запропонована до оренди – 91,50 м. кв.; Опалення – централізоване; Земельна ділянка - площа 0,826 га.
Адреса місцезнаходження майна:
Україна, Рівненська обл., Вараш, Незалежності 4
Схожі пропозиції
31.08.2022
Рівненська обл., м. Вараш, м-н. Незалежності, 4. Оренда – приміщення 1-го та 2-го поверху площею 159,4 кв.м. (В)
11 116.56 грн
69.74 грн / м2
Приміщення
Рівненська обл., м. Вараш, м-н. Незалежності, 4. Оренда – приміщення 1-го та 2-го поверху площею 159,4 кв.м. (В)
Україна, Рівненська обл., м. Вараш, м-н. Незалежності, 4
26.08.2022
Рівненська обл., Рівненський р-н, с. Моквин, вул. Шевченка, 3. Оренда – виробничі приміщення загальною площею 144,7 м.кв. (В)
2 063.42 грн
14.26 грн / м2
Приміщення
Рівненська обл., Рівненський р-н, с. Моквин, вул. Шевченка, 3. Оренда – виробничі приміщення загальною площею 144,7 м.кв. (В)
Україна, Рівненська обл., Рівненський р-н, с. Моквин, вул. Шевченка, 3
Рівненська обл., м. Рівне вул. В. Чорновола, 17в. Оренда – приміщення нежитлове площею 43 м. кв. (В)
2 343.93 грн
54.51 грн / м2
Приміщення
Рівненська обл., м. Рівне вул. В. Чорновола, 17в. Оренда – приміщення нежитлове площею 43 м. кв. (В)
Україна, Рівненська обл., м. Рівне , вул. В. Чорновола, 17в
25.07.2025
Рівненська обл., Вараський р-н, с. Великі Телковичі, вул. Щорса, 15. Оренда – приміщення будівлі площею 47,3 кв.м. (В)
567.60 грн
12.00 грн / м2
Приміщення
Рівненська обл., Вараський р-н, с. Великі Телковичі, вул. Щорса, 15. Оренда – приміщення будівлі площею 47,3 кв.м. (В)
Україна, Рівненська обл., Великі Телковичі, Великі Телковичі, вул. Щорса, 15
Переглянуті пропозиції
27.04.2023
Львівська обл., м. Судова Вишня, пл. Ів. Франка, 13. Оренда – приміщення 2-го поверху площею 47,40 кв.м. (В)
1 465.61 грн
30.92 грн / м2
Приміщення
Львівська обл., м. Судова Вишня, пл. Ів. Франка, 13. Оренда – приміщення 2-го поверху площею 47,40 кв.м. (В)
Україна, Львівська обл., м. Судова Вишня, пл. Ів. Франка, 13
26.07.2023
Рівненська обл., м. Рівне, вул. Дубенська, 44б. Оренда – приміщення 1-го поверху одноповерхової будівлі площею 65,1 кв.м. (В)
7 575.04 грн
116.36 грн / м2
Приміщення
Рівненська обл., м. Рівне, вул. Дубенська, 44б. Оренда – приміщення 1-го поверху одноповерхової будівлі площею 65,1 кв.м. (В)
Україна, Рівненська обл., м. Рівне, вул. Дубенська, 44б