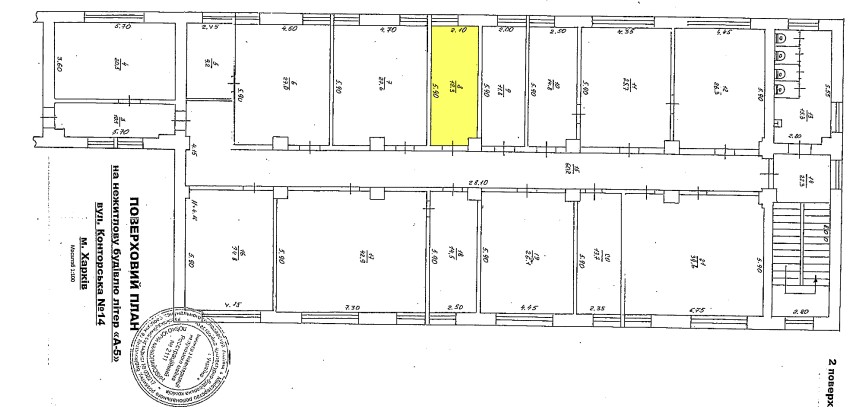
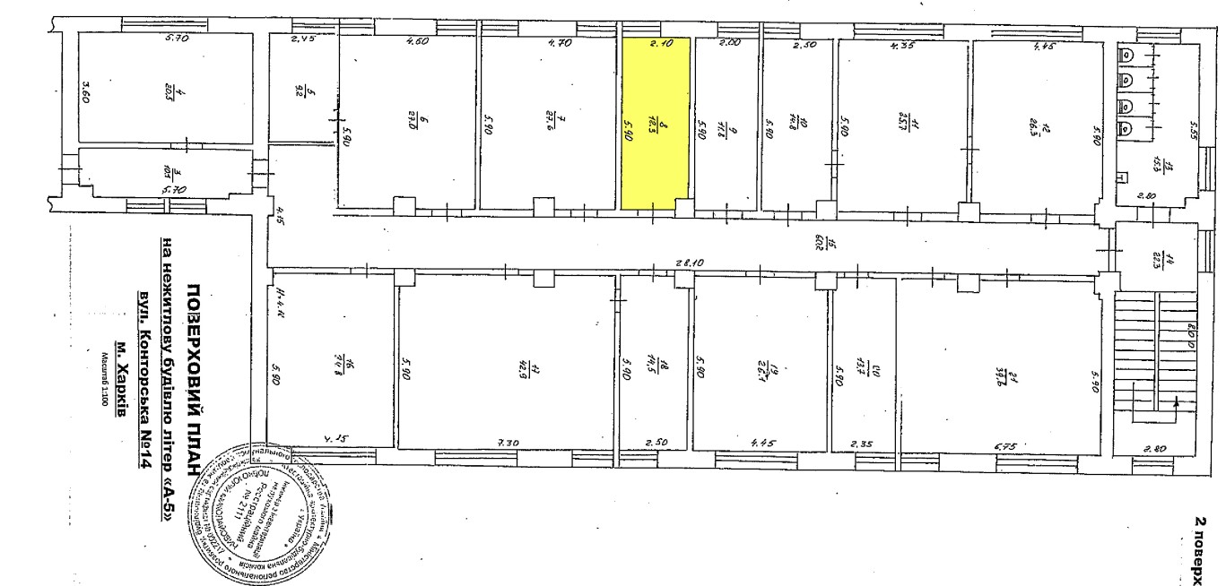
м.Харків, вул. Конторська,14. Оренда – приміщення 2-го поверху площею 12,3 кв.м (В)

516.60 грн
42.00 грн / м2
Україна, Харківська обл., Харків, вулиця Конторська, 14
Перейти до аукціону на сайті
  • Інформація
  • Опис
  • Документи
Дата оголошення пропозиції:
10 вересня 2025
Площа:
12.30 м2
Тип об’єкта:
Приміщення
Тип аукціону:
Англійський аукціон
Статус аукціону:
Аукціон не відбувся
Тип угоди:
Оренда
Розмір мінімального кроку:
50.00 ₴
Розмір гарантійного внеску:
309.96 ₴
Початок прийому пропозицій:
10.09.2025 17:01:06
Завершення прийому пропозицій:
14.10.2025 20:00:00
Проведення аукціону:
15.10.2025 12:00:00
Лот:
CLE001-UA-20250910-02280
№ лоту (УТК):
UTK070723_05U
Лот виставляється на торги (раз):
4
Стислий опис майна:
Пропонується до оренди приміщення 2-го поверху площею 12,3 кв.м. Будівля в центрі міста Харкова. 15 хв до метро Центральний ринок. Характеристики: Кількість поверхів – 4; Загальна площа – 5611,00 кв.м_ Площа запропонована до оренди - 12,3 кв.м Дозволена потужність – 4 кВт Теплопостачання - відсутнє Земельна ділянка – 0,5169 га
Адреса місцезнаходження майна:
Україна, Харківська обл., Харків, вулиця Конторська, 14
Схожі пропозиції
15.10.2025
м. Харків, Салтівське шосе, 2. Оренда – приміщення 2-го поверху, площею 343,7 кв.м (В)
10 311.00 грн
30.00 грн / м2
Приміщення
м. Харків, Салтівське шосе, 2. Оренда – приміщення 2-го поверху, площею 343,7 кв.м (В)
Україна, Харківська обл., м. Харків, Салтівське шосе, 2
30.09.2025
м. Харків, вул.Конторська,14. Оренда – приміщення першого поверху площею 17,0 кв.м (В)
949.11 грн
55.83 грн / м2
Приміщення
м. Харків, вул.Конторська,14. Оренда – приміщення першого поверху площею 17,0 кв.м (В)
Україна, Харківська обл., Харків, вулиця Конторська, 14
19.12.2023
Харківська обл., Лозівський р-н, м. Лозова, вул. М. Грушевського, 7. Оренда – приміщення 1-го поверху площею 230,92 кв.м. (В)
10 529.95 грн
45.60 грн / м2
Приміщення
Харківська обл., Лозівський р-н, м. Лозова, вул. М. Грушевського, 7. Оренда – приміщення 1-го поверху площею 230,92 кв.м. (В)
Україна, Харківська обл., Лозівський р-н, м. Лозова, вул. М. Грушевського, 7
30.04.2024
м. Харків, вул. Амосова,13-в. Оренда – приміщення 3-го поверху площею 128,6 кв.м (В)
7 811.16 грн
60.74 грн / м2
Приміщення
м. Харків, вул. Амосова,13-в. Оренда – приміщення 3-го поверху площею 128,6 кв.м (В)
Україна, Харківська обл., м. Харків, вул. Амосова,13-в
Переглянуті пропозиції
24.11.2023
Рівненська обл., м. Рівне, вул. Боярка, 54 а, б. Оренда – комплекс будівель площею 620,1 м. кв. (В)
29 392.74 грн
47.40 грн / м2
Будівля
Рівненська обл., м. Рівне, вул. Боярка, 54 а, б. Оренда – комплекс будівель площею 620,1 м. кв. (В)
Україна, Рівненська обл., м. Рівне, вул. Боярка, 54 а, б
21.08.2024
Полтавська обл., Полтавський р-н, cмт. Чутове, вул. Незалежності, 24. Оренда – приміщення 3-го поверху площею 30,60 кв.м. (В)
729.50 грн
23.84 грн / м2
Приміщення
Полтавська обл., Полтавський р-н, cмт. Чутове, вул. Незалежності, 24. Оренда – приміщення 3-го поверху площею 30,60 кв.м. (В)
Україна, Полтавська обл., Полтавський р-н, cмт. Чутове, вул. Незалежності, 24
21.03.2024
Чернігівська обл., м. Чернігів, проспект Миру, 35Б. Оренда – офісні приміщення 1 та 2 поверхів загальною площею 242,8 кв.м. (В)
18 865.56 грн
77.70 грн / м2
Офіс
Чернігівська обл., м. Чернігів, проспект Миру, 35Б. Оренда – офісні приміщення 1 та 2 поверхів загальною площею 242,8 кв.м. (В)
Україна, Чернігівська обл., м. Чернігів, проспект Миру, 35Б
06.11.2024
Полтавська обл., смт. Шишаки, вулиця Корнілича, 10. Оренда – приміщення підвального поверху загальною площею 60,00 кв.м. (В)
979.20 грн
16.32 грн / м2
Приміщення
Полтавська обл., смт. Шишаки, вулиця Корнілича, 10. Оренда – приміщення підвального поверху загальною площею 60,00 кв.м. (В)
Україна, Полтавська обл., смт. Шишаки, вул. Корнілича, 10