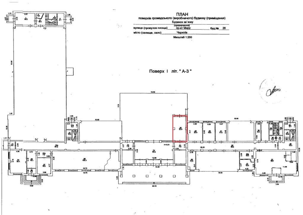
Чернігівська обл., м. Чернігів, проспект Миру, 28. Оренда – приміщення 1 поверху площею 22,80 кв.м. (В)

2 924.33 грн
128.26 грн / м2
Україна, Чернігівська обл., м. Чернігів, проспект Миру, 28
Перейти до аукціону на сайті
  • Інформація
  • Опис
  • Документи
Дата оголошення пропозиції:
15 вересня 2025
Площа:
22.80 м2
Тип об’єкта:
Приміщення
Тип аукціону:
Англійський аукціон
Статус аукціону:
Аукціон не відбувся
Тип угоди:
Оренда
Розмір мінімального кроку:
100.00 ₴
Розмір гарантійного внеску:
1 754.60 ₴
Початок прийому пропозицій:
15.09.2025 16:02:31
Завершення прийому пропозицій:
14.10.2025 20:00:00
Проведення аукціону:
15.10.2025 11:55:00
Лот:
CLE001-UA-20250915-78619
№ лоту (УТК):
UTK291124_10P
Лот виставляється на торги (раз):
7
Стислий опис майна:
Пропонується до оренди приміщення 1- поверху площею 22,80 кв. м. Будівля знаходиться в центрі Чернігова на перетині двох центральних проспектів міста, в пішій доступності до міського транспорту (до 5 хвилин), в районі розміщення центрального ринку, в місці зосередження торгових центрів, кафе і ресторанів, що забезпечує високі автомобільний та пішохідний потоки. Приміщення - частина загального залу в спільній сумісній власності з АТ "Укрпошта" без поділу на окреме приміщення. Характеристики: кількість поверхів – 3 загальна площа – 3783,7 кв.м площа запропонована до оренди –22,80 кв.м земельна ділянка – 0,2776 га (договір оренди)
Адреса місцезнаходження майна:
Україна, Чернігівська обл., м. Чернігів, проспект Миру, 28
Схожі пропозиції
06.11.2020
ГОЛЛАНДСЬКИЙ АУКЦІОН! Чернігівська обл., м. Новгород-Сіверський, вул. Вокзальна, 9а.Оренда – нежитлові приміщення площею 44,75 кв.м. (В)
272.53 грн
6.09 грн / м2
Приміщення
ГОЛЛАНДСЬКИЙ АУКЦІОН! Чернігівська обл., м. Новгород-Сіверський, вул. Вокзальна, 9а.Оренда – нежитлові приміщення площею 44,75 кв.м. (В)
Україна, Чернігівська обл., Новгород-Сіверський, вул. Вокзальна, 9а
15.07.2025
Чернігівська обл., м. Новгород-Сіверський, вул. Князя Ігоря, 34-А. Оренда – приміщення 2-го поверху площею 100,10 кв.м. (В)
1 851.85 грн
18.50 грн / м2
Приміщення
Чернігівська обл., м. Новгород-Сіверський, вул. Князя Ігоря, 34-А. Оренда – приміщення 2-го поверху площею 100,10 кв.м. (В)
Україна, Чернігівська обл., м. Новгород-Сіверський, вул. Князя Ігоря, 34-А
21.03.2024
Чернігівська обл., смт. Сосниця, вул. Б. Хмельницького, 16. Оренда – підвальне приміщення площею 31,35 кв.м. (В)
501.60 грн
16.00 грн / м2
Приміщення
Чернігівська обл., смт. Сосниця, вул. Б. Хмельницького, 16. Оренда – підвальне приміщення площею 31,35 кв.м. (В)
Україна, Чернігівська обл., смт. Сосниця, вул. Б. Хмельницького, 16
21.01.2025
Чернігівська обл., смт. Козелець, вул. Соборності, 10. Оренда – частина комплексу нежитлових приміщень площею 652,7 кв.м.(В)
11 056.74 грн
16.94 грн / м2
Приміщення
Чернігівська обл., смт. Козелець, вул. Соборності, 10. Оренда – частина комплексу нежитлових приміщень площею 652,7 кв.м.(В)
Україна, Чернігівська обл., смт. Козелець, вул. Соборності, 10
Переглянуті пропозиції
14.06.2024
Вінницька обл., Могилів-Подільський р-н, с. Яруга, вул. Дністровська, 62;   Оренда – приміщення площею 58,0 кв.м. (В)
479.66 грн
8.27 грн / м2
Приміщення
Вінницька обл., Могилів-Подільський р-н, с. Яруга, вул. Дністровська, 62; Оренда – приміщення площею 58,0 кв.м. (В)
Україна, Вінницька обл., Яруга, вул. Дністровська, 62
14.02.2024
Сумська обл., Сумський р-н., с. Миропілля, вул. Сумська (Леніна), буд. 52;    Оренда – нежитлова будівля з підвалом та дизельною площею 233,2 кв.м. (В)
Харківський район, c. Липці, вул. Пушкінська, 82. Оренда – приміщення 2-го поверху площею 44,00 кв.м.
2 376.00 грн
54.00 грн / м2
Приміщення
Харківський район, c. Липці, вул. Пушкінська, 82. Оренда – приміщення 2-го поверху площею 44,00 кв.м.
Україна, Харківська обл., Харківський район, c. Липці, вул. Пушкінська, 82
28.09.2023
Рівненська обл., Варашський р-н, с. Дібрівськ, вул.Центральна, 1. Оренда – приміщення 1 поверху площею 25,5 кв. м. (В)
250.50 грн
9.82 грн / м2
Приміщення
Рівненська обл., Варашський р-н, с. Дібрівськ, вул.Центральна, 1. Оренда – приміщення 1 поверху площею 25,5 кв. м. (В)
Україна, Рівненська обл., Варашський р-н, с. Дібрівськ, вул.Центральна, 1