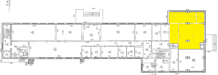
Дніпропетровська обл., м. Кривий Ріг, вул. Героїв АТО, 97. Оренда – група приміщень 1-го поверху площею 125,1 кв. м (В)

6 004.80 грн
48.00 грн / м2
Україна, Дніпропетровська обл., Кривий Ріг, вулиця Героїв АТО, 97
Перейти до аукціону на сайті
  • Інформація
  • Опис
  • Документи
Дата оголошення пропозиції:
03 жовтня 2025
Площа:
125.10 м2
Тип об’єкта:
Приміщення
Тип аукціону:
Англійський аукціон
Статус аукціону:
Прийняття заяв на участь
Тип угоди:
Оренда
Розмір мінімального кроку:
200.00 ₴
Розмір гарантійного внеску:
3 602.88 ₴
Початок прийому пропозицій:
03.10.2025 14:00:34
Завершення прийому пропозицій:
03.11.2025 20:00:00
Проведення аукціону:
04.11.2025 11:05:00
Лот:
CLE001-UA-20251003-17832
№ лоту (УТК):
UTK_250725_01U
Лот виставляється на торги (раз):
3
Стислий опис майна:
Пропонується до оренди група приміщень 1-го поверху площею 125,1 кв. м. Розташування - будівля знаходиться в центрі Металургійного району м. Кривого Рогу. Поруч розташовані: житловий масив, парк, супермаркети. Високий автомобільний і пішохідний потоки, зручна транспортна розв’язка. Приміщення підходить під розвиток будь-якого бізнесу. Можливість передачі приміщень в суборенду. Характеристики: -Кількість поверхів – 4 - Загальна площа –3721,0 кв.м.; - Площа запропонована до оренди –125,1 кв.м.; - Електропостачання, водопостачання - централізоване; - Площа земельної ділянки-0,7779 га (договір оренди); - Ресурсні податки 24,12 грн.
Адреса місцезнаходження майна:
Україна, Дніпропетровська обл., Кривий Ріг, вулиця Героїв АТО, 97
Схожі пропозиції
29.06.2023
Дніпропетровська обл., м. Синельникове, вул. Богми, 4. Оренда – приміщення 2-го поверху, площею 213,5 кв.м. (В)
3 702.09 грн
17.34 грн / м2
Приміщення
Дніпропетровська обл., м. Синельникове, вул. Богми, 4. Оренда – приміщення 2-го поверху, площею 213,5 кв.м. (В)
Україна, Дніпропетровська обл., м. Синельникове, вулиця Богми, 4
31.08.2023
ДОВГОСТРОКОВА ОРЕНДА! Дніпропетровська обл., м. Дніпро, вул. Чернишевського, 27. Оренда – приміщення 4-го поверху площею 706,50 кв.м. (В)
42 919.88 грн
60.75 грн / м2
Приміщення
ДОВГОСТРОКОВА ОРЕНДА! Дніпропетровська обл., м. Дніпро, вул. Чернишевського, 27. Оренда – приміщення 4-го поверху площею 706,50 кв.м. (В)
Україна, Дніпропетровська обл., м. Дніпро, вул. Чернишевського, 27
31.12.2024
Дніпропетровська обл., м. Дніпро, вул. Січових Стрільців, 10. Оренда – приміщення цокольного поверху площею 47,90 кв.м. (В)
5 006.51 грн
104.52 грн / м2
Приміщення
Дніпропетровська обл., м. Дніпро, вул. Січових Стрільців, 10. Оренда – приміщення цокольного поверху площею 47,90 кв.м. (В)
Україна, Дніпропетровська обл., м. Дніпро, вул. Січових Стрільців, 10
09.03.2023
Дніпропетровська обл., м. Дніпро, вул. Князя Ярослава Мудрого, 3. Оренда – приміщення 5-го поверху площею 18,60 кв.м. (В)
1 242.48 грн
66.80 грн / м2
Приміщення
Дніпропетровська обл., м. Дніпро, вул. Князя Ярослава Мудрого, 3. Оренда – приміщення 5-го поверху площею 18,60 кв.м. (В)
Україна, Дніпропетровська обл., м. Дніпро, вул. Князя Ярослава Мудрого, 3