м. Глухів, пров. Героїв полку «Азов», 13. Оренда – приміщення комплексу площею 365,7 кв.м (В)

7 526.11 грн
20.58 грн / м2
Україна, Сумська обл., м. Глухів, пров. Героїв полку «Азов», 13
Перейти до аукціону на сайті
  • Інформація
  • Опис
  • Документи
Дата оголошення пропозиції:
03 жовтня 2025
Площа:
365.70 м2
Тип об’єкта:
Приміщення
Тип аукціону:
Англійський аукціон
Статус аукціону:
Прийняття заяв на участь
Тип угоди:
Оренда
Розмір мінімального кроку:
500.00 ₴
Розмір гарантійного внеску:
4 515.66 ₴
Початок прийому пропозицій:
03.10.2025 14:58:56
Завершення прийому пропозицій:
03.11.2025 20:00:00
Проведення аукціону:
04.11.2025 12:10:00
Лот:
CLE001-UA-20251003-76010
№ лоту (УТК):
UTK130625_08P
Лот виставляється на торги (раз):
4
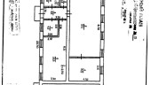
Стислий опис майна:
Пропонується до оренди приміщення Комплексу, у складі: виробничої будівлі, площею 320,8 кв.м., приміщення складу, площею 29,8 кв.м., приміщення котельної, площею 15,1 кв.м., вигрібна яма, туалет цегляний, огорожа. Комплекс знходиться в житловому масиві приватного сектору на околиці міста. Доступ 24/7. Пошкоджено, у 2022р, вибуховою хвилею частину фронтону складів. Характеристики: Кількість поверхів – 2; Загальна площа – 365,7 кв.м_ Площа запропонована до оренди -365,7 кв.м Дозволена потужність – 0 кВт Теплопостачання-твердотопливний котел Земельна ділянка – 0,0419 га (договір оренди)
Адреса місцезнаходження майна:
Україна, Сумська обл., м. Глухів, пров. Героїв полку «Азов», 13
Схожі пропозиції
03.06.2025
Сумська обл., Конотопський р-н, с. Малий Самбір, вул. Центральна, 1А. Оренда – нежитлове приміщення площею 17,90 кв.м. (В)
501.20 грн
28.00 грн / м2
Приміщення
Сумська обл., Конотопський р-н, с. Малий Самбір, вул. Центральна, 1А. Оренда – нежитлове приміщення площею 17,90 кв.м. (В)
Україна, Сумська обл., с. Малий Самбір, вул. Центральна, 1А
04.03.2025
Сумська обл., Конотопський р-н, с. Воскресенка, вул. Покровська, буд. 2-А;   Оренда – нежитлове приміщення площею 24,70 кв. м. (В)
532.78 грн
21.57 грн / м2
Приміщення
Сумська обл., Конотопський р-н, с. Воскресенка, вул. Покровська, буд. 2-А; Оренда – нежитлове приміщення площею 24,70 кв. м. (В)
Україна, Сумська обл., с. Воскресенка, Покровська вулиця, 2-А
05.06.2024
Сумська обл., Роменський р-н., с. Хоружівка, вул. б/н. Оренда – частина нежитлового приміщення площею 38,70 кв.м. (В)
2 042.97 грн
52.79 грн / м2
Приміщення
Сумська обл., Роменський р-н., с. Хоружівка, вул. б/н. Оренда – частина нежитлового приміщення площею 38,70 кв.м. (В)
Україна, Сумська обл., Роменський р-н., с. Хоружівка, вул. б/н
04.03.2025
Сумська обл., Роменський район, с. Андріяшівка, вул. Соборна, буд. 10;  Оренда – нежитлове приміщення площею 17,00 кв. м. (В)
510.00 грн
30.00 грн / м2
Приміщення
Сумська обл., Роменський район, с. Андріяшівка, вул. Соборна, буд. 10; Оренда – нежитлове приміщення площею 17,00 кв. м. (В)
Україна, Сумська обл., с. Андріяшівка, вул. Соборна, буд. 10
Переглянуті пропозиції
15.07.2025
Полтавська обл., м. Решетилівка, вулиця Старокиївська, 2. Оренда – приміщення 3-го поверху загальною площею 420,10 кв.м. (В)
5 041.20 грн
12.00 грн / м2
Приміщення
Полтавська обл., м. Решетилівка, вулиця Старокиївська, 2. Оренда – приміщення 3-го поверху загальною площею 420,10 кв.м. (В)
Україна, Полтавська обл., Решетилівка, Решетилівка, вулиця Старокиївська, 2
05.11.2024
Харківська обл., м. Харків, вул. Рибалка, 3-А. Оренда – приміщення одноповерхової будівлі площею 10,00 кв.м. (В)
502.60 грн
50.26 грн / м2
Приміщення
Харківська обл., м. Харків, вул. Рибалка, 3-А. Оренда – приміщення одноповерхової будівлі площею 10,00 кв.м. (В)
Україна, Харківська обл., м. Харків, вул. Рибалка, 3-А
22.04.2025
м. Харків, вул. Конторська,14.Оренда – приміщення 4-го поверху площею 25,8 кв.м (В)
774.00 грн
30.00 грн / м2
Приміщення
м. Харків, вул. Конторська,14.Оренда – приміщення 4-го поверху площею 25,8 кв.м (В)
Україна, Харківська обл., м. Харків, вул. Конторська,14