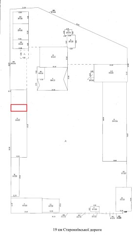
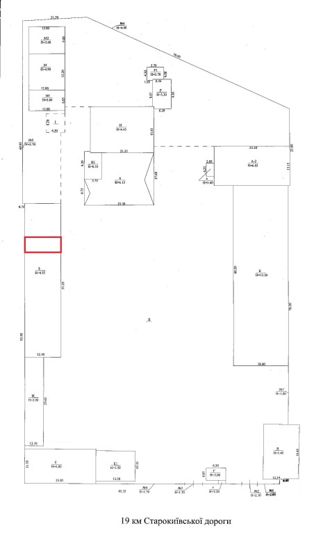
Одеська обл., м. Одеса, вул. 19 км Старокиївської дороги, 33. Оренда – приміщення боксу площею 44,10 кв.м (В)

2 698.92 грн
61.20 грн / м2
Україна, Одеська обл., м. Одеса, вул. 19 км Старокиївської дороги, 33
Перейти до аукціону на сайті
  • Інформація
  • Опис
  • Документи
Дата оголошення пропозиції:
03 жовтня 2025
Площа:
44.10 м2
Тип об’єкта:
Приміщення
Тип аукціону:
Англійський аукціон
Статус аукціону:
Прийняття заяв на участь
Тип угоди:
Оренда
Розмір мінімального кроку:
60.00 ₴
Розмір гарантійного внеску:
1 619.35 ₴
Початок прийому пропозицій:
03.10.2025 15:19:09
Завершення прийому пропозицій:
03.11.2025 20:00:00
Проведення аукціону:
04.11.2025 12:55:00
Лот:
CLE001-UA-20251003-44960
№ лоту (УТК):
UTK290825_06P
Лот виставляється на торги (раз):
2
Стислий опис майна:
Пропонується до оренди приміщення боксу площею 44,10 кв. м. Приміщення під гараж, склад, майстерню, не потребує ремонту, є оглядова яма. Об'єкт знаходиться у промисловій зоні північної частині міста. Приміщення забезпечені електропостачанням, теплопостачання відсутнє, загальний санвузол на 1-му поверсі 2-поверхової адміністративної будівлі. Висота приміщення Н=4,25 м. Характеристики: Загальна площа будівлі – 540,30 кв. м Площа запропонована до оренди – 44,10 кв.м Дозволена потужність – до 3 кВт Теплопостачання – відсутнє Земельна ділянка – 1,2350 га
Адреса місцезнаходження майна:
Україна, Одеська обл., м. Одеса, вул. 19 км Старокиївської дороги, 33
Схожі пропозиції
29.10.2025
Одеська обл., м. Одеса, вул. Ак. Корольова, 43. Оренда – приміщення 1-го поверху загальною площею 90,20 кв.м (В)
5 412.00 грн
60.00 грн / м2
Приміщення
Одеська обл., м. Одеса, вул. Ак. Корольова, 43. Оренда – приміщення 1-го поверху загальною площею 90,20 кв.м (В)
Україна, Одеська обл., м. Одеса, вул. Ак. Корольова, 43
27.02.2024
Одеська обл., м. Одеса, вул. Ак. Філатова, 13б. Оренда – приміщення 1-го поверху площею 75,20 кв.м. (В)
7 309.44 грн
97.20 грн / м2
Приміщення
Одеська обл., м. Одеса, вул. Ак. Філатова, 13б. Оренда – приміщення 1-го поверху площею 75,20 кв.м. (В)
Україна, Одеська обл., м. Одеса, вул. Ак. Філатова, 13б
10.05.2024
Одеська обл., м. Одеса, вул. 19 км Старокиївської дороги, буд. 33. Оренда – приміщення складу площею 38,00 кв.м. (В)
1 801.96 грн
47.42 грн / м2
Приміщення
Одеська обл., м. Одеса, вул. 19 км Старокиївської дороги, буд. 33. Оренда – приміщення складу площею 38,00 кв.м. (В)
Україна, Одеська обл., м. Одеса, вул. 19 км Старокиївської дороги, буд. 33
22.07.2025
Одеська обл., Одеський р-н, с. Доброслав, вул. Київська, 38. Оренда – приміщення 2-го поверху площею 10,90 кв.м (В)
545.00 грн
50.00 грн / м2
Приміщення
Одеська обл., Одеський р-н, с. Доброслав, вул. Київська, 38. Оренда – приміщення 2-го поверху площею 10,90 кв.м (В)
Україна, Одеська обл., вул. Київська, 38, с. Доброслав
Переглянуті пропозиції
Полтавська обл., м. Миргород, вулиця Гоголя, буд. 96/9 . Оренда – приміщення 3-го поверху площею 20,1 кв.м. (В)
318.38 грн
15.84 грн / м2
Приміщення
Полтавська обл., м. Миргород, вулиця Гоголя, буд. 96/9 . Оренда – приміщення 3-го поверху площею 20,1 кв.м. (В)
Україна, Полтавська обл., м. Миргород, вул. Гоголя, буд. 96/9