Дніпропетровська обл., м. Нікополь, вулиця Патріотів України, буд. 113А. Оренда – перший поверх, загальною площею 1104,30 кв.м. (В)

13 251.60 грн
12.00 грн / м2
Україна, Дніпропетровська обл., Нікополь, HC83+J222
Перейти до аукціону на сайті
  • Інформація
  • Опис
  • Документи
Дата оголошення пропозиції:
20 жовтня 2025
Площа:
1104.30 м2
Тип об’єкта:
Приміщення
Тип аукціону:
Англійський аукціон
Статус аукціону:
Прийняття заяв на участь
Тип угоди:
Оренда
Розмір мінімального кроку:
100.00 ₴
Розмір гарантійного внеску:
7 950.96 ₴
Початок прийому пропозицій:
20.10.2025 10:50:48
Завершення прийому пропозицій:
20.11.2025 20:00:00
Проведення аукціону:
21.11.2025 11:15:00
Лот:
CLE001-UA-20251020-30053
№ лоту (УТК):
UTK180222_03U
Лот виставляється на торги (раз):
5
Стислий опис майна:
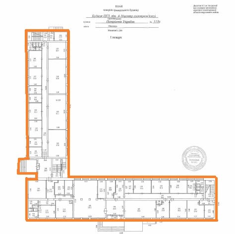
Пропонується до оренди приміщення 1-го поверху, загальною площею 1104,30 кв.м. Поруч знаходяться торговельний центр, середній автомобільний і пішохідний потоки. Стан приміщення задовільний, підходить для розміщення офісу. Характеристики: Кількість поверхів – 3. Загальна площа – 6459,10 кв.м. Площа запропонована до оренди – 1104,30 кв.м. Електропостачання, водопостачання. Земельна ділянка – 1,1369 га (договір оренди).
Адреса місцезнаходження майна:
Україна, Дніпропетровська обл., Нікополь, HC83+J222
Схожі пропозиції
04.06.2024
Дніпропетровська обл., м. Кам’янське, просп. Героїв АТО, 1. Оренда – приміщення 4-го поверху загальною площею 130,60 кв.м (В)
4 571.00 грн
35.00 грн / м2
Приміщення
Дніпропетровська обл., м. Кам’янське, просп. Героїв АТО, 1. Оренда – приміщення 4-го поверху загальною площею 130,60 кв.м (В)
Україна, Дніпропетровська обл., м. Кам’янське, просп. Героїв АТО, 1
25.04.2025
Дніпропетровська обл., м. Жовті Води, вул. Свободи, 39. Оренда – приміщення 3-го поверху площею 104,40 кв.м. (В)
1 252.80 грн
12.00 грн / м2
Приміщення
Дніпропетровська обл., м. Жовті Води, вул. Свободи, 39. Оренда – приміщення 3-го поверху площею 104,40 кв.м. (В)
Україна, Дніпропетровська обл., м. Жовті Води, вул. Свободи, 39
14.12.2023
Дніпропетровська обл., смт Софіївка, бул. Шевченка, 17А. Оренда – приміщення гаражу площею 33,00 кв.м. (В)
429.00 грн
13.00 грн / м2
Приміщення
Дніпропетровська обл., смт Софіївка, бул. Шевченка, 17А. Оренда – приміщення гаражу площею 33,00 кв.м. (В)
Україна, Дніпропетровська обл., смт Софіївка, ул. Шевченка, 17А
10.06.2025
ДОЛВГОСТРОКОВА ОРЕНДА! Дніпропетровська обл., м. Дніпро, пр. Богдана Хмельницького, 28а. Оренда – приміщення 3-го поверху загальною площею 713,90 кв.м(В)
34 802.63 грн
48.75 грн / м2
Приміщення
ДОЛВГОСТРОКОВА ОРЕНДА! Дніпропетровська обл., м. Дніпро, пр. Богдана Хмельницького, 28а. Оренда – приміщення 3-го поверху загальною площею 713,90 кв.м(В)
Україна, Дніпропетровська обл., пр. Богдана Хмельницького, 28а, м. Дніпро